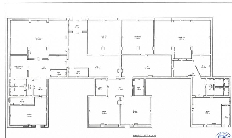
Va oferim spre inchiriere un spatiu in suprafata de 561 mp, cu vedere spre Bulevardul Corneliu Coposu cu vitrine generoase.
Ultima activitate a fost cea de Universitate, spatiul avand toate autorizatiile necesare pentru invatamant.
Este pretabil pentru o gama larga de activitati precum:
-Scoala/Universitate
-Sala fitness
-Clinica privata
-Gradinita privata
-Afterschool
-Showroom
Pentru vizionare si alte detalii asteptam apelul dumneavostra!
-
Sediul central - Timișoara
Bulevardul Victor Babeș nr. 2, 300230, Timișoara, România
Tel: +40.374.40.44.98 / Fax: +40.256.401.179
Email: suport@imobiliare.ro
Luni - Vineri 08:00 - 20:00
Punct de lucru - București: Iride Business Park, Bld. Dimitrie
Pompeiu 9-9A, Clădirea B2B,
020335, Sector 2, București, România
CONTACT
Sediul central - Timișoara
Bulevardul Victor Babeș nr. 2, 300230, Timișoara, România
Tel: +40.374.40.44.98 / Fax: +40.256.401.179
Email: suport@imobiliare.ro
Luni - Vineri 08:00 - 20:00
Punct de lucru - București: Iride Business Park, Bld. Dimitrie
Pompeiu 9-9A, Clădirea B2B,
020335, Sector 2, București, România
Sună acum și cere detalii sau programează o vizionare.
Cere detalii prin email
*
*
*
*
Stații autobuz
Stații troleibuz
Stații tramvai
Stații tren
Universități
Gradinițe
Școli
Supermarket
Parcări
Parcuri
Piețe publice
Terenuri sport
Spital
Farmacie
Bar
Restaurant
Cafenea
Pub
Bancă
Statie Vasile Parvan E8
aprox.
54 m
Leonardo da Vinci
aprox.
134 m
Statie Complex studentesc E7, E8, E3
aprox.
305 m
Leonardo da Vinci
aprox.
318 m
Vasile Parvan
aprox.
370 m
Statie Vasile Parvan retur E8
aprox.
380 m
Parcul Copiilor
aprox.
403 m
Parcul Copiilor
aprox.
432 m
Pestalozzi
aprox.
460 m
Statie Pestalozzi E8
aprox.
501 m
Radio Timisoara
aprox.
528 m
Radio Timisoara
aprox.
575 m
Statie Traian Grozavescu E7, T15, T16
aprox.
579 m
Statie Universitatea de Vest E7, E8, E3
aprox.
583 m
Statie Traian Grozavescu A40
aprox.
606 m
Statie B-dul Mihai Eminescu T19
aprox.
538 m
Statie Bastion T11, T17
aprox.
926 m
Statie Oituz T11, T17
aprox.
1080 m
Statie Politia Jud. Timis T11, T17
aprox.
1184 m
Statie Piata 700 T11, T13, T14, T17, T18
aprox.
1256 m
Statie Piata 700 T11, T14, T18
aprox.
1362 m
Statie Piata Regina Maria T11, T14, T18
aprox.
1400 m
Statie Baader T17
aprox.
1453 m
Statie Samuil Micu T11
aprox.
1763 m
Statie B-dul Sudului T16
aprox.
1805 m
Statie Renasterii T11
aprox.
1993 m
Statie Prefectura Tv1, Tv2, Tv4, Tv6
aprox.
597 m
Statie Prefectura Tv1, Tv2, Tv4, Tv5
aprox.
598 m
Statie Sala Olimpia Tv 6, Tv8, Tv5
aprox.
617 m
Statie Hotel Continental Tv1, Tv2, Tv4, Tv6
aprox.
669 m
Hotel Continental
aprox.
681 m
Statie Abator Tv6, Tv8 si Tv5
aprox.
719 m
Statie Cluj Tram 5 si 8 retur
aprox.
732 m
Cluj
aprox.
759 m
Statie Cluj Tram 6 si 8
aprox.
773 m
Statie Hotel Continental Tv1, Tv2, Tv4, Tv5
aprox.
780 m
Hotel Continental
aprox.
793 m
Statie 3 August 1919 Tv1, Tv2, Tv4, Tv5
aprox.
862 m
Statie 3 August 1919 Tv1, Tv2, Tv4, Tv6
aprox.
867 m
3 August 1919
aprox.
876 m
Statie Piata Libertatii TV1, TV2, Tv4, Tv5
aprox.
1039 m
Gara de Est
aprox.
1878 m
Universitatea Dimitrie Cantemir
aprox.
8 m
Universitatea Tibiscus
aprox.
328 m
Facultatea de Chimie Industriala si Ingineria Mediului
aprox.
485 m
Facultate de Chimie Industriala
aprox.
490 m
Universitatea Mihai Eminescu
aprox.
620 m
Facultatea de Economie și de Administrare a Afacerilor
aprox.
638 m
Facultatea de Economie si de Administrarea a Afacerilor
aprox.
644 m
Universitatea de Vest din Timisoara
aprox.
649 m
Universitatea de Vest
aprox.
655 m
ExperimentariumTM
aprox.
655 m
Aula Magna (en)
aprox.
662 m
Universitatea de Medicina si Farmacie Victor Babes
aprox.
698 m
U.M.F. Medicină Dentară
aprox.
716 m
Atelier Scolar pentru Proiectare si Cercetare
aprox.
719 m
Universitatea de Medicina
aprox.
764 m
Gradinita Program Prelungit Nr. 45
aprox.
421 m
Gradinita Program Prelungit Nr. 53
aprox.
501 m
Gradinita Program Prelungit Nr. 19
aprox.
542 m
Gradinita Program Prelungit Posta
aprox.
575 m
Gradinita Program Prelungit Nr. 22
aprox.
913 m
Gradinita nr. 22 / Cresa nr. 7
aprox.
938 m
Gradinita Program Prelungit Nr. 6
aprox.
973 m
Gradinita Program Prelungit Nr. 33
aprox.
1084 m
Gradinita Program Prelungit Nr. 16
aprox.
1134 m
Gradinita Program Prelungit Nr. 28
aprox.
1153 m
Gradinita Program Normal Nr. 5
aprox.
1161 m
Gradinita Program Normal Nr. 9
aprox.
1176 m
Gradinita particulara Chip & Dale
aprox.
1203 m
Gradinita Program Normal Nr. 8
aprox.
1262 m
Gradinita Program Normal Nr. 22 (Lenau)
aprox.
1296 m
COLEGIUL NATIONAL "C.DIACONOVICI LOGA"TIMISOARA
aprox.
425 m
Colegiul National Constantin Diaconovici Loga
aprox.
433 m
Scoala generala nr. 28
aprox.
453 m
Liceul Pedagogic Carmen Sylva
aprox.
481 m
LICEUL PEDAGOGIC "CARMEN SYLVA" TIMISOARA
aprox.
488 m
COLEGIUL NATIONAL DE ARTA "ION VIDU" TIMISOARA
aprox.
489 m
Colegiul National de Arta Ion Vidu
aprox.
503 m
Liceul Teoretic Jean-Louis Calderon
aprox.
528 m
LICEUL TEORETIC "J.L.CALDERON" TIMISOARA
aprox.
547 m
Grupul Scolar Industrial de Telecomunicatii
aprox.
561 m
LICEU TEHNOLOGIC DE POSTA SI TELECOMUNICATII
aprox.
599 m
Centrul de Zi pentru Copii cu Dizabilitati Podul Lung
aprox.
612 m
Colegiul National Ana Aslan
aprox.
657 m
Colegiul Național "Ana Aslana
aprox.
666 m
Experimentarium (UPT și UVT)
aprox.
706 m
Profi
aprox.
188 m
Profi City
aprox.
402 m
Carrefour Market
aprox.
504 m
Carrefour Market
aprox.
812 m
Carrefour
aprox.
817 m
Bega Shopping Center
aprox.
819 m
Profi
aprox.
857 m
Profi
aprox.
917 m
Materna-Modern
aprox.
1118 m
Profi City
aprox.
1187 m
Profi str. Dacilor
aprox.
1315 m
Profi
aprox.
1337 m
Carrefour Market
aprox.
1382 m
Profi
aprox.
1520 m
Profi City
aprox.
1570 m
Parcare
aprox.
55 m
Parcare
aprox.
100 m
Parcare
aprox.
115 m
Parcare subterana BRD
aprox.
123 m
Parcare
aprox.
139 m
Parcare
aprox.
160 m
Parcare
aprox.
187 m
Parcare
aprox.
204 m
Parcare
aprox.
237 m
Parcare
aprox.
260 m
Parcare
aprox.
285 m
Parcare
aprox.
298 m
Parcare
aprox.
316 m
Parcare
aprox.
345 m
Parcare
aprox.
350 m
ZHH Termal
aprox.
137 m
Parc
aprox.
152 m
Parc
aprox.
199 m
Parc
aprox.
253 m
Parcul Vasile Parvan
aprox.
253 m
Parc
aprox.
272 m
Parc
aprox.
274 m
Parcul Copiilor Ion Creanga
aprox.
287 m
Parcul copiilor
aprox.
300 m
Parc
aprox.
308 m
Parc
aprox.
329 m
Parc
aprox.
332 m
Parc
aprox.
375 m
Parc
aprox.
386 m
Parc
aprox.
400 m
Piata Leonardo Da Vinci
aprox.
248 m
Piata Corneliu Micloși
aprox.
899 m
Piata Tepes Voda
aprox.
949 m
Piata Romanilor
aprox.
1037 m
Piata Aurel Vlaicu
aprox.
1039 m
Piata Libertatii
aprox.
1046 m
Piata Victoriei
aprox.
1059 m
Piata Unirii
aprox.
1112 m
Piata Mircea Eliade
aprox.
1144 m
Piata Traian
aprox.
1221 m
Piața Maria
aprox.
1527 m
Piata Sarmisegetuza
aprox.
1808 m
Piata Sinaia
aprox.
1814 m
Piata Aron Cotrus
aprox.
1923 m
Teren Fotbal
aprox.
269 m
Teren sportiv
aprox.
358 m
Teren sportiv
aprox.
361 m
Teren sportiv
aprox.
368 m
Teren sportiv
aprox.
372 m
Teren sportiv
aprox.
419 m
Teren sportiv
aprox.
438 m
Teren sportiv
aprox.
456 m
Teren sportiv
aprox.
471 m
Teren sportiv
aprox.
489 m
Teren sportiv
aprox.
497 m
Teren sportiv
aprox.
514 m
Teren sportiv
aprox.
515 m
Teren Fotbal
aprox.
524 m
Teren sportiv
aprox.
555 m
Policlinica Studenteasca
aprox.
145 m
Ambulatoriu Integrat Policlinica 3
aprox.
335 m
Clinica de Recuperare
aprox.
357 m
Clinica de Oto-Rino-Laringologie
aprox.
590 m
Centrul Medical Profilaxia
aprox.
784 m
Medici's
aprox.
798 m
Profilaxis
aprox.
816 m
Clinica BEGA Obstetrica Ginecologie
aprox.
881 m
Clinica de Chirurgie Orala si Maxilo-Faciala
aprox.
954 m
Cabinet Acupunctura - Dr. Claici
aprox.
987 m
Clinica Universitara de Obstetrica Ginecologie Bega
aprox.
992 m
Policlinica Sanatatea
aprox.
1018 m
Medcom CBS Hospital
aprox.
1114 m
Spitalul Clinic Municipal
aprox.
1176 m
Policlinica Nr. 3
aprox.
1187 m
Dona
aprox.
640 m
Sensiblu
aprox.
840 m
Farmacie
aprox.
978 m
Sensiblu
aprox.
1028 m
Dianthus Farmacia
aprox.
1040 m
Farmado
aprox.
1080 m
Sensiblu
aprox.
1146 m
Farmacie
aprox.
1184 m
Mihai Viteazul
aprox.
1234 m
Remedio
aprox.
1296 m
Vlad
aprox.
1304 m
Kovacs
aprox.
1333 m
Farmacia Dona
aprox.
1375 m
Farmacia Dona
aprox.
1496 m
Farmacia Dona
aprox.
1496 m
WakeUp
aprox.
24 m
Atu
aprox.
45 m
Club Fratelli
aprox.
90 m
PAGO
aprox.
654 m
Curtea Berarilor
aprox.
822 m
MGM Bastion
aprox.
833 m
Swiss House Club
aprox.
910 m
Enoteca de Savoya
aprox.
1054 m
Alt Club
aprox.
1061 m
Arqa
aprox.
1092 m
Eclipse
aprox.
1094 m
Cafe Colt
aprox.
1187 m
Mode
aprox.
1191 m
D'arc
aprox.
1205 m
Nouveau
aprox.
1219 m
100%
aprox.
63 m
Plescaviță Sârbească
aprox.
81 m
Roy
aprox.
87 m
Pret a manger (en)
aprox.
183 m
Casa Moc
aprox.
185 m
Pret a Manger
aprox.
189 m
Pizzeria Napoleon (en)
aprox.
201 m
Zet
aprox.
214 m
3F
aprox.
215 m
3F
aprox.
228 m
Cantina Studenteasca
aprox.
236 m
Restaurant Universitar Politehnica
aprox.
240 m
Restaurant Camelot
aprox.
257 m
Camelot
aprox.
258 m
Restaurant Oxford Timisoara (en)
aprox.
299 m
Barista
aprox.
184 m
BiblioTech Cafe
aprox.
808 m
Spirit
aprox.
1009 m
Terasa D'Arc
aprox.
1009 m
Musetti
aprox.
1012 m
Tempo
aprox.
1020 m
Galto di Bruno
aprox.
1077 m
Starbucks
aprox.
1087 m
Massimo
aprox.
1090 m
Tucano Coffee Mexico
aprox.
1119 m
WellPlayed Gaming Lounge
aprox.
1130 m
Van Graf KFe
aprox.
1153 m
Papillon
aprox.
1193 m
1740 Music Cafe
aprox.
1207 m
Reciproc
aprox.
1289 m
Oxford Pub & Restaurant
aprox.
292 m
Porky's
aprox.
391 m
Habitat
aprox.
449 m
La Capite
aprox.
617 m
Vineri15
aprox.
665 m
Wake Up
aprox.
737 m
Irish Pub
aprox.
960 m
Factory Pub
aprox.
993 m
The 80's Pub
aprox.
1057 m
Drunken Rat
aprox.
1103 m
Grinette
aprox.
1148 m
Molly Malone's
aprox.
1177 m
Bibliotheka 2
aprox.
1199 m
Jarvis
aprox.
1226 m
Bierhaus
aprox.
1268 m
BRD, sediul principal Timisoara
aprox.
92 m
BRD
aprox.
92 m
BRD
aprox.
164 m
Banca Transilvania
aprox.
306 m
Banca Transilvania
aprox.
322 m
Banca Nationala
aprox.
638 m
ING
aprox.
665 m
BRD
aprox.
688 m
UniCredit Bank
aprox.
818 m
BRD
aprox.
840 m
CEC Bank
aprox.
881 m
Bancpost
aprox.
912 m
Banca Transilvania
aprox.
924 m
Generali Asigurari
aprox.
943 m
OTP Bank
aprox.
958 m
În ceea ce privește mijloacele de transport în comun, locuitorii acestui cartier sunt deserviți atât de tramvaie (liniile 6, 8 și 10), cât și de autobuze (liniile 22 și E8, care ajung în nordul cartierului, aproape de limita cu centrul). La fel ca cei din Cetate, iubitorii de ciclism din Complex-Stadion au la dispoziție mai multe piste special amenajate, pe străzi precum Bulevardul Eroilor de la Tisa, Bulevardul Mihai Viteazu, Bulevardul Victor Babeș, Strada Cluj, Strada Arieș sau Strada Johann Heinrich Pestalozzi.
Complex-Stadion poate fi considerată cea mai ofertantă zonă din punctul de vedere al oportunităților de educație. La capitolul școli și licee, de menționat aici ar fi Colegiul Național de Artă "Ion Vidu" (de pe Strada Cluj, nr. 12), Liceul Teoretic "Vlad Țepeș" (Strada Surorile Martir Caceu, nr. 47), Liceul cu Program Sportiv "Banatul" (pe Strada FC Ripensia, nr. 29), dar și Liceul Teoretic "Jean Louis Calderon" (pe Strada Johann Heinrich Pestalozzi, nr. 14). Cartierul oferă numeroase opțiuni și la capitolul învățământ superior, dat fiind că aici se află chiar Universitatea de Vest, de care aparțin peste zece facultăți reputate (printre care Arte și Design, Litere, Istorie și Teologie, dar și cea de Matematică și Informatică). Tot în zonă se găsește și Universitatea privată "Tibiscus", ce oferă specializări în Calculatoare și Informatică Aplicată, în Drept și Administrație Publică, în Psihologie și Științe Economice. Mai jos poți vedea în detaliu ce unități de învățământ există în Complex-Stadion:
Locuitorii din Complex-Stadion sunt deserviți, strict între granițele propriului cartier, de magazine de mici dimensiuni (printre care se numără mai multe magazine Profi). Cei care locuiesc aici au acces, însă, și la oportunitățile de cumpărături oferite de zonele învecinate. În Cetate, spre exemplu, de menționat este un centru comercial "cu tradiție", anume Bega Shopping Center (localizat în apropiere de Parcul Civic). De asemenea, în învecinatul Soarelui se găsesc două supermarketuri din rețeaua Carrefour (unul pe Bulevardul Liviu Rebreanu, nr. 160, iar celălalt pe Strada Uranus, nr. 9), precum și două magazine Profi City (unul pe Strada Aștrilor, iar celălalt pe Strada Mareșal Constantin Prezan). De adăugat ar fi că atât în zona Buziașului, cât și în Girocului, se găsește câte un supermarket din rețeaua Lidl (cel dintâi situat pe Bulevardul Liviu Rebreanu, nr. 37, iar cel de-al doilea pe Calea Martirilor 1989, nr. 98).
În Complex-Stadion, una dintre principalele artere de circulație ar fi Bulevardul Eroilor de Tisa, care ajunge în apropierea Universității de Vest din Timișoara și face legătura cu învecinatul Fabric; de menționat ar fi și Bulevardul Corneliu Coposu, în apropiere de "granița" cu zona Cetate, dar și Bulevardul Liviu Rebreanu, la limita cu Girocului și Soarelui. Dată fiind numărul ridicat de blocuri din acest cartier, găsirea unui loc permanent de parcare în Complex-Stadion poate ridica probleme uneori. Acesta este motivul pentru care șoferii interesați de închirierea unui asemenea spațiu se pot adresa reprezentanților autorităților locale (al sediul Primăriei se găsește în zona Cetate, mai exact pe Bulevardul Constantin Diaconovici Loga, nr. 1).
La capitolul oportunități de recreere, Complex-Stadion este una dintre cele mai ofertante zone ale Timișoarei, principalul său punct forte fiind reprezentat, așa cum i-o arată și numele, de facilitățile sportive disponibile aici. Astfel, în partea de sud a cartierului se găsește Stadionul "Dan Păltinișanu", alături de o serie de terenuri de sport ce țin de Baza Sportivă Politehnica Nr. 2; tot aici se află și două ștranduri publice, ce reprezintă un important punct de atracție în timpul sezonului estival. La capitolul parcuri, de menționat aici ar fi Parcul Karlsruhe; locuitorii cartierului au acces, bineînțeles, și la multitudinea de parcuri din zona Cetate, mai ales că unele dintre acestea sunt situate chiar la "granița" cu Complex-Stadion "“ este vorba despre Parcul "Regina Maria", Parcul Rozelor și Parcul Copiilor "Ion Creangă"; acestora li se adaugă și obiectivele de interes cultural și turistic existente în centrul orașului. Află, mai jos, ce alte opțiuni de petrecere a timpului liber mai ai în Complex-Stadion:
Datorită vecinătăților sale, dar nu numai, zona Complex-Stadion poate fi considerată una bine deservită la capitolul servicii medicale. Astfel, locuitorii săi au acces atât la unitățile de profil din propriul cartier (Policlinica 3, de pe Strada Daliei, Spitalul de Dermato-venerologie Timișoara, de pe Strada Ofcea, nr. 24), cât și la cele din zona Cetate (Spitalul Clinic Municipal de Urgență Timișoara, Spitalul Militar de Urgență "Dr. Victor Popescu", Spitalul Clinic de Urgență pentru Copii "Louis Țurcanu") și din Elisabetin-Odobescu (Maternitatea Bega, Clinica de Oncologie Medicală, Clinica de Neuropsihiatrie Infantilă). Pe lângă o serie de cabinete particulare, în acest cartier se găsește și o clinică din rețeaua Medlife. Amplasată pe Bulevardul Eroilor de la Tisa, nr. 28, aceasta oferă o multitudine de specializări, precum alergologie, cardiologie, chirurgie generală, diabet și nutriție, endocrinologie, oftalmologie, ORL ortopedie etc. Pe harta de mai jos găsești localizarea exactă a spitalelor și clinicilor din zonă:
Cele mai multe restaurante din această zonă sunt concentrate în complexul studențesc "“ pe Aleea Studenților, unde regăsim atât fast-food-uri, cât și pizzerii, restaurante sau cafenele. Cu mașina, pe jos, sau cu bicicleta poți să ajungi repede în Piețele din centrul orașului (cartierul Cetate), iar dacă nici localurile de aici nu te satisfac, cu siguranță vei găsi ceva pe gustul tău mergând la Iulius Town. Aruncă o privire pe hartă și vezi unde vei găsi cel mai apropiat restaurant de viitoarea ta locuință.
Găsești un bancomat BRD (Aleea Studenților), BCR (pe Aleea Studenților), și Banca Transilvania (pe Strada Daliei). Fiind o zonă universitară, mai multe atm-uri găsești la Universitatea de Vest, pe bulevardul Pirvan, unde se află și o sucursală BRD. Consultă harta și află unde sunt localizate și alte bănci sau ATM-uri în zona de care ești interesat.
Înainte să pleci...
Ești sigur că ai văzut și aceste proprietăți?
7.089 € / lună
Timișoara, Olimpia-Stadion
834 mp utili
Casă/Vilă
2E
8.000 € / lună
Timișoara, Brâncoveanu
800 mp utili
Centru comercial
2E
5.600 € / lună
Timișoara, Buziașului
560 mp utili
Centru comercial
2E
4.000 € / lună
Timișoara, Central
500 mp utili
Clădire de birouri
1E
4.510 € / lună
Timișoara, Torontalului
410 mp utili
Bloc de apartamente
4E
1.512 € / lună
Timișoara, Complex Studențesc
108,35 mp utili
Bloc de apartamente
Creează alertă
Salvează căutarea ca să primești pe email ultimele anunțuri publicate
Spații comerciale de închiriat în zona Complex Studențesc, Timișoara
Cere detalii prin email
*
*
*
*
Detaliile tale de contact vor fi partajate cu Consilierul De Imobile