Spatiu Comercial, 80 mp, Zona UMT

751 € + TVA / lună
9.39 € + TVA / mp / lună

UMT, Timișoara

Sup. utilă / mp. utili:
80 mp
Tip prop.:
Spațiu stradal
Niv.:
1
An constr.:
1965 (Există)
  • • Locație aproximativă

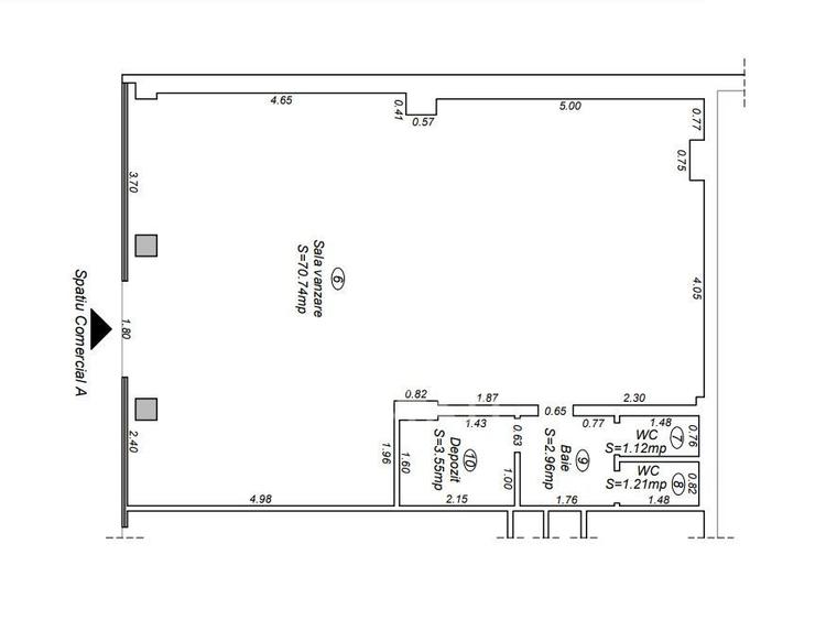
Descriere spațiu comercial

APOSTU ESTATE va propune spre inchiriere un spatiu comercial SAD de 80 metri patrati utili, cu vad comercial, in Zona UMT Spatiul se desfasoara pe o suprafata de aproximativ 80 mp la parter cu acces din zona pietonala. Dispune de 1 inceore pentru vazanre, spatiu depozitare si cu grup sanitar dublu. Spatiul dispune de toate utilitatile, curent trifazat, contorizare separata. Se pot aduce modificari de compartimentare dupa necesitate. Spatiul este pretabil pentru orice activitate comerciala. Va asteptam la o vizionare! CP2833268
Citește mai mult Citește mai puțin

Detalii spațiu comercial

ID anunț: XBAF141FQ Copiat! 275237381 Copiat!
Actualizat în: 10 Martie 2026
Suprafață utilă: 80 mp
Regim înălțime: P+1E
Structură rezistență: Beton
Stadiu construcție: Există
Vitrină: Da

Utilități

Utilități
Curent Apă Canalizare Gaze
Comision
standard

Certificat energetic:

Clasa energetică: A

Disponibilitate proprietate:

Imediat

Puncte de interes

Mijloace transport
bus-station
Statie Muzeul Satului A46
Stații autobuz aprox. 449 m
tram-station
Statia Meteo Tv1, Tv2
Stații tramvai aprox. 864 m
trolleybus-station
Statie Arena Aquasport T11
Stații troleibuz aprox. 1198 m
train-station
Timisoara East Railway station area (en)
Stații tren aprox. 1602 m
Școală
kindergarten
Gradinita Program Prelungit I.M.
Gradinițe aprox. 373 m
school
Colegiul Silvic Casa Verde
Școli aprox. 702 m
school
COLEGIUL SILVIC "CASA VERDE"
Școli aprox. 728 m
kindergarten
Gradinita Gimini
Gradinițe aprox. 1231 m
Recreere
park
Muzeul Satului Banatean Timisoara
Parcuri aprox. 134 m
sports-ground
Teren sportiv
Terenuri sport aprox. 1111 m
supermarket
Lidl
Supermarket aprox. 1547 m
public-square
Piata General Virgil Economu
Piețe publice aprox. 1616 m

Proprietăți similare

Spațiu comercial, de 40.00 mp, în Elisabetin
700 € / lună
Timișoara, Elisabetin
40 mp utili
Casă/Vilă
2E
Spațiu comercial, de 65 mp, în Take Ionescu
701 € / lună
Timișoara, Take Ionescu
65 mp utili
Spațiu stradal
1970
Spațiu comercial, de 70.00 mp, în Sinaia
750 € / lună
Timișoara, Sinaia
70 mp utili
Spațiu stradal
1E

Detalii de contact

APOSTU ESTATE

Alexandru Paliuc Senior Broker

APOSTU ESTATE
PRO

Abonează-te la newsletter să fii primul care primește cele mai noi recomandări de proprietăți și sfaturi de la experți.

Feedback apel

CONTACT

Creează alertă

Salvează căutarea ca să primești pe email ultimele anunțuri publicate

Spații comerciale cu 2 camere de închiriat în zona UMT, Timișoara