Spatiu Comercial 57 mp | Piata de flori | Renovat | George Cosbuc

751 € / lună
13.18 € / mp / lună

Central, București

Sup. utilă / mp. utili:
57 mp
An constr.:
1975 (Există)
  • • Locație aproximativă
  • • Vizionare prin apel video

Descriere spațiu comercial

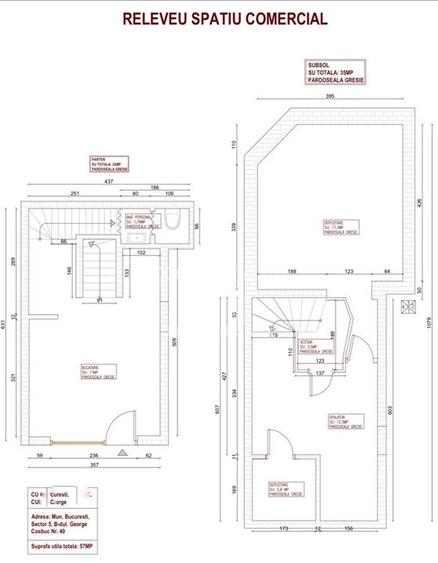
Inchiriere spatiu comercial | 57 mp | Piata George Cosbuc | Stradal DOC Imobiliare va propune spre inchiriere un spatiu comercial stradal, situat in zona Piata George Cosbuc, cu vizibilitate buna si acces direct din strada, in proximitatea statiei de tramvai. Spatiul a functionat anterior ca unitate de alimentatie publica, fiind pregatit pentru reluarea activitatii sau pentru adaptare catre alte tipuri de business. Caracteristici: Suprafata totala: 57 mp Parter: 22 mp Subsol: 35 mp Deschidere stradala: 4 m Dotari si utilitati: Apa, gaze, curent trifazic Centrala termica pe gaz Tubulatura pentru hota industriala Spatiu autorizat pentru alimentatie publica Avantaje: Zona cu trafic pietonal Vizibilitate stradala buna Langa statie de tramvai Pretabil pentru alimentatie publica, cafenea, fast-food, magazin sau alte activitati comerciale Pret: 750 euro luna
Citește mai mult Citește mai puțin
Căldură

Detalii spațiu comercial

ID anunț: XG8S04004 Copiat! 275346697 Copiat!
Actualizat în: 24 Martie 2026
Stadiu construcție: Există

Utilități

Utilități
Apă Curent Gaze

Vecinătăți:

Cinema, Supermarket, Banca, Zona comerciala, Autobuz, Metrou

Puncte de interes

Mijloace transport
bus-station
Statia Piata Chirigiu, linia 173, N114, 117, 23, 32
Stații autobuz aprox. 193 m
tram-station
Piata Chirigiu
Stații tramvai aprox. 249 m
metro-station
Metrorex. Stația Tineretului (M2)(1986)
Stații metrou aprox. 1635 m
trolleybus-station
Statia Facultatea de Drept, linia 61,69,90,91
Stații troleibuz aprox. 1792 m
Școală
university
Academia Tehnica Militara
Universități aprox. 176 m
kindergarten
Gradinita nr. 269
Gradinițe aprox. 290 m
university
Casa Academiei
Universități aprox. 490 m
school
ȘCOALA CU CLASELE I-VIII NR. 128
Școli aprox. 598 m
Recreere
park
Parc
Parcuri aprox. 175 m
public-square
P-ta Chirigiu
Piețe publice aprox. 182 m
supermarket
Liberty Center Mall
Supermarket aprox. 494 m
sports-ground
Teren sportiv
Terenuri sport aprox. 1000 m

Proprietăți similare

Spațiu comercial, 74 mp în P-ța Victoriei
740 € / lună
București, P-ța Victoriei
2.200 mp utili
Casă/Vilă
Spațiu comercial, de 69 mp, în Sala Palatului
700 € / lună
București, Sala Palatului
69 mp utili
Bloc de apartamente
8E
Spațiu comercial, 37.1 mp în Magheru
801 € / lună
București, Magheru
37,1 mp utili
Casă/Vilă
6E

Detalii de contact

DOC Imobiliare

Teodora Bendris Consultant Imobiliar

DOC Imobiliare
PRO

Abonează-te la newsletter să fii primul care primește cele mai noi recomandări de proprietăți și sfaturi de la experți.

CONTACT

Creează alertă

Salvează căutarea ca să primești pe email ultimele anunțuri publicate

Spații comerciale cu 2 camere de închiriat în zona Central, Ultracentral