Avem placerea de a va prezenta oportunitatea de inchiriere a unui spatiu comercial situat intr-o zona cu vizibilitate excelenta, pe Bulevardul Nicolae Titulescu.
Detalii proprietate:
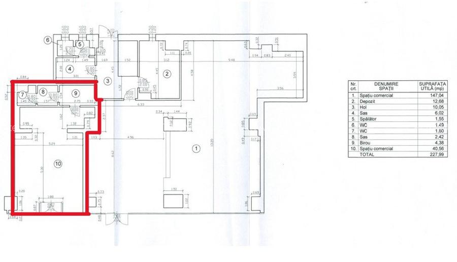
Suprafata utila: 49 mp
Deschidere stradala: 5,29 m
Spatiul beneficiaza de o pozitionare strategica, ideala pentru activitati comerciale sau de servicii, oferind expunere ridicata si acces facil pentru clienti. Datorita amplasarii intr-o zona intens circulata, proprietatea reprezinta o alegere potrivita pentru dezvoltarea unui business vizibil si accesibil.
Nr grupuri sanitare: 1
Nr incaperi: 1
Utilitati - Sistem incalzire (Termoficare); Climatizare (Aer conditionat); Utilitati generale (Curent,Apa,Gaz)
Finisaje - Podele (Marmura)
pret inchiriere: 2500
moneda inchiriere: EUR
Disponibilitate proprietate: imediat
Sediul central - Timișoara
Bulevardul Victor Babeș nr. 2, 300230, Timișoara, România
Tel: +40.374.40.44.98 / Fax: +40.256.401.179
Email: suport@imobiliare.ro
Luni - Vineri 08:00 - 20:00
Punct de lucru - București: Iride Business Park, Bld. Dimitrie
Pompeiu 9-9A, Clădirea B2B,
020335, Sector 2, București, România
CONTACT
Sediul central - Timișoara
Bulevardul Victor Babeș nr. 2, 300230, Timișoara, România
Tel: +40.374.40.44.98 / Fax: +40.256.401.179
Email: suport@imobiliare.ro
Luni - Vineri 08:00 - 20:00
Punct de lucru - București: Iride Business Park, Bld. Dimitrie
Pompeiu 9-9A, Clădirea B2B,
020335, Sector 2, București, România
Statie Gara Basarab 133, 178, 282, 105, 123, 162, 780
aprox.
816 m
Statie Pasaj Grant 65, 97, 86
aprox.
1320 m
Statie Cimitirul Sf. Vineri 65, 97, 86
aprox.
1474 m
Statia Pod Cotroceni, linia 93, 62, 96
aprox.
1593 m
Statia Piata Romana linii : 79,86
aprox.
1644 m
Statie Caraiman 65, 97, 86
aprox.
1694 m
Statia Stirbei Voda, linia 96
aprox.
1769 m
Statia Calea Dorobantilor; Liniile:79, 86,
aprox.
1811 m
Statia Vasile Parvan 66,70,92
aprox.
1896 m
statia RATB Eroilor: 69, 96
aprox.
1907 m
Statia Piata Operei, linia 61,69,90,91
aprox.
1975 m
Statia Facultatea de Drept, linia 61,69,90,91
aprox.
1999 m
Gara Bucuresti Nord
aprox.
662 m
Vechea "Gara a Targovistei" astazi parte din Gara de Nord
aprox.
673 m
Gara Basarab
aprox.
901 m
Gradinita cu Program Prelungit Nr. 248
aprox.
86 m
Gradinita nr. 248
aprox.
96 m
Gradinita nr. 112
aprox.
143 m
Gradinita nr. 206
aprox.
220 m
Gradinita nr. 2
aprox.
563 m
Gradinita Zum-zum
aprox.
912 m
Gradinita Dreams World
aprox.
942 m
Gradinita de copii nr. 285
aprox.
959 m
Gradinita Madeleine
aprox.
1020 m
Grădinița nr. 252
aprox.
1190 m
Gradinita Smiley
aprox.
1202 m
Gradinita de copii nr.251
aprox.
1222 m
Gradinita de Copii Nr. 52
aprox.
1279 m
Gradinita cu program normal ""Ge Ce Pic Englishkinder"
aprox.
1304 m
Gradinita 97
aprox.
1311 m
Scoala Generala Nr.3 "Nicolae Titulescu"
aprox.
109 m
Complexul Scolar Cronos
aprox.
132 m
Scoala cu Clasele I-VIII NR. 3
aprox.
142 m
Scoala de Muzica si Arte Plastice 1
aprox.
211 m
Scoala de Muzica si Arte Plastice nr. 1
aprox.
220 m
Gradinita nr.206
aprox.
257 m
Gradinita Little London
aprox.
307 m
Liceul Teoretic Ion Neculce
aprox.
509 m
Lexis School of Languages (en)
aprox.
582 m
Scoala Comunala Mavrogheni, actualmente Scoala Generala nr. 11 “Ion Heliadeâ€(1896)
aprox.
589 m
Scoala Generala nr. 11 - Ion Heliade Radulescu
aprox.
596 m
Colegiul National de Informatica "Tudor Vianu"
aprox.
662 m
Colegiul National de Informatica Tudor Vianu
aprox.
662 m
Scoala Nr. 1 Sfintii Voievozi
aprox.
747 m
Colegiul Tehnic de Arhitectură și Lucrări Publice Ioan N. Socolescu
aprox.
765 m
Universitatea Politehnica Bucuresti
aprox.
438 m
Universitatea Politehnica - Polizu
aprox.
438 m
Facultatea de Chimie Industriala
aprox.
487 m
Facultatea de Inginerie Aerospatiala
aprox.
492 m
Corp A
aprox.
518 m
Facultatea de Inginerie Medicala
aprox.
522 m
Institutul Medico-Militar
aprox.
863 m
FADD Facultatea de Arte Decorative si Design
aprox.
1080 m
Universitatea Nationala de Arte Bucuresti (facultatea de arte decorative si design)
aprox.
1086 m
Universitatea Nationala de Arte (sculptura)
aprox.
1161 m
Academia Romana
aprox.
1190 m
SNSPA
aprox.
1294 m
Scoala Nationala de Studii Politice si Administrative (SNSPA)
aprox.
1323 m
Scoala Nationala de Studii Politice si Administrative
aprox.
1323 m
Facultatea de Administrarea Afacerilor cu predare in limbi straine
aprox.
1336 m
Mega Image
aprox.
130 m
Mega Image
aprox.
157 m
Mega Image
aprox.
414 m
Best Market 1
aprox.
432 m
Ami Non-Stop
aprox.
602 m
Mega Image Titulescu 2
aprox.
642 m
Mega Image piata 1Mai Non-Stop
aprox.
653 m
Mega Image
aprox.
654 m
Kaufland
aprox.
839 m
Shop & Go - Mega Image
aprox.
843 m
Mega Image
aprox.
948 m
IDM
aprox.
1021 m
CARREFOUR Express Mihalache
aprox.
1105 m
Carrefour Orhideea
aprox.
1407 m
Mega Image - IANCU DE HUNEDOARA
aprox.
1585 m
Intrarea in caminele C si D din grozavesti
aprox.
1460 m
"METROPLIS CENTER"
aprox.
1553 m
Parcare
aprox.
176 m
Parcare
aprox.
330 m
Parcare
aprox.
416 m
Parcare
aprox.
422 m
Parcare
aprox.
422 m
Parcare Subterana Victoria Tower
aprox.
432 m
Parcare
aprox.
480 m
Parcare
aprox.
493 m
Parcare
aprox.
529 m
Parcare
aprox.
557 m
Parcare
aprox.
557 m
Parcare
aprox.
583 m
Parcare cu plata
aprox.
609 m
Parcare
aprox.
620 m
Parcare
aprox.
642 m
Parc
aprox.
165 m
Parc
aprox.
300 m
Parcul Duca
aprox.
428 m
Parc
aprox.
567 m
Spațiu verde Gara de Nord
aprox.
649 m
Parcul Kiseleff(1832)
aprox.
669 m
Parcul Kiseleff
aprox.
674 m
Monumentul Infanteriei Romane
aprox.
729 m
Parcul Garii de Nord
aprox.
771 m
Parcul Garii de Nord
aprox.
781 m
Parc
aprox.
804 m
Parc
aprox.
804 m
Piateta regelui
aprox.
844 m
Parc
aprox.
856 m
Parculet
aprox.
879 m
Teren sportiv
aprox.
741 m
Teren sportiv
aprox.
907 m
Teren sportiv
aprox.
1150 m
Teren sportiv
aprox.
1390 m
Teren sportiv
aprox.
1535 m
Teren sportiv
aprox.
1596 m
Teren sportiv
aprox.
1674 m
Stadionul Giulesti - Valentin Stanescu
aprox.
1708 m
Teren sportiv
aprox.
1714 m
Skatepark 1
aprox.
1744 m
teren tenis
aprox.
1786 m
Baza sportiva Universitatea Bucuresti
aprox.
1849 m
Teren sportiv
aprox.
1855 m
Teren sportiv
aprox.
1867 m
FRR
aprox.
1874 m
Piața Aviatorilor
aprox.
1084 m
Piata Emil Cioran (Vergilius) (en)
aprox.
1306 m
Piața Romană
aprox.
1618 m
Sensiblu
aprox.
174 m
Catena
aprox.
180 m
Pharma Part
aprox.
182 m
Hipocrat
aprox.
204 m
Farmacia Centrofarm
aprox.
313 m
Farmacia Richter
aprox.
357 m
HelpNet
aprox.
439 m
Farmacia Non-Stop Alissa Retail
aprox.
441 m
Sensiblu
aprox.
477 m
Plafar
aprox.
489 m
Farmacie
aprox.
493 m
Farmacia Centrofarm 55
aprox.
509 m
Sensiblu
aprox.
512 m
Real Green Pharma Non-Stop
aprox.
515 m
Lile Farm
aprox.
519 m
Institutul National de Hematologie Transfuzionala Prof. Dr. C.T.Nicolau (en)
aprox.
263 m
INHT C.T Nicolau
aprox.
279 m
Partea (corpul C si D) in consolidare a spitalului "Filantropia"(abandonate )
aprox.
324 m
Neuroptics
aprox.
339 m
Spitalul Clinic Filantropia
aprox.
363 m
Spitalul Filantropia
aprox.
363 m
Sanador corp B - Clinica
aprox.
402 m
Institutul de diabet Paulescu (en)
aprox.
427 m
Centrul De Boli Cardiovasculare Angiomedica
aprox.
427 m
Institutul de diabet Paulescu
aprox.
427 m
Clinica Sanador de la Victoria
aprox.
436 m
Sanador corp A - Clinica pediatrie
aprox.
436 m
Spitalul Clinic "Sfânta Maria" (fost Grivița)
aprox.
485 m
Medicover
aprox.
492 m
Spitalul Sfanta Maria
aprox.
496 m
The Dubliner
aprox.
31 m
The Place
aprox.
476 m
Le Cafe Inmedio
aprox.
611 m
Filos Pub
aprox.
1459 m
Lucky Poin
aprox.
1463 m
Doncafe Brasserie
aprox.
1468 m
Studio Martin
aprox.
1621 m
Roxy Pub
aprox.
1868 m
Panik & Pub
aprox.
1952 m
OLD NICK PUB
aprox.
1999 m
sailor's (en)
aprox.
144 m
Casa Satya
aprox.
303 m
Fitto Cafe
aprox.
348 m
McDonalds
aprox.
372 m
Subway - Victoriei (Bucuresti)
aprox.
396 m
Restaurant Don Taco (en)
aprox.
398 m
BeNat
aprox.
411 m
Don Taco
aprox.
417 m
la Tortilla
aprox.
427 m
La Tortila
aprox.
427 m
Shaormeria "La Haleala" (en)
aprox.
430 m
Dines Non-Stop
aprox.
446 m
La Haleala
aprox.
454 m
Idomemos
aprox.
471 m
Springtime - Victoriei (Bucuresti)
aprox.
475 m
Gloria Jean's
aprox.
380 m
Starbucks
aprox.
403 m
CAFEA - La Haig Keskerian
aprox.
473 m
Cafe Antipa
aprox.
533 m
Meron Coffee
aprox.
597 m
Sufrageria cu Jocuri
aprox.
612 m
Seneca AntiCafe
aprox.
701 m
Admiral Cafe
aprox.
790 m
Venchi 1878
aprox.
879 m
J'ai Bistrot
aprox.
1043 m
Ramayana Cafe
aprox.
1046 m
Bouche Bee
aprox.
1513 m
Cafe Boheme
aprox.
1542 m
Cafe 3
aprox.
1544 m
Reader's Cafe
aprox.
1546 m
Clubul Taranului
aprox.
496 m
El Bistro
aprox.
915 m
Stuf Vama Veche
aprox.
1479 m
Happy Pub
aprox.
1532 m
Sky Bar
aprox.
1559 m
A1
aprox.
1579 m
Zappa Rock & More
aprox.
1767 m
Frame
aprox.
1776 m
Letters Bar
aprox.
1868 m
ACAB Pub
aprox.
1893 m
Bar Adesim
aprox.
1933 m
Raiffeisen Bank
aprox.
25 m
Banca Romaneasca
aprox.
63 m
Garanti Bank
aprox.
258 m
ING Titulescu
aprox.
262 m
Banca Transilvania - Ag. Titulescu
aprox.
280 m
Piraeus Bank (en)
aprox.
302 m
BCR Victoriei
aprox.
316 m
Credit Europe Bank
aprox.
332 m
Piraeus Bank Romania - Agentia Titulescu
aprox.
385 m
Banca
aprox.
385 m
BRD Bank
aprox.
450 m
Victoria Tower(82m)
aprox.
454 m
CEC bank
aprox.
459 m
Libra bank
aprox.
459 m
CEC Bank
aprox.
461 m
Fiind o zonă ultracentrală, aceasta oferă numeroase opțiuni de călătorie cu mijloacele de transport în comun, și este bine conectată cu restul orașului. Ai, în primul rând, la dispoziție stațiile de metrou Piața Victoriei, Piața Romană și Universitate. Astfel, te vei putea deplasa rapid prin oraș, evitând aglomerația de la suprafață. Toate acestea sunt situate pe magistrala 2 care traversează Bucureștiul de la nord la sud. În plus, de la Piața Victoriei vei putea lua metroul și pe magistrala 1 pentru a ajunge, de exemplu, în cartierul Pantelimon sau în zona Eroilor. Prin Piața Universității urmează să treacă și magistrala 5 care va lega cartierele Drumul Taberei și Pantelimon. Până acum, s-au deschis însă doar stațiile de metrou aflate în zona Drumul Taberei. Alte mijloace de transport în comun care ar putea să-ți fie de ajutor atunci când te vei muta în această zonă sunt autobuzele 300 și 381. Primul face legătura dintre Piața Romană și Piața Victoriei continuându-și apoi traseul de-a lungul Bulevardului Ion Mihalache, iar cel de-al doilea conectează Piața Victoriei cu zona Tineretului și cu cartierul Berceni. De pe Bulevardul Regina Elisabeta vei putea lua troleibuzul 90 pentru a ajunge în Drumul Taberei sau în zona Arenei Naționale, iar în fața Spitalului Colțea vei găsi stația autobuzului 381 care merge în cartierul Berceni. Iar dacă preferi să te deplasezi pe două roți, vei avea la dispoziție una dintre pistele speciale destinate bicicliștilor pe Calea Victoriei. Aceasta îți va oferi, în plus, oportunitatea ideală de a admira arhitectura deosebită a clădirilor aflate de o parte și de alta a uneia dintre cele mai frumoase străzi din București. Consultă harta pentru a afla unde sunt localizate stațiile mijloacelor de transport în comun.
În această zonă găsim sediul central al Universității din București și cel al Academiei de Studii Economice din București (ASE), unele dintre cele mai prestigioase instituții de învățământ superior din România. Tot aici se află și sediile mai multor facultăți. Ai și alte instituții de învățământ cu renume la doi pași de casă, precum precum Colegiul Național "Sfântul Sava", Colegiul Național "Gheorghe Lazăr", Liceul Teoretic Bulgar "Hristo Botev" și Universitatea Națională de Muzică. De menționat este și Căminul Moxa, aflat în zona Calea Victoriei, în care sunt cazați unii dintre studenții ASE. Consultă harta de mai jos pentru a vedea și celelalte unități de învățământ din zonă.
În această parte a orașului vei găsi numeroase reprezentanțe ale unor branduri de lux. Cele mai multe magazine alimentare din zonă au dimensiuni reduse. Pentru cumpărături îți recomandăm Piața Amzei, aflată la doi pași de Romană și modernizată recent. Aici găsești, pe lângă comercianți de unde poți cumpăra legume și fructe și câteva magazine cu preparate proaspete de la burgeri, la pâine artizanală sau înghețată. Centrul Vechi găzduiește, totodată, reprezentanțe ale unor retaileri de modă. Tot aici găsești și librăria Cărturești Carusel, una dintre cele mai frumoase din oraș. O librărie Cărturești deschisă într-o altă clădire deosebită poate fi găsită și în apropiere de Piața Romană. Un spațiu comercial cu renume este Magazinul Victoria, un monument istoric al orașului. Magazinul București, amplasat la intersecția străzilor I.C. Brătianu și Lipscani a fost reconstruit recent cu o investiție substanțială. Ai în apropiere magazinul Cocor, centrul comercial Unirea Shopping City și un hipermarket Carrefour. Cu mașina sau metroul poți să ajungi destul de repede la mall-ul AFI Cotroceni. Consultă harta și vezi ce magazine vei avea în apropierea noii tale case.
Aceasta este una dintre cele mai aglomerate zone din București la orele de vârf. Aici găsești însă și unele dintre puținele parcări subterane din Capitală. Chiar vis-a-vis de Universitatea București ai intrarea într-o astfel de parcare cu peste 400 de locuri. O parcare destul de încăpătoare poate fi găsită și în Piața Victoriei. Atenție, însă, această zonă se poate aglomera nu doar din cauza traficului, ci și din cauza diverselor manifestări sau proteste care se organizează, de obicei, în fața Palatului Victoria, sediul Guvernului României. Dacă te hotărăști să te muți în zonă, atunci îți recomandăm să te interesezi de posibilitatea închirierii unui loc de parcare pentru mașina ta. Poți face acest lucru apelând la Serviciul Parcaje al ADP Sector 1. Consultă harta pentru a afla unde găsești și alte parcări în zona Victoriei-Romană-Universitate.
Zona Victoriei - Romană - Universitate este un epicentru cultural al Capitalei și oferă numeroase opțiuni de petrecere a timpului liber. Aici vei găsi numeroase muzee impresionante pe care le poți vizita în timpul liber (Muzeul Național de Istorie Naturală "Grigore Antipa", Muzeul Țăranului Român, Muzeul Național George Enescu, etc), vei putea participa la evenimentele în aer liber desfășurate pe Calea Victoriei sau în Piața George Enescu sau vei putea merge la un spectacol organizat pe scena Ateneului Român sau pe cea a Teatrului Notarra. Nu rata nici o vizită la Teatrul Național "I.L. Caragiale" și la Muzeul Național de Artă al României. Observatorul Astronomic Amiral Vasile Urseanu te așteaptă cu o experiență extrem de educativă care va fi, cu siguranță, apreciată de micuțul tău. Dacă îți place să ieși la o cafea în timpul liber alături de prietenii tăi, atunci în această zonă vei putea alege dintr-o multitudine de restaurante, terase și pub-uri. Nu lipsesc nici skybar-urile, care îți oferă priveliști de excepție de la înălțime. Cele câteva parcuri din zona Victorieim - Romană - Universitate au dimensiuni destul de reduse, dar sunt frumos îngrijite. Printre acestea amintim Parcul Ateneului și Parcul Nicolae Iorga. Dacă preferi plimbările lungi în weekend, atunci vei avea la dispoziție în apropiere parcurile Kiseleff și Cișmigiu. Nu uita, de asemenea, că te vei afla la doi pași de Centrul Vechi al Capitalei, dar și că vei putea să faci o plimbare cu bicicleta pe Calea Victoriei. În condiții normale, se organizează periodic evenimente în centrul orașului, atât în cadrul Sălii Palatului, cât și în aer liber în Piața Revoluției. În Piața Universității sunt organizate, totodată, diferite târguri și concerte. Vezi pe hartă mai multe puncte de interes din zona Victoriei-Romană-Universitate.
Chiar la Piața Universității se află principala unitate sanitară din zonă. Este vorba despre Spitalul Clinic Colțea, primul înființat în București. În zona Victoriei - Romană - Universitate vei întâlni mai multe clinici private, precum Policlinica Enescu din cadrul rețelei de sănătate Regina Maria și Spitalul Clinic Sanador. La doi pași de Piața Romană se află Spitalul Clinic de Urgențe Oftalmologice, cel mai mare din România cu o astfel de specializare. Consultă harta pentru a afla ce clinici private ai în apropierea casei, dacă te muți în această parte a orașului.
Găsești numeroase restaurante, terase și cafenele potrivite pentru toate gusturile în Centrul Vechi al orașului, pe Calea Victoriei sau în zona din spatele Ateneului Român. Câteva fast food-uri ai la dispoziție în Unirea Shopping Center. Nu foarte departe, în zona Romană, ai și alte opțiuni. Află de pe hartă unde găsești cel mai apropiat restaurant de noua ta casă.
Sucursale ale diferitelor bănci sunt dispuse de-a lungul principalelor artere de circulație sau în marile intersecții din zonă. Un BRD, spre exemplu, găsești chiar lângă Cercul Militar Național. Pe Bulevardul Nicolae Bălcescu o sucursală Banca Transilvania și ING Bank. La doi pași de Piața Universității se află și Palatul Băncii Naționale a României. Consultă harta pentru mai multe detalii.
Înainte să pleci...
Ești sigur că ai văzut și aceste proprietăți?
2.584 € / lună
București, P-ța Victoriei
190 mp utili
1E
2.700 € / lună
București, Universitate
50 mp utili
Casă/Vilă
3E
2.300 € / lună
București, Victoriei
35,5 mp utili
Spațiu stradal
8E
Creează alertă
Salvează căutarea ca să primești pe email ultimele anunțuri publicate
Spații comerciale de închiriat în zona P-ța Victoriei, Ultracentral
Cere detalii prin email
*
*
*
*
Detaliile tale de contact vor fi partajate cu Platinum Real Estate & Arhitecture