Agentia Imobiliara Settlers ofera spre inchiriere un spatiu comercial modern, ideal pentru clinici, laboratoare, showroom-uri sau birouri, amplasat intr-o zona cu vizibilitate excelenta si acces facil.
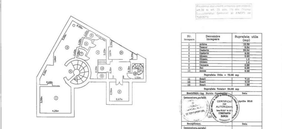
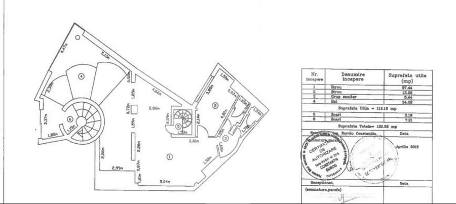
Spatiul are o suprafata utila de 200 mp (185 mp in prezent, cu posibilitate de extindere dupa demolarea ghiseelor de la demisol) si beneficiaza de o vitrina generoasa de 15 metri liniari, perfecta pentru expunere si branding.
Compartimentarea este flexibila, putand fi adaptata in functie de specificul activitatii – de la clinici medicale pana la birouri corporate sau servicii comerciale.
Detalii tehnice:
Suprafata utila: 200 mp
Etaj: demisol + parter
Intrari: 2 (acces separat pentru clienti si personal)
Bai: 2
Incalzire: centrala proprie
Curent trifazic: nu este instalat, dar se poate obtine
Fara ipoteca, fara TVA
An constructie: 1995
Disponibilitate: imediata
Spatiul poate fi inchiriat si catre persoane juridice straine
Pret de vanzare: 570.000 €
Acest spatiu ofera o combinatie excelenta intre pozitionare, vizibilitate si functionalitate – o oportunitate ideala pentru investitii sau dezvoltarea propriei afaceri!
Nr grupuri sanitare: 2
Nr incaperi: 10
Utilitati - Sistem incalzire (Centrala proprie,Calorifere); Climatizare (Aer conditionat,Ventiloconvectoare); Utilitati generale (Curent,Apa,Canalizare,CATV)
Finisaje - Podele (Gresie,Parchet); Stare interior (Necesita renovare); Ferestre cu geam termopan (PVC)
Dotari - Contorizare (Apometre,Contor caldura,Contor gaz)
pret inchiriere: 2750
moneda inchiriere: EUR
Disponibilitate proprietate: imediat
Sediul central - Timișoara
Bulevardul Victor Babeș nr. 2, 300230, Timișoara, România
Tel: +40.374.40.44.98 / Fax: +40.256.401.179
Email: suport@imobiliare.ro
Luni - Vineri 08:00 - 20:00
Punct de lucru - București: Iride Business Park, Bld. Dimitrie
Pompeiu 9-9A, Clădirea B2B,
020335, Sector 2, București, România
CONTACT
Sediul central - Timișoara
Bulevardul Victor Babeș nr. 2, 300230, Timișoara, România
Tel: +40.374.40.44.98 / Fax: +40.256.401.179
Email: suport@imobiliare.ro
Luni - Vineri 08:00 - 20:00
Punct de lucru - București: Iride Business Park, Bld. Dimitrie
Pompeiu 9-9A, Clădirea B2B,
020335, Sector 2, București, România
University of Bucharest - Faculty of Foreign Languages and Literatures (en)
aprox.
287 m
Centrul de Limbi Straine Ariel
aprox.
290 m
Rectoratul UMF "Carol Davila"
aprox.
317 m
Palatul Fundației Universitare "Carol I"
aprox.
331 m
UAUIM -Universitatea de Arhitectura si Urbanism Ion Mincu
aprox.
365 m
Facultatea de Limbi si Literaturi Straine
aprox.
390 m
Facultatea de litere (en)
aprox.
411 m
Facultatea de Chimie
aprox.
428 m
Facultatea de Matematica-Informatica
aprox.
447 m
Facultatea de Istorie
aprox.
462 m
Facultatea de Stiinte
aprox.
483 m
Universitatea Nationala de Muzica Conservator
aprox.
859 m
Universitatea Nationala de Muzica Bucuresti
aprox.
859 m
Scoala Nr. 19 Tudor Arghezi
aprox.
141 m
Schiller Institut
aprox.
183 m
Amfiteatrul Sahia
aprox.
286 m
ASLS (en)
aprox.
298 m
Goethe Institut (en)
aprox.
339 m
SNSPA - Cladirea CIC
aprox.
351 m
Scoala de muzica nr. 4
aprox.
405 m
Ateneul roman, Bucuresti
aprox.
412 m
Grup Școlar "Dragomir Hurmuzescu"
aprox.
452 m
Școala Centrală din Bucuresti
aprox.
561 m
Scoala Centrala
aprox.
567 m
GRADINITA DE COPII NR. 8 "LICURICI"
aprox.
589 m
Scoala Ajutatoare nr. 1
aprox.
673 m
Scoala Generala Nr. 5 Corneliu M. Popescu
aprox.
696 m
Institutul Cervantes
aprox.
728 m
Gradinita nr.203 (fosta Clementa)
aprox.
216 m
Gradinita nr. 203 program prelungit
aprox.
231 m
Gradinita nr.4 "Lizuca"
aprox.
244 m
Gradinita Ioanid
aprox.
716 m
Ioanid
aprox.
724 m
Gradinita numarul 257
aprox.
732 m
Gradinita nr. 116
aprox.
739 m
Gradinita numarul 133
aprox.
813 m
Gradinita nr. 85
aprox.
1063 m
Gradinita numarul 8
aprox.
1291 m
Gradinita nr. 248
aprox.
1306 m
Gradinita Nr. 78 Miguel de Cervantes
aprox.
1308 m
Gradinita nr. 252 cu program prelungit
aprox.
1311 m
Gradinita nr. 138 cu program prelungit
aprox.
1376 m
Gradinita nr. 73
aprox.
1395 m
Pravalia Maestrului
aprox.
141 m
Mega Image Rosetti Non-Stop
aprox.
197 m
ilanplant
aprox.
321 m
OK Non-stop Supermarket (en)
aprox.
475 m
OK Non-Stop
aprox.
475 m
Mega Image Magheru
aprox.
525 m
Bacania Coco
aprox.
565 m
Mega Image - Icoanei
aprox.
613 m
Nik Non-Stop
aprox.
670 m
Mega Image Amzei Non-Stop
aprox.
690 m
Mega Image Brezoianu
aprox.
712 m
Mag.Victoria
aprox.
786 m
Mega Image Paleologu
aprox.
794 m
Mega Image Concept Store
aprox.
972 m
Cocor
aprox.
1030 m
"METROPLIS CENTER"
aprox.
1495 m
Parcare cu plata
aprox.
229 m
Parcare
aprox.
243 m
Parcare cu plata
aprox.
251 m
Parcare
aprox.
274 m
Parcare
aprox.
275 m
Parcare
aprox.
303 m
Parcare
aprox.
310 m
Parcare
aprox.
332 m
Parcare
aprox.
374 m
Parcare
aprox.
394 m
Parcare
aprox.
408 m
Parcare
aprox.
426 m
Parcare
aprox.
428 m
Parcare
aprox.
467 m
Parcare
aprox.
488 m
Parc
aprox.
119 m
Small park (en)
aprox.
197 m
Parc
aprox.
197 m
Parc
aprox.
280 m
Parc
aprox.
335 m
Parc
aprox.
336 m
Parc
aprox.
351 m
Parc
aprox.
359 m
60 Minutes
aprox.
421 m
Rond Piața Universității
aprox.
432 m
Park (en)
aprox.
439 m
Piata George Enescu
aprox.
439 m
Parcul Colțea
aprox.
469 m
Parc
aprox.
475 m
Parcul "Grădina Icoanei"
aprox.
488 m
Piata Revolutiei
aprox.
328 m
Piata Universitatii
aprox.
379 m
Piata Rosetti
aprox.
516 m
Piața Drapelului (Tricolorului)
aprox.
575 m
Piata Roma
aprox.
858 m
Piața Romană
aprox.
940 m
Piata Timpului
aprox.
980 m
Piata Latina
aprox.
1019 m
Piața Sfântul Anton
aprox.
1053 m
Piata Natiunilor Unite
aprox.
1149 m
Piata Bibescu
aprox.
1530 m
Piața Constituției
aprox.
1562 m
Piata Emil Cioran (Vergilius) (en)
aprox.
1628 m
Teren sportiv
aprox.
1137 m
Teren sportiv
aprox.
1148 m
Teren sportiv
aprox.
1258 m
Teren sportiv
aprox.
1271 m
Teren sportiv
aprox.
1428 m
Baza sportiva Universitatea Bucuresti
aprox.
1517 m
Teren sportiv
aprox.
1523 m
teren tenis
aprox.
1543 m
Teren sportiv
aprox.
1696 m
Stadionul Dinamo
aprox.
1741 m
Teren sportiv
aprox.
1907 m
Teren sportiv
aprox.
1920 m
Teren sportiv
aprox.
1930 m
Teren sportiv
aprox.
1992 m
Policlinica (en)
aprox.
157 m
Centrul Medical Batistei
aprox.
177 m
Clinica Reumatologie "Dr. Ion Stoia"
aprox.
345 m
Centrul Medical Academica
aprox.
443 m
Clinica de 10
aprox.
519 m
Centrul Medical Unirea Enescu
aprox.
539 m
Centrul Medical Unirea sediul Enescu
aprox.
554 m
Spitalul Colțea
aprox.
574 m
Spitalul de Oftalmologie
aprox.
725 m
Spitalul Clinic de Urgente Oftalmologice
aprox.
728 m
Cabinet stomatologic (en)
aprox.
837 m
INGG Ana Aslan Spatarului nr. 15 (en)
aprox.
859 m
Bioderm Eminescu (en)
aprox.
865 m
Institutul de Diabet NCPaulescu (en)
aprox.
881 m
Centru medical MEDSANA
aprox.
886 m
belladona
aprox.
184 m
Royal Blu Pharmacy
aprox.
247 m
Farmacia Apifarm
aprox.
252 m
Sensiblu
aprox.
252 m
Farmacia Tarsis Impex
aprox.
257 m
Farmacia Artafarm
aprox.
269 m
Farmacia Academia
aprox.
360 m
Reteta
aprox.
446 m
HelpNet
aprox.
459 m
Farmacia Nr. 1
aprox.
469 m
Sensiblu
aprox.
554 m
Farmacia Coltea
aprox.
556 m
Gema Farm Impex
aprox.
584 m
Catena Farmacie
aprox.
621 m
Sensiblu
aprox.
633 m
Jerry's Pizza - Magheru
aprox.
134 m
Jerry's Pizza (en)
aprox.
134 m
Super Falafel
aprox.
134 m
Burebista
aprox.
182 m
Bistro Phillipe (en)
aprox.
184 m
Crilis
aprox.
185 m
Gourmet
aprox.
199 m
La Rosetti
aprox.
206 m
Modigliani
aprox.
212 m
Corso
aprox.
217 m
Pescarul
aprox.
233 m
Trattoria Bocca
aprox.
243 m
Hotel InterContinental Bucuresti***** (77m)(1971)
aprox.
245 m
Restaurant Cucina Borghese
aprox.
253 m
Mesogios Fish Restaurant
aprox.
255 m
Mi-nut
aprox.
161 m
Lente Praporgescu
aprox.
198 m
Cafeneaua Arhitectilor
aprox.
241 m
Zvon Caffe
aprox.
274 m
Vesuvio Cafe
aprox.
293 m
Newton Caffe
aprox.
300 m
Hobby Caffe & Shop
aprox.
310 m
Mara Mura
aprox.
393 m
Gradina OAR
aprox.
400 m
Nana
aprox.
439 m
Demmers Teahouse
aprox.
449 m
Gradina Verona
aprox.
455 m
T-zero
aprox.
461 m
T-zone
aprox.
461 m
Bernschutz and Co
aprox.
528 m
Que Pasa
aprox.
175 m
Fratelli Espresso Bar
aprox.
342 m
Dianei Patru
aprox.
455 m
Yellow Bar
aprox.
472 m
Control Club
aprox.
560 m
Piua Book Bar
aprox.
564 m
Underworld
aprox.
632 m
Epic
aprox.
641 m
Trei Betivi
aprox.
671 m
Macaz Bar Teatru Coop
aprox.
713 m
Beer o'clock
aprox.
722 m
Opium Stage Club
aprox.
728 m
Gambrinus
aprox.
747 m
LondonPhone
aprox.
749 m
Galliano Club
aprox.
755 m
Coloseum
aprox.
375 m
Have a Cigar
aprox.
378 m
Question Mark Social Club
aprox.
412 m
Edgar`s Pub
aprox.
449 m
Charlatans Irish Pub
aprox.
535 m
Clock`s
aprox.
551 m
OLD NICK PUB
aprox.
644 m
James Joyce's Pub & Restaurant
aprox.
706 m
Club Surubelnita
aprox.
723 m
Smart's Pub & Bistro
aprox.
728 m
Nexus Gamers Pub
aprox.
734 m
Club A
aprox.
750 m
Dharma
aprox.
761 m
S.A.L.T.
aprox.
773 m
Hanul cu Tei
aprox.
773 m
Garanti Bank
aprox.
73 m
Piraeus Bank
aprox.
86 m
Sucursala ING Bank (en)
aprox.
87 m
ING Balcescu
aprox.
87 m
Raiffeisen Bank
aprox.
127 m
Sucursala Raiffeisen Bank (en)
aprox.
131 m
Credit Europe Bank
aprox.
137 m
Credit Europe Bank
aprox.
147 m
Banca Transilvania - Ag. Magheru
aprox.
183 m
Libra Internet Bank
aprox.
239 m
BRD (en)
aprox.
246 m
BRD Calderon-Batistei
aprox.
246 m
Ion Tiriac Banc (en)
aprox.
263 m
UniCredit Bank - Ag. Rosetti
aprox.
269 m
Bancpost
aprox.
305 m
Fiind o zonă ultracentrală, aceasta oferă numeroase opțiuni de călătorie cu mijloacele de transport în comun, și este bine conectată cu restul orașului. Ai, în primul rând, la dispoziție stațiile de metrou Piața Victoriei, Piața Romană și Universitate. Astfel, te vei putea deplasa rapid prin oraș, evitând aglomerația de la suprafață. Toate acestea sunt situate pe magistrala 2 care traversează Bucureștiul de la nord la sud. În plus, de la Piața Victoriei vei putea lua metroul și pe magistrala 1 pentru a ajunge, de exemplu, în cartierul Pantelimon sau în zona Eroilor. Prin Piața Universității urmează să treacă și magistrala 5 care va lega cartierele Drumul Taberei și Pantelimon. Până acum, s-au deschis însă doar stațiile de metrou aflate în zona Drumul Taberei. Alte mijloace de transport în comun care ar putea să-ți fie de ajutor atunci când te vei muta în această zonă sunt autobuzele 300 și 381. Primul face legătura dintre Piața Romană și Piața Victoriei continuându-și apoi traseul de-a lungul Bulevardului Ion Mihalache, iar cel de-al doilea conectează Piața Victoriei cu zona Tineretului și cu cartierul Berceni. De pe Bulevardul Regina Elisabeta vei putea lua troleibuzul 90 pentru a ajunge în Drumul Taberei sau în zona Arenei Naționale, iar în fața Spitalului Colțea vei găsi stația autobuzului 381 care merge în cartierul Berceni. Iar dacă preferi să te deplasezi pe două roți, vei avea la dispoziție una dintre pistele speciale destinate bicicliștilor pe Calea Victoriei. Aceasta îți va oferi, în plus, oportunitatea ideală de a admira arhitectura deosebită a clădirilor aflate de o parte și de alta a uneia dintre cele mai frumoase străzi din București. Consultă harta pentru a afla unde sunt localizate stațiile mijloacelor de transport în comun.
În această zonă găsim sediul central al Universității din București și cel al Academiei de Studii Economice din București (ASE), unele dintre cele mai prestigioase instituții de învățământ superior din România. Tot aici se află și sediile mai multor facultăți. Ai și alte instituții de învățământ cu renume la doi pași de casă, precum precum Colegiul Național "Sfântul Sava", Colegiul Național "Gheorghe Lazăr", Liceul Teoretic Bulgar "Hristo Botev" și Universitatea Națională de Muzică. De menționat este și Căminul Moxa, aflat în zona Calea Victoriei, în care sunt cazați unii dintre studenții ASE. Consultă harta de mai jos pentru a vedea și celelalte unități de învățământ din zonă.
În această parte a orașului vei găsi numeroase reprezentanțe ale unor branduri de lux. Cele mai multe magazine alimentare din zonă au dimensiuni reduse. Pentru cumpărături îți recomandăm Piața Amzei, aflată la doi pași de Romană și modernizată recent. Aici găsești, pe lângă comercianți de unde poți cumpăra legume și fructe și câteva magazine cu preparate proaspete de la burgeri, la pâine artizanală sau înghețată. Centrul Vechi găzduiește, totodată, reprezentanțe ale unor retaileri de modă. Tot aici găsești și librăria Cărturești Carusel, una dintre cele mai frumoase din oraș. O librărie Cărturești deschisă într-o altă clădire deosebită poate fi găsită și în apropiere de Piața Romană. Un spațiu comercial cu renume este Magazinul Victoria, un monument istoric al orașului. Magazinul București, amplasat la intersecția străzilor I.C. Brătianu și Lipscani a fost reconstruit recent cu o investiție substanțială. Ai în apropiere magazinul Cocor, centrul comercial Unirea Shopping City și un hipermarket Carrefour. Cu mașina sau metroul poți să ajungi destul de repede la mall-ul AFI Cotroceni. Consultă harta și vezi ce magazine vei avea în apropierea noii tale case.
Aceasta este una dintre cele mai aglomerate zone din București la orele de vârf. Aici găsești însă și unele dintre puținele parcări subterane din Capitală. Chiar vis-a-vis de Universitatea București ai intrarea într-o astfel de parcare cu peste 400 de locuri. O parcare destul de încăpătoare poate fi găsită și în Piața Victoriei. Atenție, însă, această zonă se poate aglomera nu doar din cauza traficului, ci și din cauza diverselor manifestări sau proteste care se organizează, de obicei, în fața Palatului Victoria, sediul Guvernului României. Dacă te hotărăști să te muți în zonă, atunci îți recomandăm să te interesezi de posibilitatea închirierii unui loc de parcare pentru mașina ta. Poți face acest lucru apelând la Serviciul Parcaje al ADP Sector 1. Consultă harta pentru a afla unde găsești și alte parcări în zona Victoriei-Romană-Universitate.
Zona Victoriei - Romană - Universitate este un epicentru cultural al Capitalei și oferă numeroase opțiuni de petrecere a timpului liber. Aici vei găsi numeroase muzee impresionante pe care le poți vizita în timpul liber (Muzeul Național de Istorie Naturală "Grigore Antipa", Muzeul Țăranului Român, Muzeul Național George Enescu, etc), vei putea participa la evenimentele în aer liber desfășurate pe Calea Victoriei sau în Piața George Enescu sau vei putea merge la un spectacol organizat pe scena Ateneului Român sau pe cea a Teatrului Notarra. Nu rata nici o vizită la Teatrul Național "I.L. Caragiale" și la Muzeul Național de Artă al României. Observatorul Astronomic Amiral Vasile Urseanu te așteaptă cu o experiență extrem de educativă care va fi, cu siguranță, apreciată de micuțul tău. Dacă îți place să ieși la o cafea în timpul liber alături de prietenii tăi, atunci în această zonă vei putea alege dintr-o multitudine de restaurante, terase și pub-uri. Nu lipsesc nici skybar-urile, care îți oferă priveliști de excepție de la înălțime. Cele câteva parcuri din zona Victorieim - Romană - Universitate au dimensiuni destul de reduse, dar sunt frumos îngrijite. Printre acestea amintim Parcul Ateneului și Parcul Nicolae Iorga. Dacă preferi plimbările lungi în weekend, atunci vei avea la dispoziție în apropiere parcurile Kiseleff și Cișmigiu. Nu uita, de asemenea, că te vei afla la doi pași de Centrul Vechi al Capitalei, dar și că vei putea să faci o plimbare cu bicicleta pe Calea Victoriei. În condiții normale, se organizează periodic evenimente în centrul orașului, atât în cadrul Sălii Palatului, cât și în aer liber în Piața Revoluției. În Piața Universității sunt organizate, totodată, diferite târguri și concerte. Vezi pe hartă mai multe puncte de interes din zona Victoriei-Romană-Universitate.
Chiar la Piața Universității se află principala unitate sanitară din zonă. Este vorba despre Spitalul Clinic Colțea, primul înființat în București. În zona Victoriei - Romană - Universitate vei întâlni mai multe clinici private, precum Policlinica Enescu din cadrul rețelei de sănătate Regina Maria și Spitalul Clinic Sanador. La doi pași de Piața Romană se află Spitalul Clinic de Urgențe Oftalmologice, cel mai mare din România cu o astfel de specializare. Consultă harta pentru a afla ce clinici private ai în apropierea casei, dacă te muți în această parte a orașului.
Găsești numeroase restaurante, terase și cafenele potrivite pentru toate gusturile în Centrul Vechi al orașului, pe Calea Victoriei sau în zona din spatele Ateneului Român. Câteva fast food-uri ai la dispoziție în Unirea Shopping Center. Nu foarte departe, în zona Romană, ai și alte opțiuni. Află de pe hartă unde găsești cel mai apropiat restaurant de noua ta casă.
Sucursale ale diferitelor bănci sunt dispuse de-a lungul principalelor artere de circulație sau în marile intersecții din zonă. Un BRD, spre exemplu, găsești chiar lângă Cercul Militar Național. Pe Bulevardul Nicolae Bălcescu o sucursală Banca Transilvania și ING Bank. La doi pași de Piața Universității se află și Palatul Băncii Naționale a României. Consultă harta pentru mai multe detalii.
Înainte să pleci...
Ești sigur că ai văzut și aceste proprietăți?
2.550 € / lună
București, Parcul Carol
170 mp utili
Spațiu stradal
1990
2.700 € / lună
București, P-ța Universității
180 mp utili
Spațiu stradal
1990
2.974 € / lună
București, Universitate
230 mp utili
2.358 € / lună
București, Dacia
180 mp utili
Spațiu stradal
1E
3.000 € / lună
București, Basarab
200 mp utili
Bloc de apartamente
2.615 € / lună
București, Militari
326,17 mp utili
Centru comercial
3E
Creează alertă
Salvează căutarea ca să primești pe email ultimele anunțuri publicate
Spații comerciale de închiriat în zona Universitate, Ultracentral
Cere detalii prin email
*
*
*
*
Detaliile tale de contact vor fi partajate cu Settlers