Orizont, Spatiu comercial 43 mp

49.900 €

Orizont, Bacău

Sup. utilă / mp. utili:
40 mp
Tip prop.:
Centru comercial
Niv.:
10
An constr.:
1978 (Există)
  • • Exclusivitate
  • • Locație exactă
  • • Vizionare prin apel video

Descriere spațiu comercial

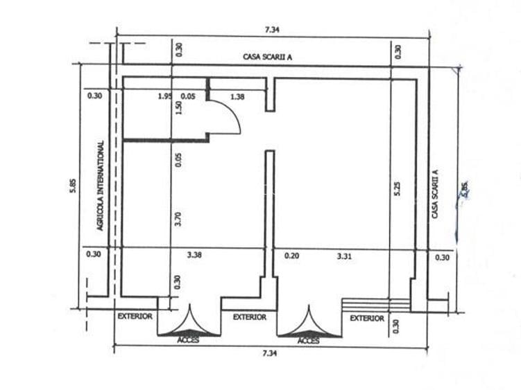
PROHOUSE ofera spre vanzare, in exclusivitate, un spatiu comercial cu suprafata construita de 43 mp, situat in Bacau, in zona Orizont, cu acces si vitrina in curtea interioara a blocului. Spatiul se preteaza pentru activitati de birouri, saloane, cabinete, spatiu de depozitare, etc., si pot functiona 2 societati avand 2 usi de acces direct din strada. Imobilul este dotat cu aer conditionat, termopan, este racordat la curent (220V , 380 V), apa si canalizare, si are grup sanitar propriu. Pentru vizionare sau detalii, nu ezitati sa ne contactati.
Citește mai mult Citește mai puțin

Detalii spațiu comercial

ID anunț: X0QL14074 Copiat! 272088573 Copiat!
Actualizat în: 02 Februarie 2026
Regim înălțime: P+10E
Stadiu construcție: Există
Vitrină: Da

Utilități

Comision
3%

Puncte de interes

Mijloace transport
bus-station
Statia Narcisa
Stații autobuz aprox. 1005 m
Școală
school
Scoala Gimnaziala Nr.10
Școli aprox. 311 m
university
block B
Universități aprox. 717 m
university
Universitatea George Bacovia
Universități aprox. 1294 m
Recreere
restaurant
Restaurant Iris
Restaurant aprox. 37 m
sports-ground
Teren sportiv
Terenuri sport aprox. 325 m
supermarket
Carrefour Market - Central Plaza
Supermarket aprox. 884 m
park
Parc
Parcuri aprox. 1076 m

Proprietăți recomandate

Detalii de contact

PROHOUSE

Dan Drutu Agent imobiliar

PROHOUSE
PRO

Abonează-te la newsletter să fii primul care primește cele mai noi recomandări de proprietăți și sfaturi de la experți.

CONTACT

Creează alertă

Salvează căutarea ca să primești pe email ultimele anunțuri publicate

Spații comerciale cu 2 camere de vânzare în zona Orizont, Bacău