1

Spatiu Comercial Zona Centrala

320.000 € + TVA

Centrul Istoric, Brașov

Sup. utilă / mp. utili:
154 mp
Tip prop.:
Casă/Vilă
Niv.:
1
An constr.:
1940 (Există)
  • • Exclusivitate
  • • Locație exactă

Descriere spațiu comercial

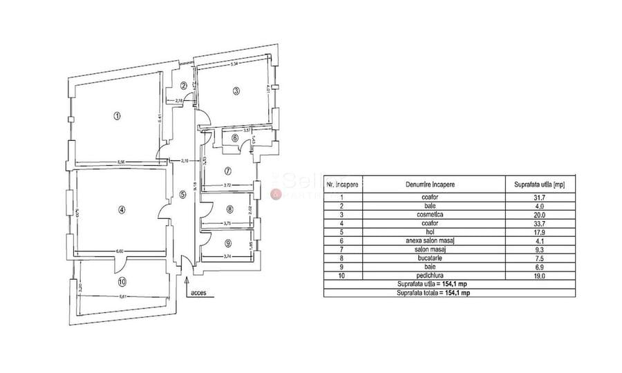
LOCALIZARE: Acest imobil este situat in Centrul Istoric, in imediata apropiere a celor mai importante obiective turistice si cu acces rapid catre principalele puncte de interes ale orasului. COMPARTIMENTARE: -5 camere decomandate (fiecare cu intrare din hol); Suprafete incaperi (conform schitei atasate): -camera 1- 31.7 mp.; -camera 3 - 20 mp.; -camera 4- 33.7 mp.; -camera 7- 9.3 mp.; -camera 10- 19 mp.; Spatii administrative: -bucatarie: 7,5 mp.; -hol spatios si luminos: 17.9 mp.; -1 grup sanitar -6.9 mp; -baie cu cabina dus- 4 mp.; -baie care deserveste camera 7: 4,10 mp. DOTARI: - centrala termica; - tamplarie PVC, cu geam termopan; - usa metalica; - aer conditionat. Curte si anexe: -curte: utilizare comuna, acces auto; -1 beci mare si uscat. Parcari disponibile in zona. Acest imobil se preteaza pentru sediu de birou, fiind ideal pentru cei care isi doresc o locatie cu incaperi spatioase, suprafata totala generoasa, compartimentare eficienta si amplasare excelenta in zona centrala. ATRACTII ZONA: Magazine, restaurante, parcuri, școli. ACCESIBILITATE: Transport public în apropiere. FORMA ACHIZITIONARE: - se accepta plata prin accesare credit. NOTA: Informatiile prezentate reflecta situatia reala a proprietatii, fara a constitui o oferta contractuala. Aceste date au fost obtinute verbal, de la titularul de drept al imobilului. Structura acestei prezentari nu poate fi reprodusa, fara acordul scris al The Seller and Partners.
Citește mai mult Citește mai puțin
1 Parcare

Detalii spațiu comercial

ID anunț: X3I014J47 Copiat! 275314352 Copiat!
Actualizat în: 19 Martie 2026
Suprafață utilă: 154 mp
Regim înălțime: 1S+P+1E+M
Stadiu construcție: Există

Utilități

Utilități
Curent Apă Canalizare Gaze
Comision
standard

Disponibilitate proprietate:

Imediat

Puncte de interes

Mijloace transport
bus-station
Hidro A
Stații autobuz aprox. 155 m
bus-station
Statia "Hidro A", liniile 1,4,6,52,34,37,
Stații autobuz aprox. 157 m
train-station
Gara Brasov Călători CFR
Stații tren aprox. 995 m
train-station
Statia CFR Brasov
Stații tren aprox. 1025 m
Școală
school
Liceul Dr. Ioan Mesota
Școli aprox. 206 m
school
Colegiul National "Dr Ioan Mesota"
Școli aprox. 210 m
kindergarten
Gradinita cu program normal nr. 18 (fosta nr. 23)
Gradinițe aprox. 220 m
university
Universitatea Europeana Dragan
Universități aprox. 428 m
Recreere
park
Parcul Centrul Civic
Parcuri aprox. 28 m
supermarket
Rapid Toamnei
Supermarket aprox. 447 m
sports-ground
Teren sportiv
Terenuri sport aprox. 749 m
mall
Magazinul Star
Mall aprox. 1408 m

Proprietăți similare

Spațiu comercial, de 150 mp, în Calea București
350.000 €
Brașov, Calea București
150 mp utili
10E
1986
Spațiu comercial, 62 mp în Tractorul
315.000 €
Brașov, Tractorul
62 mp utili
Bloc de apartamente
8E
Spațiu comercial, de 519 mp, în Exterior Est
318.000 €
Brașov, Exterior Est
519 mp utili
Casă/Vilă
2E

Detalii de contact

The Seller & Partners

Ciprian Coman Senior Advisor

The Seller & Partners
PRO

Abonează-te la newsletter să fii primul care primește cele mai noi recomandări de proprietăți și sfaturi de la experți.

CONTACT

Creează alertă

Salvează căutarea ca să primești pe email ultimele anunțuri publicate

Spații comerciale cu 4+ camere de vânzare în zona Centrul Istoric, Brașov