6

Sediu Firma | Activitati Comerciale

1.375.000 € + TVA

Exterior Nord, Brașov

Sup. utilă / mp. utili:
880 mp
Tip prop.:
Bloc de apartamente
Niv.:
2
An constr.:
2004 (Există)
  • • Locație aproximativă

Descriere spațiu comercial

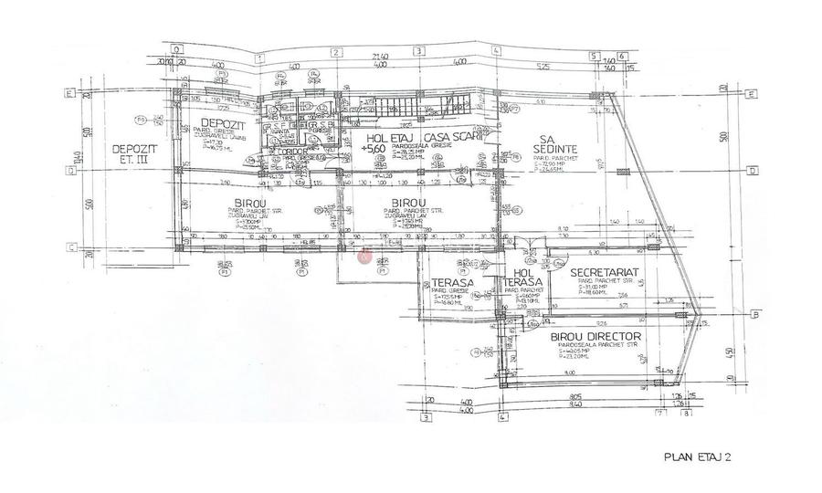
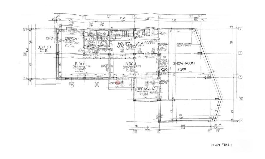
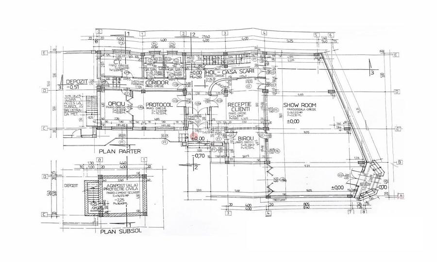
Ati accesat un imobil situat in zona Bartolomeu - Calea Feldioarei. LOCALIZARE: Proprietatea este pozitionata in imediata apropiere a nodului de intrare a soselei de centura a Brasovului (Bucuresti - Pitesti - Bacau), la o distanta de mai putin de 1 Km, asigurand un acces facil catre cartierul Stupini, Sighisoara, Sibiu, Pitesti, Bacau si Bucuresti. COMPARTIMENTARE: Imobilul, cu o amprenta la sol de 350 mp, dispune de un regim de inaltime S+P+2E, cu o suprafata totala utila de 880mp, dintre care141 mp showroom open space, dispus pe 2 niveluri. Showroom-ul dispune de 2 cai de acces pietonale si de un acces auto. Suprafata Totala Teren: 4.405 mp; Curte: 4.055 mp; Curte Betonata: 800 mp. Spatiul este alcatuit din 12 incaperi, cu compartimentari din structura usoara si pereti din sticla, dupa cum urmeaza: SUBSOL: - Spatiu ALA PARTER: - showroom; - grup sanitar dublu; - oficiu; - sala protocol; - 1 spatiu office. ETAJ 1: - grup sanitar dublu; - 5 spatii office; - 1 camera arhiva; - acces terasa; ETAJ 2: - grup saniatar dublu; - 6 spatii office; - 1 camera arhiva; - sala generoasa meeting | cursuri - cu suprafata generoasa; - acces terasa. SUPRAFATA COMERCIALA VITRATA: 18 ml; DOTARI: - 2 centrale termice Viessmann; - grup sanitar; - plafon casetat; - 15 locuri de parcare; - putere instalata 65 kWA. UTILITATI: - Gaz; - Put forat; - Fosa septica. AVANTAJE: - Suprafata generoasa; - Zona cu vad comercial; - Suprafata vitrata ampla; - Posibilitate de recompartimentare si inaltare, cu un etaj; - Acces TIR nerestrictionat. DESTINATIE COMERCIALA: - Rprezentanta auto; - Show room; - Sediu firma; - Centru medical, etc. IMPREJURIMI: Spatiul este situat intr-o zona comerciala cu vad.
Citește mai mult Citește mai puțin
15 Parcări

Detalii spațiu comercial

ID anunț: X3I014J0M Copiat! 250564239 Copiat!
Actualizat în: 24 Martie 2026
Suprafață utilă: 880 mp
Regim înălțime: D+P+2E+T
Stadiu construcție: Există
Vitrină: Da
Suprafață teren: 4405 mp

Utilități

Destinație
Birouri Comercial Rezidențial
Utilități
Curent Apă Canalizare Gaze
Comision
standard

Disponibilitate proprietate:

Imediat

Puncte de interes

Mijloace transport
bus-station
Statia Fantanii, linia 40, 18
Stații autobuz aprox. 705 m
bus-station
Mondotrans
Stații autobuz aprox. 919 m
bus-station
Statia Fagurului, linia 40, 18
Stații autobuz aprox. 1009 m
bus-station
Tipografia Brastar
Stații autobuz aprox. 1648 m
Școală
school
Scoala Generala 16
Școli aprox. 761 m

Proprietăți recomandate

Detalii de contact

The Seller & Partners

Daniel Aioanei Senior Advisor

The Seller & Partners
PRO

Abonează-te la newsletter să fii primul care primește cele mai noi recomandări de proprietăți și sfaturi de la experți.

CONTACT

Creează alertă

Salvează căutarea ca să primești pe email ultimele anunțuri publicate

Spații comerciale cu 4+ camere de vânzare în zona Exterior Nord, Brașov