Oferim spre vanzare un spatiu comercial in cartierul Dambul Rotund, aproape de Taietura Turcului si Fabrica de Sport..
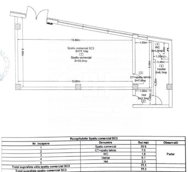
-incapere mare, se poate delimita cu ziduri tip rigips
-grup sanitar
-vestiar
-cca 77 mp utili
-acces stradal
-vitrina spre strada
-statie de autobuz in fata blocului
Se vinde cu o parcare subterana la pretul de 15 000 Euro!!!
Recomandarea noastra: un spatiu ideal pentru un cabinet, salon, birouri, showroom, clinica, etc
Pretul CONTINE TVA!
Nr grupuri sanitare: 1
Suprafata construita: 98 mp
Nr incaperi: 1
Utilitati - Sistem incalzire (Incalzire pardoseala); Utilitati generale (Curent,Apa,Canalizare,Gaz,Telefon)
Finisaje - Izolatii termice (Exterior,Bloc izolat termic); Podele (Gresie); Iluminat (Lampi,Lumina naturala); Ferestre cu geam termopan (PVC)
Dotari - Contorizare (Apometre,Contor gaz); Dotari imobil (Curte,Curte comuna,Interfon,Spatii agrement)
pret vanzare: 223000
moneda vanzare: EUR
Disponibilitate proprietate: imediat
Sediul central - Timișoara
Bulevardul Victor Babeș nr. 2, 300230, Timișoara, România
Tel: +40.374.40.44.98 / Fax: +40.256.401.179
Email: suport@imobiliare.ro
Luni - Vineri 08:00 - 20:00
Punct de lucru - București: Iride Business Park, Bld. Dimitrie
Pompeiu 9-9A, Clădirea B2B,
020335, Sector 2, București, România
CONTACT
Sediul central - Timișoara
Bulevardul Victor Babeș nr. 2, 300230, Timișoara, România
Tel: +40.374.40.44.98 / Fax: +40.256.401.179
Email: suport@imobiliare.ro
Luni - Vineri 08:00 - 20:00
Punct de lucru - București: Iride Business Park, Bld. Dimitrie
Pompeiu 9-9A, Clădirea B2B,
020335, Sector 2, București, România
Sună acum și cere detalii sau programează o vizionare.
Cere detalii prin email
*
*
*
*
Stații autobuz
Stații tramvai
Gradinițe
Școli
Universități
Supermarket
Parcări
Parcuri
Terenuri sport
Farmacie
Spital
Restaurant
Pub
Bar
Cafenea
Bancă
Statia TETAROM , Linia 37
aprox.
369 m
Bariera CFR Nord
aprox.
624 m
Bariera CFR
aprox.
627 m
Bariera CFR Sud
aprox.
627 m
Statia T.Vladimirescu 2, Linia 31
aprox.
633 m
Statia Bariera CFR, Linia 37
aprox.
634 m
Tudor Vladimirescu Sud
aprox.
649 m
Statia T.Vladimirescu, Linia 31
aprox.
671 m
Tudor Vladimirescu Nord
aprox.
684 m
Statia Bariera CFR 2, Linia 37
aprox.
710 m
Statia Calea Baciului, Linia 31
aprox.
884 m
Valea Seaca
aprox.
888 m
Statia Calea Baciului 2, Linia 31
aprox.
910 m
Calea Baciului
aprox.
914 m
Tiberiu Brediceanu
aprox.
945 m
Statia Sala Sporturilor 2TRV, Linia 102
aprox.
1620 m
Statia Sala Sporturilor 1TRV, 102
aprox.
1671 m
Sala Sporturilor
aprox.
1674 m
Uzinei Electrice
aprox.
1679 m
Splaiul Independentei
aprox.
1703 m
Cluj Arena
aprox.
1709 m
Statia Plopilor 2 TRV, Linia 102
aprox.
1814 m
Plopilor Nord
aprox.
1814 m
Plopilor Sud
aprox.
1818 m
Grăd.Mica Sirenă2
aprox.
727 m
Gradinita Neghinita
aprox.
831 m
Grăd.Neghinițăstr. 2
aprox.
874 m
Grăd.Mica Sirenă
aprox.
1039 m
Gradinita Mica Sirena
aprox.
1064 m
FasTracKids Cluj-Napoca
aprox.
1067 m
Grăd.Mica Sirenă1
aprox.
1277 m
Gradinita Steluta Fermecata
aprox.
1469 m
Gradinita Licuricistr. 2
aprox.
1495 m
Gradinita Licurici str. 1
aprox.
1626 m
Grăd.Bambi str.5
aprox.
1712 m
Gradinita Licurici
aprox.
1728 m
Grăd.Neghinițăstr. 1
aprox.
1847 m
Grăd.Neghiniță
aprox.
1954 m
Grăd.Căsuța poveștilor
aprox.
1964 m
Scoala Generala nr.15
aprox.
945 m
Liceul Teoretic Onisifor Ghibu
aprox.
945 m
Liceul Teoretic Onisifor Ghibu
aprox.
1139 m
Școala de Agenți de Poliție "Septimiu Mureșan" Cluj Napoca
aprox.
1567 m
Scoala Speciala pentru Deficienti de Auz Nr. 2
aprox.
1637 m
Liceul Teologic Baptist "Emanuel"
aprox.
1765 m
Liceul Teologic Emanuel
aprox.
1780 m
Institutul de cercetari in chimie Raluca Ripan
aprox.
1163 m
UBB Educatie Fizica si Sport
aprox.
1563 m
Facultatea de Educatie Fizica si Sport
aprox.
1579 m
Facultatea de Farmacie
aprox.
1989 m
Lidl
aprox.
676 m
OUTLET
aprox.
1026 m
Magazin Profi Grigorescu
aprox.
1402 m
Profi
aprox.
1402 m
Parcare
aprox.
376 m
Parcare
aprox.
447 m
Parcare pentru clienti cu plata
aprox.
720 m
Parcare privata
aprox.
738 m
Parcare privata
aprox.
749 m
Parcare privata
aprox.
753 m
Parcare privata
aprox.
771 m
Parcare privata
aprox.
781 m
Parcare
aprox.
805 m
Parcare privata
aprox.
812 m
Parcare
aprox.
834 m
Parcare
aprox.
865 m
Parcare
aprox.
901 m
Parcare
aprox.
923 m
Parcare
aprox.
925 m
Muzeul Etnografic Cluj (en)
aprox.
155 m
Parc
aprox.
721 m
Parc
aprox.
778 m
Parc
aprox.
887 m
Parc
aprox.
905 m
Părculeț
aprox.
916 m
Parc
aprox.
928 m
Parc
aprox.
932 m
Parc
aprox.
960 m
Parc
aprox.
1017 m
Parc
aprox.
1046 m
Parc
aprox.
1067 m
Parc
aprox.
1067 m
Spațiu joacă copii
aprox.
1104 m
Parc
aprox.
1115 m
Fabrica de Sport
aprox.
737 m
Teren sportiv
aprox.
911 m
Teren sportiv
aprox.
1120 m
Teren sportiv
aprox.
1319 m
Teren sportiv
aprox.
1446 m
Teren sportiv
aprox.
1446 m
Teren sportiv
aprox.
1485 m
Teren sportiv
aprox.
1490 m
Teren sportiv
aprox.
1509 m
Teren sportiv
aprox.
1523 m
Teren sportiv
aprox.
1525 m
Teren sportiv
aprox.
1527 m
Teren sportiv
aprox.
1527 m
Teren sportiv
aprox.
1528 m
Teren sportiv
aprox.
1528 m
Farmacia Panaceea
aprox.
779 m
Farmacia Grigorescu
aprox.
981 m
Farmacia Herba
aprox.
1165 m
Viva
aprox.
1281 m
Ropharma
aprox.
1321 m
Viscum
aprox.
1374 m
Cariatida Drogherie
aprox.
1781 m
Policlinica Grigorescu
aprox.
965 m
Spitalul Clinic de Urgenta pentru copii Cluj-Napoca Neonatologie-prematuri
aprox.
1355 m
Cabinet medical universitar
aprox.
1696 m
Ilinca
aprox.
724 m
Pizzeria Mamma Mia (en)
aprox.
806 m
Terasa "Hoia"
aprox.
880 m
Cantina Hoia
aprox.
888 m
La Casa
aprox.
933 m
La Luca
aprox.
966 m
Casa Vikingilor
aprox.
1024 m
Pralina
aprox.
1042 m
Hotel Panorama (en)
aprox.
1065 m
Restaurant "Sinaia"
aprox.
1249 m
Restaurant Sinaia
aprox.
1266 m
Restaurant Lugano
aprox.
1280 m
Fair - Play
aprox.
1294 m
Fair Play
aprox.
1312 m
Sunset Hill Rosetti
aprox.
1400 m
Infinity Games
aprox.
811 m
Infinity Games
aprox.
1256 m
Seven
aprox.
1370 m
Uni Sports Bar
aprox.
1610 m
Admiral
aprox.
838 m
Geo & Andi
aprox.
1026 m
Infinity Games
aprox.
1027 m
Las Vegas Caffe
aprox.
1132 m
Cotton Club
aprox.
1526 m
Marul de Aur
aprox.
1700 m
Royal cafe
aprox.
842 m
PLAN Cafe
aprox.
1123 m
Bookla
aprox.
1386 m
bike44
aprox.
1708 m
Banca Transilvania
aprox.
776 m
BCR
aprox.
1320 m
Millenium Bank
aprox.
1323 m
ING
aprox.
1326 m
Banca Transilvania
aprox.
1335 m
BRS, Banca Transilvania, BCR, UPC
aprox.
1356 m
BRD
aprox.
1368 m
CEC Bank
aprox.
1377 m
BT
aprox.
1608 m
Printre principalele artere care străbat această zonă a Clujului se numără, în partea de sud, strada Septimiu Mureșan (aceasta merge, pe bună parte din lungimea sa, paralel cu râul Nadăș); în centrul cartierului se află Strada Dâmbul Rotund "“ de unde îi vine, de fapt, și numele; în nord, Strada Gheorghe Sion și Strada Viile Dâmbul Rotund marchează, practic, limita nordică a cartierului. Comparativ cu alte zone ale Clujului, Dâmbul Rotund este, pe alocuri, destul de deficitar în ceea ce privește infrastructura rutieră. Deși este deservit, ca și alte zone clujene, de o serie de mijloace de transport în comun, zona de nord a cartierului ar necesita extinderea liniilor parcurse de acestea. Dacă vrei să cumperi o proprietate aici, interesează-te, așadar, ce distanță ai de parcurs până la cele mai apropiate stații.
Dacă ești părinte "“ sau deocamdată doar îți dorești să devii "“, cu siguranță că, atunci când vine vorba de alegerea unei locuințe, un aspect important la care te gândești este reprezentat de oportunitățile de educație disponibile într-o zonă sau alta. În această privință, poți să stai liniștit: în Dâmbul Rotund se găsesc, ca și în celelalte subdiviziuni ale orașului de pe Someș, mai multe unități de învățământ. O școală cu tradiție din cartier este Școala Gimnazială "Emil Isac", situată chiar în apropiere de Strada Dâmbul Rotund, din zona centrală. În ceea ce privește oportunitățile de continuare a studiilor după liceu, de menționat este Școala de Agenți de Poliție "Septimiu Mureșan" "“ localizată în zona de sud a cartierului, dar dincolo de cursul râului Nadăș.
Ca și în Gruia, în Dâmbul Rotund nu există, momentan, un mall și nici un hipermarket (lucru cât se poate de firesc, de altfel, ținând cont de faptul că este vorba de un cartier mărginaș și cu o densitate a populației relativ redusă). Locuitorii acestei zone nu sunt, însă, lipsiți de alternative când vine vorba de cumpărături "“ astfel, pentru nevoile de zi cu zi există o serie de magazine de dimensiuni mai reduse, dintre care unele afiliate unor rețele internaționale. Chiar dacă nu strict între granițele cartierului, opțiuni există și pentru aceia care sunt pasionați de shopping. Fără prea mare efort, aceștia pot ajunge rapid în zona Centrală a orașului, unde pot vizita numeroasele magazine existente în materie de fashion (și nu numai).
Dacă ai "“ sau intenționezi să-ți achiziționezi "“ o mașină, parcarea nu ar trebui să reprezinte, în mod normal, o problemă, dată fiind densitatea redusă a populației din acest cartier. Dacă dorești, totuși, să închiriezi un spațiu al tău de la autoritățile locale, te poți interesa la sediul central al Primăriei Clujului (amplasat pe Strada Moților, nr. 3).
Spre deosebire de locuitorii altor zone ale Clujului, cei din Dâmbul Rotund nu au la dispoziție un parc în toată puterea cuvântului, cartierul fiind, în general, deficitar și la capitolul locuri de joacă pentru copii. Totuși, având în vedere multitudinea zonelor verzi, poți spera să găsești câteva trasee bune de plimbare. Dacă ești pasionat de sport, iar mersul pe jos și joggingul nu sunt suficiente pentru tine, în Dâmbul Rotund găsești o oportunitate importantă, cunoscută localnicilor sub numele "Fabrica de Sport". Amplasat în sudul cartierului, în fosta zonă industrială, acesta este considerat a fi unul dintre cele mai moderne complexuri sportive din oraș, fiind deschis atât amatorilor de fotbal, cât și celor de fitness, aerobic, kickboxing etc.
Dacă te gândești să te muți în Dâmbul Rotund, poate că vei fi dezamăgit să afli că aici nu există niciun spital de stat. Nu e cazul, însă, să te descurajezi: având în vedere proximitatea față de Centru, pentru serviciile medicale de urgență poți ajunge rapid la multitudinea de spitale care se găsesc în "inima" orașului: Spitalul Clinic Județean de Urgență Cluj-Napoca, Spitalul Clinic Municipal Cluj-Napoca, Spitalul Universitar C.F. Cluj-Napoca etc. Nu sunt de neglijat, desigur, nici cele câteva cabinete medicale particulare ce pot fi găsite în cartier "“ pe acest segment vei găsi atât câteva opțiuni în materie de medicină de familie, cât și în ceea ce privește anumite servicii medicale de specialitate (stomatologie, spre exemplu).
În afară de câteva fast food-uri de cartier, locuitorii cartierului Dâmbul Rotund beneficiază, în apropierea casei, și de câteva oportunități demne de luat în seamă la capitolul restaurante. De menționat este restaurantul "Stejarul", amplasat pe Strada Corneliu Coposu, nr. 95, ce dispune de terasă și oferă și servicii de livrare la domiciliu, dar și restaurantul "Fabrica", de pe Strada Tudor Vladimirescu, nr. 22, unde pot fi organizate și evenimente. Pentru a beneficia de o gamă mai largă de opțiuni pentru ieșirile în oraș cu prietenii, locuitorii acestui cartier au la dispoziție, desigur, și zona Centrală.
Dacă ai nevoie să efectuezi o operațiune bancară, trebuie să știi că strict între granițele acestui cartier nu prea ai opțiuni la acest capitol. Cu toate acestea, imediat sub limita sudică a cartierului, la granița dintre Gruia și zona Centrală (reprezentată de Strada Horea), se găsesc trei sucursale bancare: una din rețeaua BCR, o Banca Transilvania, alături de un sediu Raiffeisen Bank. Consultă harta și află unde sunt localizate și alte bănci sau ATM-uri în cartierul Dâmbul Rotund:
Înainte să pleci...
Ești sigur că ai văzut și aceste proprietăți?
231.000 €
Cluj-Napoca, Dâmbul Rotund
89 mp utili
Bloc de apartamente
6E
238.000 €
Cluj-Napoca, Dâmbul Rotund
77,2 mp utili
Bloc de apartamente
5E
235.000 €
Cluj-Napoca, Mărăști
66 mp utili
Bloc de apartamente
8E
Creează alertă
Salvează căutarea ca să primești pe email ultimele anunțuri publicate
Spații comerciale de vânzare în zona Dâmbul Rotund, Cluj-Napoca
Cere detalii prin email
*
*
*
*
Detaliile tale de contact vor fi partajate cu Ideal Home