Spatiu comercial, S-120mp, 4 parcari, parter, Europa

270.000 €

Europa, Cluj-Napoca

Sup. utilă / mp. utili:
120 mp
Tip prop.:
Bloc de apartamente
Niv.:
3
An constr.:
2008 (Există)
  • • Locație aproximativă
  • • Vizionare prin apel video

Descriere spațiu comercial

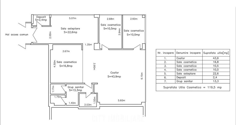
City Imobiliare va propune spre vanzare un Spatiu Comercial situat in mun. Cluj-Napoca, in cartierul Europa, cu o suprafata utila de 120 MP (vezi schita din fotografii), avand o inaltime a tavanelor de 2,90 metri. Proprietatea este amplasata la parterul unui bloc de 5 etaje, construit in anul 2008, izolat termic, clasa energetica "B". Spatiul beneficiaza de acces facil la drum si dispune de toate utilitatile necesare: apa, gaz, curent electric, canalizare centralizata. In pret sunt incluse 4 locuri de parcare exterioare! Acest spatiu este potrivit pentru diverse destinatii precum salon de infrumusetare, sala de sport, restaurant, showroom, tipografie, birou, etc. Modalități de plata: Achiziție cu plata cash | Credit Bancar Pentru mai multe informatii, nu ezitati sa ne contactati. ID 6732 Comision 2%
Citește mai mult Citește mai puțin
Căldură

Detalii spațiu comercial

ID anunț: XBJ71402H Copiat! 274269893 Copiat!
Actualizat în: 05 Martie 2026
Înălțime spațiu (m): 290
Regim înălțime: P+3E
Stadiu construcție: Există
Vitrină: Da

Utilități

Utilități
Apă Curent Gaze Canalizare
Comision
2%

Certificat energetic:

Clasa energetică: B

Puncte de interes

Mijloace transport
bus-station
Electrogroup
Stații autobuz aprox. 87 m
bus-station
Statia Electrogroup, Linia 21, 40
Stații autobuz aprox. 203 m
bus-station
Compexit
Stații autobuz aprox. 301 m
bus-station
Constantin Noica
Stații autobuz aprox. 313 m
Școală
school
Liceul de Informatica Tiberiu Popoviciu
Școli aprox. 583 m
school
Liceul de Informatica "Tiberiu Popoviciu"
Școli aprox. 603 m
university
Facultatea Arte Plastice, Sectia Foto-Video
Universități aprox. 772 m
kindergarten
Helen
Gradinițe aprox. 895 m
Recreere
cafe
Apartament 1
Cafenea aprox. 77 m
supermarket
Baumax
Supermarket aprox. 290 m
park
Parc
Parcuri aprox. 692 m
sports-ground
Teren sportiv
Terenuri sport aprox. 839 m

Proprietăți recomandate

Detalii de contact

CITY IMOBILIARE

Mihai Domentii

CITY IMOBILIARE
PRO

Abonează-te la newsletter să fii primul care primește cele mai noi recomandări de proprietăți și sfaturi de la experți.

CONTACT

Creează alertă

Salvează căutarea ca să primești pe email ultimele anunțuri publicate

Spații comerciale cu 4+ camere de vânzare în zona Europa, Cluj-Napoca