Spatiu comercial 180mp ideal alimentatie publica | Bloc Nou | Europa

540.000 € + TVA

Europa, Cluj-Napoca

Sup. utilă / mp. utili:
180 mp
Tip prop.:
Bloc de apartamente
Niv.:
3
  • • Locație aproximativă

Descriere spațiu comercial

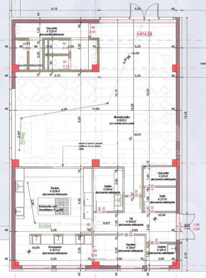
Va oferim spre vanzare spatiu comercial intr-un bloc in curs de finalizare situat in cartierul Europa. Imobilul este dispus pe urmatorul regim de inaltime D+P+3E. Suprafata utila este de 180mp si este compartimentat intr-un open space pentru servire si circuite functionale, si o terasa de cca. 100mp. Este pretabil pentru un spectru mai larg de activitati comerciale: alimentatie publica, showroom, magazine, sali de sport, birouri, servicii etc. Pentru achizitia catre persoane fizice la pretul afisat se adauga TVA 21%, iar pentru persoane juridice este aplicabil regimul taxarii inverse. Avansul minim acceptat este de 50%. Spatiu se preda la stadiu de semifinisat. Termenul de predare este 1 August 2026. Pentru mai multe detalii sau programare unei vizionari, nu ezitati sa ne contactati chiar acum! Garantam castigul reciproc! Nr grupuri sanitare: 2 Suprafata construita: 220 mp Nr incaperi: 4 Utilitati - Utilitati generale (Curent,Apa,Canalizare,Gaz) Finisaje - Izolatii termice (Bloc izolat termic); Ferestre cu geam termopan (PVC) Dotari - Contorizare (Apometre,Contor gaz) pret vanzare: 540000 moneda vanzare: EUR Disponibilitate proprietate: imediat
Citește mai mult Citește mai puțin
4 Parcări

Detalii spațiu comercial

ID anunț: XAHI1404S Copiat! 274997883 Copiat!
Actualizat în: 17 Februarie 2026
Suprafață utilă: 180 mp
Regim înălțime: P+3E
Structură rezistență: Cărămidă
Vitrină: Da

Utilități

Contorizare
Apometre Contor gaz
Mobilat
Nemobilat
Utilități
Curent Apă Canalizare Gaze
Izolații termice
Bloc izolat termic
Ferestre cu geam termopan
PVC
Comision
standard

Puncte de interes

Mijloace transport
bus-station
L.Matis
Stații autobuz aprox. 385 m
bus-station
N. Steinhardt
Stații autobuz aprox. 417 m
bus-station
L. Matis
Stații autobuz aprox. 420 m
bus-station
N. Steinhardt
Stații autobuz aprox. 458 m
Școală
kindergarten
Gradinita Liceului Waldorf
Gradinițe aprox. 946 m
school
Liceul Waldorf
Școli aprox. 955 m
kindergarten
Helen
Gradinițe aprox. 1216 m
university
UT Facultatea de Constructii si Facultatea de Arhitectura si Urbanism
Universități aprox. 1599 m
Recreere
sports-ground
Teren sportiv
Terenuri sport aprox. 896 m
supermarket
Baumax
Supermarket aprox. 925 m
park
Parc
Parcuri aprox. 1123 m
bar
G94
Bar aprox. 1169 m

Proprietăți similare

Birou, 167 mp în Central
550.000 €
Cluj-Napoca, Central
167 mp utili
Clădire de birouri
1E
Spațiu comercial, 80 mp în Semicentral
550.000 €
Cluj-Napoca, Semicentral
80 mp utili
Casă/Vilă
Spațiu comercial, 235 mp în Dâmbul Rotund
515.000 €
Cluj-Napoca, Dâmbul Rotund
235 mp utili
Bloc de apartamente
3E

Detalii de contact

Win Imobiliare

Win Imobiliare Office

4.65(9 review-uri)

Win Imobiliare
PRO

Abonează-te la newsletter să fii primul care primește cele mai noi recomandări de proprietăți și sfaturi de la experți.

CONTACT

Creează alertă

Salvează căutarea ca să primești pe email ultimele anunțuri publicate

Spații comerciale de vânzare în zona Europa, Cluj-Napoca