Spatiu comercial Calea Manastur 405 mp Oferta Speciala Comision ZERO

648.000 €

Mănăștur, Cluj-Napoca

Sup. utilă / mp. utili:
406 mp
Tip prop.:
Spațiu stradal
Niv.:
2
An constr.:
1988 (Există)
  • • Comision 0%
  • • Locație exactă
  • • Vizionare prin apel video

Descriere spațiu comercial

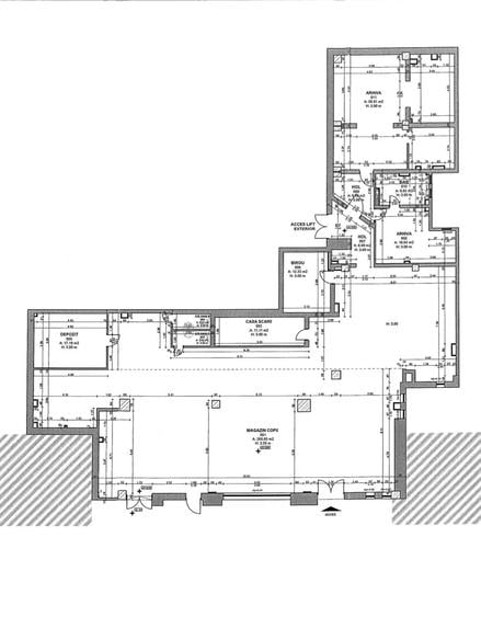
Va prezentam o oportunitate de achizitie a unei locatii comerciale, care se preteaza la servicii medicale, alte servicii sau magazin de prezentare. Acces facil direct la Calea Manastur sau din strada Primaverii. Pretul este negociabil si proprietarul este dispus la diferite variante de plata si/sau parteneriat. Spatiul are in total 406 mp si este compartimentat in doua zone, cu CF-uri distincte: a) 223 mp spatiu utilitate comerciala cu anexe grupuri sanitate, casa scari acces parcare in spatele cladirii (parcarile sunt domeniu public si se preteaza la inchiriere de la Primaria Cluj Napoca) b) 183 mp cu destinatie magaziim lift, birou, spalatorie, cu utilizare diversa. Inaltimea utila este de peste 3,50 m si se preteaza inclusiv la autorizare activati medicale, dealtfel in imediata vecinatate se afla un laborator de analize medicale si un centru de recuperare medicala. Spatiul este dotat cu ferestre si usi acces termopan, cu toate utilitatile active, avand centrala termica proprie. La etaj, spatiul este similar si este in proprietatea unui alt agent economis si este disponibil la inchiriere. Va asteptam la vizionare sau cu solicitare detalii suplimentare (7 zile din 7).
Citește mai mult Citește mai puțin
Căldură Nemodernizat

Detalii spațiu comercial

ID anunț: XFVA04003 Copiat! 275193124 Copiat!
Actualizat în: 04 Martie 2026
Nume proprietate: Spatiu comercial Calea Manastur 107
Înălțime spațiu (m): 3.5
Regim înălțime: P+2E
Stadiu construcție: Există
Vitrină: Da
Recomandare utilizare: Pentru utilizare proprie
Suprafață teren: 500 mp

Utilități

Utilități
Gaze Curent Canalizare Apă
Comision
0%

Certificat energetic:

Clasa energetică: B

Vecinătăți:

Kaufland, Vivo Mall, clinici universitare, zona studenteasca, Parcuri, zone sport si agrement

Puncte de interes

Mijloace transport
tram-station
Grigore Alexandrescu
Stații tramvai aprox. 98 m
tram-station
Statia Gr Alexandrescu1TRV, 102
Stații tramvai aprox. 122 m
bus-station
Statia Gr. Alexandrescu -intors Linia 1, 102, 25,7
Stații autobuz aprox. 279 m
bus-station
Ion Mester
Stații autobuz aprox. 284 m
Școală
kindergarten
Grăd.Albinuța
Gradinițe aprox. 156 m
school
Scoala Generala Eugen Pora
Școli aprox. 235 m
kindergarten
Grăd.Rază de soare str. 2
Gradinițe aprox. 516 m
university
Facultatea de Educatie Fizica si Sport
Universități aprox. 727 m
Recreere
restaurant
Pizza X
Restaurant aprox. 14 m
park
Parc
Parcuri aprox. 98 m
sports-ground
Teren sportiv
Terenuri sport aprox. 269 m
supermarket
Profi
Supermarket aprox. 332 m

Proprietăți similare

Birou, 304 mp în Mănăștur
635.000 €
Cluj-Napoca, Mănăștur
304 mp utili
Clădire de birouri
5E
Spațiu comercial, 289 mp în Între Lacuri
625.000 €
Cluj-Napoca, Între Lacuri
289 mp utili
Bloc de apartamente
1E
Spațiu comercial, 450 mp în Central
600.000 €
Cluj-Napoca, Central
450 mp utili
Bloc de apartamente
7E

Detalii de contact

odaloo

Gabriel Dan responsabil relatii cu clientii

odaloo
PRO

Abonează-te la newsletter să fii primul care primește cele mai noi recomandări de proprietăți și sfaturi de la experți.

CONTACT

Creează alertă

Salvează căutarea ca să primești pe email ultimele anunțuri publicate

Spații comerciale de vânzare în zona Mănăștur, Cluj-Napoca