2

Spatiu comercial cu vitrina | Marasti | Zona strazii Dambovitei!

300.000 € + TVA

Mărăști, Cluj-Napoca

Sup. utilă / mp. utili:
67 mp
Tip prop.:
Bloc de apartamente
Niv.:
4
An constr.:
2022 (Proiect)
  • • Locație aproximativă

Descriere spațiu comercial

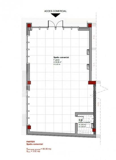
Va oferim spre vanzare spatiu comercial situat in cartierul Marasti, zona strazii Dambovitei intr-un bloc nou. Amplasarea acestuia este pe colt, avand deschiderea vitrinelor la 2 strazi. Spatiul este pretabil pentru diverse activitati comerciale, de servicii, retail, clinici medicale etc. Este pretabil pentru desfasurarea propriei activitati sau pentru investitie, existand posibilitatea generarii unui venit constant cu randament bun. Spatiul este pe Persoana Juridica, iar pentru firme platitoare de TVA este aplicabil regimul taxarii inverse. Pentru detalii complete sau programarea unei vizionari contactati-ne chiar acum! Garantam castigul reciproc!
Citește mai mult Citește mai puțin

Detalii spațiu comercial

ID anunț: XAHI14027 Copiat! 239280351 Copiat!
Actualizat în: 26 Martie 2026
Suprafață utilă: 67 mp
Regim înălțime: P+4E
Structură rezistență: Cărămidă
Stadiu construcție: Proiect

Utilități

Utilități
Curent Apă Canalizare

Puncte de interes

Mijloace transport
bus-station
Statia Siretului, Liniile 8,30,46B, 4, 6, 7
Stații autobuz aprox. 201 m
bus-station
Statia Aurel Vlaicu, Liniile 8, 30, 46B, 4, 6, 7
Stații autobuz aprox. 240 m
tram-station
Statia Bai Someseni, Linia 8
Stații tramvai aprox. 1525 m
tram-station
Sinterom Sud
Stații tramvai aprox. 1599 m
Școală
kindergarten
Grăd.Degețica
Gradinițe aprox. 308 m
kindergarten
Grăd.Degețica corp B
Gradinițe aprox. 328 m
school
Scoala Speciala de Meserii
Școli aprox. 420 m
university
Universitatea Crestina Dimitrie Cantemir
Universități aprox. 762 m
Recreere
supermarket
Profi
Supermarket aprox. 110 m
park
Parcul Aurel Vlaicu
Parcuri aprox. 215 m
sports-ground
Teren sportiv
Terenuri sport aprox. 777 m
public-square
Piata Ira
Piețe publice aprox. 988 m

Proprietăți recomandate

Detalii de contact

Win Imobiliare

Win Imobiliare Office

4.65(9 review-uri)

Win Imobiliare
PRO

Abonează-te la newsletter să fii primul care primește cele mai noi recomandări de proprietăți și sfaturi de la experți.

CONTACT

Creează alertă

Salvează căutarea ca să primești pe email ultimele anunțuri publicate

Spații comerciale cu o cameră de vânzare în zona Mărăști, Cluj-Napoca