Spațiu comercial de 76 mp la fază de proiect - str. București 41

266.100 € + TVA

Mărăști, Cluj-Napoca

Sup. utilă / mp. utili:
76 mp
Tip prop.:
Bloc de apartamente
Niv.:
6
An constr.:
2027 (Proiect)
  • • Comision 0%
  • • Locație exactă

Descriere spațiu comercial

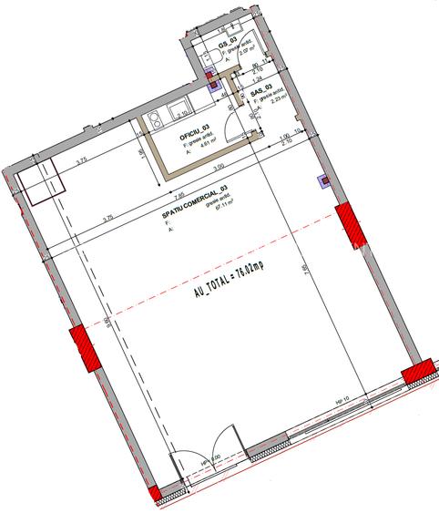
Oferim spre vânzare un spațiu comercial de 76 mp situat la parterul unui imobil mixt aflat în fază de proiect, pe strada București 41-45 – zonă centrală cu trafic auto, pietonal și cu o densitate mare de locuitori, potrivit pentru antreprenorii care doresc să deschidă o afacere cu vad. Termen de predare: Iunie 2027. Stadiu actual: Proiectul are autorizația de construire de la Primăria Cluj-Napoca, în luna ianuarie 2026 se va finaliza demolarea, iar din februarie 2026 va începe construirea. Planul de parter poate fi descărcat din acest anunț. Predare: spațiul va fi livrat semifinisat, cu toate utilitățile racordate și pregătit pentru autorizare în domeniul de activitate ales. Avantaje: - Locație centrală, cu trafic auto intens și densitate mare de locuitori. - Libertate de amenajare conform brandului/procedurilor interne. - Posibilitate de rezervare în fază incipientă, cu opțiuni de adaptare a spațiului. - posibilitate de achiziție a unui loc de parcare la exterior. Prețul afișat în anunț este valabil pentru avans de 90%. Acesta se modifică în funcție de modalitatea de plată aleasă de dvs. Proces de colaborare: - Programăm o întâlnire pentru a analiza planurile. - Stabilim cerințele tehnice și de autorizare în funcție de domeniul de activitate. - Adaptăm proiectul pentru a răspunde specificațiilor brandului dvs. - Finalizăm și predăm spațiul gata pentru utilizare. Detalii tehnice: - Fațade din tâmplărie de aluminiu cu sticlă. - Standarde de eficiență energetică nZEB: panouri fotovoltaice, pompe de căldură și izolație de 15 cm. Pentru detalii tehnice, planuri și condiții comerciale, vă rugăm să ne contactați.
Citește mai mult Citește mai puțin
1 Parcare Aer condiționat Căldură Modernizat

Detalii spațiu comercial

ID anunț: XA7E0400U Copiat! 268957045 Copiat!
Actualizat în: 05 Februarie 2026
Nume proprietate: Solaris Avangarde
Înălțime spațiu (m): 3
Regim înălțime: 1S+P+6E+T
Stadiu construcție: Proiect
Vitrină: Da
Recomandare utilizare: Pentru investiție

Utilități

Utilități
Apă Canalizare Curent Gaze
Comision
0%

Vecinătăți:

La 5 minute de mers pe jos
-Săli de fitness: Burn Fitness, World Class, CBC Fitness.
-Stații de autobuz pe strada București.
-Magazine: Mega, Profi, Carrefour.
-Licee: Colegiul de Muzică, Liceul „Avram Iancu”.
-Grădinițe: Căsuța Poveștilor I și II, Ary.

La 10 minute de mers pe jos:
-Parcul Feroviarilor.
-Zone de business: The Office, CBC, Record Park.

Puncte de interes

Mijloace transport
bus-station
Parcul Farmec
Stații autobuz aprox. 231 m
bus-station
Statia Farmec, Linia 36
Stații autobuz aprox. 261 m
tram-station
Libertatea Vest
Stații tramvai aprox. 877 m
train-station
Gara Noua / "Gara de scurt parcurs"
Stații tren aprox. 1145 m
Școală
kindergarten
Grăd.Bambi
Gradinițe aprox. 159 m
school
Școala Specială Centrul de Resurse și Documentare Privind Educația Incluzivă/Integrată
Școli aprox. 193 m
kindergarten
Gradinita
Gradinițe aprox. 503 m
university
UT Facultatea de Instalatii
Universități aprox. 696 m
Recreere
sports-ground
Teren sportiv
Terenuri sport aprox. 169 m
park
Parc
Parcuri aprox. 248 m
public-square
Piata 1848
Piețe publice aprox. 397 m
supermarket
Lidl
Supermarket aprox. 577 m

Proprietăți recomandate

Detalii de contact

Abonează-te la newsletter să fii primul care primește cele mai noi recomandări de proprietăți și sfaturi de la experți.

CONTACT

Creează alertă

Salvează căutarea ca să primești pe email ultimele anunțuri publicate

Spații comerciale de vânzare în zona Mărăști, Cluj-Napoca