Imobil functiuni mixte, 1820 mp, Calea Turzii!
Va propunem spre vanzare un imobil comercial cu functiuni mixte si de birouri situat in zona Calea Turzii desfasurat pe o suprafata utila de 1820 mp cu 20 de locuri de parcare.
Spatiul se preteaza pentru activitati de birou, activitati medicale, comerciale la nivelul parterului etc.
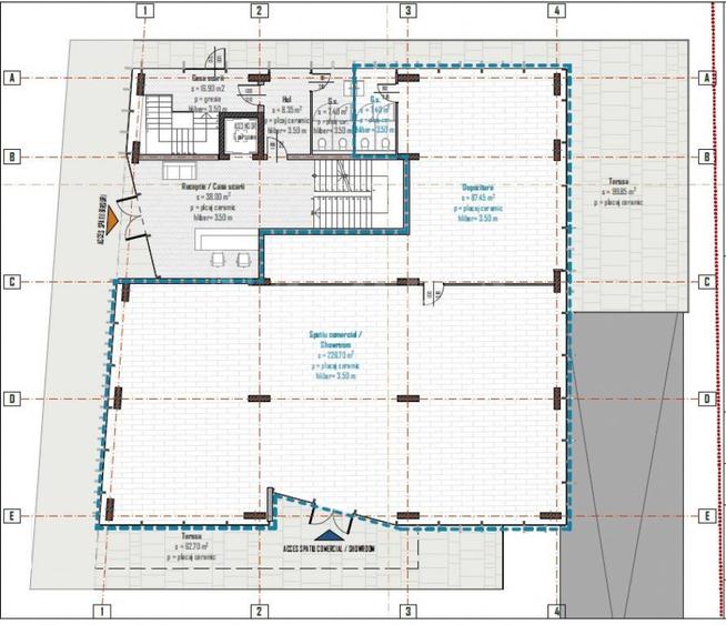
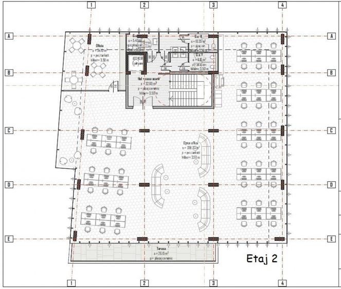
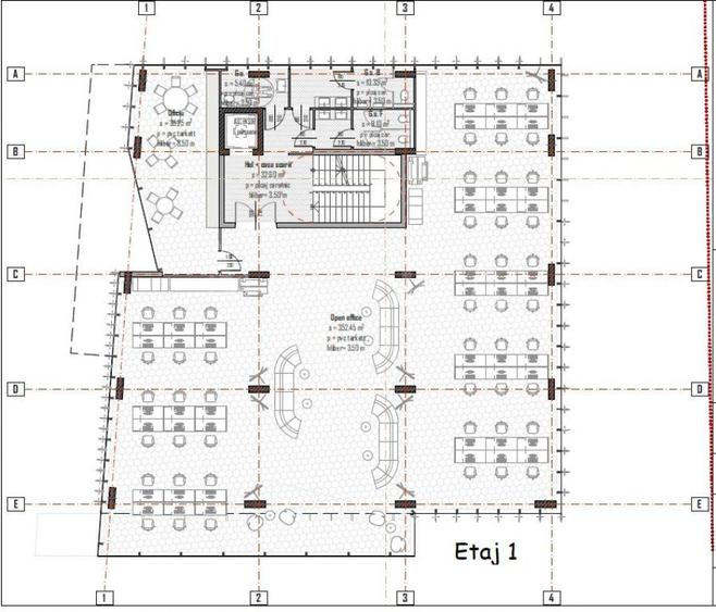
Imobilul propus are un regim de inaltime S+P+2E+Er fiind compartimentat astfel:
- Subsol: parcari subterane;
- Parter: spatiu comercial, spatiu de depozitare, receptie, 2 grupuri sanitare, terasa, casa scarii, hol, 2 accese;
- Etaj 1: open office, oficiu, 3 grupuri sanitare;
- Etaj 2: open office, oficiu, 3 grupuri sanitare, terasa;
- Etaj Retras: open office, oficiu, 2 grupuri sanitare, terasa;
Cladirea se preda finisata complet la exterior cu curtea amenajata. Termen de predare iulie 2022.
Pentru mai multe detalii sau pentru programarea unei vizionari, va stam cu drag la dispozitie,
Echipa Napoca Imobiliare!
ID oferta: 112225
Sediul central - Timișoara
Bulevardul Victor Babeș nr. 2, 300230, Timișoara, România
Tel: +40.374.40.44.98 / Fax: +40.256.401.179
Email: suport@imobiliare.ro
Luni - Vineri 08:00 - 20:00
Punct de lucru - București: Iride Business Park, Bld. Dimitrie
Pompeiu 9-9A, Clădirea B2B,
020335, Sector 2, București, România
CONTACT
Sediul central - Timișoara
Bulevardul Victor Babeș nr. 2, 300230, Timișoara, România
Tel: +40.374.40.44.98 / Fax: +40.256.401.179
Email: suport@imobiliare.ro
Luni - Vineri 08:00 - 20:00
Punct de lucru - București: Iride Business Park, Bld. Dimitrie
Pompeiu 9-9A, Clădirea B2B,
020335, Sector 2, București, România
Sună acum și cere detalii sau programează o vizionare.
Cere detalii prin email
*
*
*
*
Stații autobuz
Universități
Școli
Gradinițe
Supermarket
Parcări
Parcuri
Terenuri sport
Piețe publice
Farmacie
Spital
Restaurant
Bar
Pub
Cafenea
Bancă
Calea Turzii
aprox.
44 m
Statia Observatorului III, Linia 21, 40
aprox.
45 m
Meteor
aprox.
68 m
Observatorului Sud
aprox.
166 m
Observatorului Nord
aprox.
177 m
Statia Observator, Linia 50
aprox.
217 m
W.A. Mozart
aprox.
359 m
Statia Auto Transilvania, Linia 21, 40
aprox.
370 m
Constantin Noica
aprox.
491 m
Statia Calea Turzii, Linia 21, 40, 50
aprox.
513 m
Gheorghe Doja
aprox.
550 m
Statia Electrogroup, Linia 21, 40
aprox.
614 m
Silviu Dragomir
aprox.
711 m
Statia Calea Turzii, Linia 40, 50
aprox.
721 m
Statia Compl. Tempus, Linia 21
aprox.
806 m
Facultatea Arte Plastice, Sectia Foto-Video
aprox.
92 m
Cladirea Observator a Universitatii Tehnice din Cluj-Napoca
aprox.
208 m
Facultatea de Arhitectura si Urbanism
aprox.
392 m
CFDP si Facultatea de Arhitectura si Urbanism
aprox.
633 m
UT Facultatea de Constructii si Facultatea de Arhitectura si Urbanism
aprox.
664 m
UBB Biologie si Geologie
aprox.
920 m
UMF- Catedra de Informatica Medicala
aprox.
1140 m
UMF- Catedra de biochimie
aprox.
1151 m
UMF- catedra de biologie celulara
aprox.
1170 m
UMf- catedra de genetica
aprox.
1172 m
Universitatea de Medicina si Farmacie
aprox.
1174 m
UMF- catedra de biofizica
aprox.
1191 m
Universitatea de Medicină și Farmacie "Iuliu Hațieganu" -Sediul: Pasteur 6-
aprox.
1197 m
UMF- catedra de microbiologie
aprox.
1203 m
Universitatea de Medicină și Farmacie "Iuliu Hațieganu" -Facultatea de Farmacie-
aprox.
1212 m
Liceul de Informatica "Tiberiu Popoviciu"
aprox.
208 m
Liceul de Informatica Tiberiu Popoviciu
aprox.
222 m
Cladirea C.I.A
aprox.
230 m
Facultatea de Arhitectura si Urbanism
aprox.
390 m
Liceul de Informatică Tiberiu Popoviciu
aprox.
610 m
Liceul de Coregrafie și Artă Dramatică Octavian St roia
aprox.
707 m
European College Foundation (en)
aprox.
881 m
Gradinița Bethania
aprox.
1124 m
Scoala Generala nr. 10 / Școala Radu Stanca
aprox.
1268 m
Liceul de informatica Tiberiu Popovici
aprox.
1268 m
Centrul Școlar pentru Educație Incluzivă ( fosta Școala Specială nr. 1)
aprox.
1291 m
Colegiul National George Cosbuc
aprox.
1314 m
Liceul de Muzica Sigismund Toduta
aprox.
1323 m
Liceul de Coregrafie si Arta Dramatica Octavian Stroia
aprox.
1330 m
Liceul Teoretic "Gheorghe Sincai"
aprox.
1344 m
Grăd.Universul copiilor str.1
aprox.
1033 m
Grăd. Poenița
aprox.
1058 m
Helen
aprox.
1086 m
Grădinița Albă CA Zăpada NR. 9
aprox.
1172 m
Grăd.Zâna Zorilor
aprox.
1198 m
Gradinita "Zana Zorilor" (nr. 58)
aprox.
1270 m
Gradinita Tanadarica
aprox.
1323 m
Gradinita UBB
aprox.
1346 m
Kinderland
aprox.
1367 m
Grăd.Universității Babeș Bolyai
aprox.
1388 m
Grăd.Universității Babeș< Bolyai corp B
aprox.
1395 m
Grădinita "Poenita"
aprox.
1433 m
Paradisul Prichindeilor
aprox.
1434 m
Gradinita Poenita
aprox.
1441 m
Grăd.Albă ca Zăpada str.1 corp C
aprox.
1445 m
Sigma Shopping Center
aprox.
139 m
Lidl
aprox.
140 m
Carrefour Express
aprox.
870 m
Profi
aprox.
948 m
Lidl
aprox.
949 m
Baumax
aprox.
1085 m
Profi
aprox.
1108 m
Billa
aprox.
1350 m
Oncos
aprox.
1441 m
Carrefour
aprox.
1477 m
Carrefour Express
aprox.
1498 m
Magazin Mixt
aprox.
1511 m
Magazin Alimentar
aprox.
1555 m
Complex Comercial Hermes
aprox.
1622 m
Minimarket
aprox.
1672 m
Parcare
aprox.
155 m
Parcare privata
aprox.
184 m
parcare
aprox.
201 m
Parcare
aprox.
254 m
Parcare pentru clienti
aprox.
328 m
Parcare pentru clienti
aprox.
506 m
Parcare
aprox.
591 m
parcare
aprox.
618 m
Parcare
aprox.
653 m
Parcare
aprox.
704 m
Parcare privata
aprox.
717 m
Parcare privata
aprox.
720 m
Parcare
aprox.
737 m
Parcare
aprox.
786 m
Parcare
aprox.
788 m
Parc
aprox.
24 m
Cimitirul evreiesc
aprox.
272 m
Parc
aprox.
452 m
Parc
aprox.
459 m
Parc
aprox.
722 m
Parc
aprox.
722 m
Parc
aprox.
733 m
Serele
aprox.
742 m
Parc
aprox.
805 m
Parc
aprox.
822 m
Iorga colt cu amos f. (en)
aprox.
837 m
Parcul Iorga
aprox.
846 m
Parcul Iorga
aprox.
846 m
Gradina Botanica
aprox.
901 m
Gradina japoneza
aprox.
916 m
Teren sportiv
aprox.
543 m
Teren sportiv
aprox.
661 m
Palatul Copiilor - Tennis court
aprox.
1189 m
Teren sportiv
aprox.
1246 m
Teren sportiv
aprox.
1258 m
Teren sportiv
aprox.
1355 m
Teren sportiv
aprox.
1356 m
Teren sportiv
aprox.
1478 m
Teren sportiv
aprox.
1489 m
Teren sportiv
aprox.
1655 m
Teren sportiv
aprox.
1719 m
Teren sportiv
aprox.
1779 m
Teren sportiv
aprox.
1943 m
Teren sportiv
aprox.
1954 m
Piața "Lucian Blaga" (fosta Păcii)
aprox.
1509 m
Farmacia Observator
aprox.
134 m
Ortoprofil
aprox.
1013 m
Farmacia Infofarm
aprox.
1076 m
Farmacia Kamill
aprox.
1130 m
Bendis Pharma
aprox.
1146 m
Donna
aprox.
1167 m
Gedeon Richter
aprox.
1251 m
Elmafarm
aprox.
1266 m
Catena
aprox.
1286 m
Farmacie
aprox.
1298 m
Farmacia Balanis
aprox.
1321 m
Farmacia Veroli
aprox.
1350 m
Eco Farmacia
aprox.
1380 m
Farmacia Zorilor
aprox.
1410 m
Casa Bio
aprox.
1430 m
Novogyn - Spital Privat de Obstetrica-Ginecologie
aprox.
182 m
Centrul Medical de Balneofizioterapie si Recuperare Edelweiss
aprox.
420 m
Medicover Cluj
aprox.
566 m
Centrul Medical Transilvania
aprox.
935 m
Spitalul Clinic Județean de Urgență: Clinica de Endocrinologie, Clinica de Medicina Muncii
aprox.
1015 m
Spitalul de Recuperare
aprox.
1032 m
Spitalul Clinic de Boli Infecțioase
aprox.
1094 m
Spitalul Clinic de Boli Infectioase
aprox.
1094 m
Institutul Oncologic "Prof. Dr. Ion Chiricuță"
aprox.
1096 m
Clinica de Endocrinologie
aprox.
1096 m
Institutul Oncologic Prof. Dr. Ion Chiricuta
aprox.
1104 m
Clinica Bendis
aprox.
1153 m
Clinica de Neurologie
aprox.
1161 m
Ronda Medical
aprox.
1189 m
Clinica de Neurologie - Psihiatrie - Neurochirurgie
aprox.
1211 m
Subway
aprox.
133 m
Salad Box
aprox.
136 m
SEOUL - Korean Healty Food
aprox.
138 m
Marty Sports&Grill
aprox.
162 m
Athena
aprox.
164 m
Athena
aprox.
176 m
Good Food
aprox.
189 m
Cantina UTCN Observator
aprox.
192 m
Cantina Observator
aprox.
217 m
Le Buffet
aprox.
247 m
Crama Haiducilor
aprox.
302 m
Restaurant 86
aprox.
439 m
Restaurant Rod
aprox.
501 m
Greenbox Pizza
aprox.
773 m
Grand Hotel Italia
aprox.
804 m
Caminul Zero
aprox.
225 m
The Gentlemen's Club
aprox.
771 m
G94
aprox.
1047 m
Toni's Pub
aprox.
1125 m
Joben Bistro
aprox.
1298 m
Broadway
aprox.
1360 m
Griff Jazz & Blues
aprox.
1371 m
Ema
aprox.
1409 m
Bulgakov Cathouse
aprox.
1439 m
Ancuta Comimpex
aprox.
1492 m
Tangaj
aprox.
1519 m
Ares
aprox.
1552 m
Tube - Social Chemistry
aprox.
1554 m
Moonshine
aprox.
1593 m
La Movida
aprox.
1615 m
Phi 18
aprox.
244 m
Hard Club
aprox.
261 m
Mates Pub
aprox.
844 m
Gamerz.Pub
aprox.
1282 m
The Jack
aprox.
1380 m
La Tevi
aprox.
1386 m
Makeba
aprox.
1449 m
Ancuta
aprox.
1470 m
Bistro
aprox.
1489 m
Spatiu
aprox.
1511 m
Submarine
aprox.
1546 m
Che Guevara
aprox.
1580 m
Ring Club
aprox.
1580 m
Old Friends Pub
aprox.
1582 m
Buricu' Targului
aprox.
1673 m
Apartament 1
aprox.
730 m
Tango Cafe
aprox.
1112 m
Bistro 25
aprox.
1175 m
La Perne
aprox.
1206 m
La Tina Bistro Hasdeu
aprox.
1277 m
Le Parisien
aprox.
1282 m
Il Caffe dell' angolo
aprox.
1300 m
Lady Cat
aprox.
1342 m
Il caffe
aprox.
1362 m
Chelsea Cigar Lounge
aprox.
1401 m
Invest Cafe
aprox.
1416 m
N8 Coffee & Social Affairs
aprox.
1428 m
Bulgakov
aprox.
1446 m
Casa TIFF
aprox.
1449 m
Irish Embassy
aprox.
1460 m
OTP Bank
aprox.
122 m
Banca Transilvania
aprox.
138 m
BRD - Groupe Societe Generale
aprox.
159 m
BRD
aprox.
165 m
BRD - Groupe Societe Generale
aprox.
759 m
BRD
aprox.
765 m
EximBank
aprox.
812 m
BRD
aprox.
864 m
ING
aprox.
982 m
BRD
aprox.
1005 m
Banca Comerciala Feroviara
aprox.
1252 m
Banca Italo Romena
aprox.
1260 m
BRD
aprox.
1295 m
Raiffaisen Bank
aprox.
1297 m
Banca Transilvania
aprox.
1307 m
Datorită apropierii sale de Centru, Zorilor nu duce lipsă de mijloace de transport în comun, acestea făcând legătura, desigur, și cu alte zone ale orașului. Deși pasionații de ciclism nu beneficiază de o rețea unitară de piste dedicate, pe Strada Observatorului poate fi găsită o pistă de mici dimensiuni (de 450 de metri), ce merge până în dreptul Spitalului Clinic de Recuperare. Cu un plus de atenție (mai ales în zonele aglomerate), și celelalte artere de circulație pot fi folosite pentru transportul cu bicicleta.
În cartier vei putea găsi o serie de unități de învățământ demne de luat în calcul, atât din ciclul preșcolar (cum ar fi Grădinița Panda), cât și din cel primar, gimnazial și liceal "“ de menționat, în cel din urmă caz, fiind Liceul de Informatică "Tiberiu Popoviciu". Un avantaj deosebit pentru cei care locuiesc aici constă în aceea că, spre deosebire de alte cartiere, în Zorilor se găsesc câteva dintre cele mai prestigioase instituții de învățământ superior din oraș: Universitatea de Medicină și Farmacie "iuliu Hațieganu", Facultatea de Inginerie Civilă (din cadrul Universității Tehnice din Cluj-Napoca), dar și Facultatea de Arhitectură și Urbanism.
În ceea ce privește oportunitățile de shopping, este de precizat faptul că locuitorii din Zorilor nu au acces, strict între granițele cartierului, la niciun mall și la niciun hipermarket. Pentru cumpărăturile de zi cu zi, aceștia se pot orienta, însă, către multiplele supermarketuri din cartier. Cei care doresc, totuși, să beneficieze de o paletă mai largă de opțiuni se pot îndrepta către Kauflandul din Mănăștur. Pentru cumpărăturile de îmbrăcăminte, încălțăminte (și nu numai), clujenii din Zorilor pot ajunge cu ușurință în zona centrală, unde vor găsi atât magazine stradale, cât și centre comerciale moderne.
Dată fiind densitatea mai ridicată a populației din zonele de blocuri, găsirea unui loc permanent de parcare în Zorilor poate ridica, uneori, dificultăți. Pentru închirierea unui astfel de spațiu de la autoritățile locale, posesorii de autovehicule se pot adresa, însă, funcționarilor de la Primăria de cartier.
Deși părinții cu copii au la dispoziție în Zorilor câteva locuri de joacă amenajate de către Primărie, pentru cei mari nu există, practic, niciun parc de propriu-zis. Cu toate acestea, locuitorii cartierului beneficiază de un acces facil către zonele de vegetație din împrejurimi: astfel, dincolo de Strada Cireșilor se găsește chiar Grădina Botanică din Cluj-Napoca, mai în vest Grădina "Miko", iar aproape de granița cu Mănășturul se află Parcul "Iuliu Prodan". Cei care doresc să aibă acces la serviciile oferite de un complex sportiv pot ajunge cu ușurință în Mănăștur, unde se află cea mai mare bază sportivă din Cluj-Napoca, anume Baza Sportivă "Unirea".
În ciuda suprafeței sale relativ reduse, Zorilor este un cartier bine reprezentat la capitolul servicii medicale de stat. Astfel, în zona de nord a cartierului se găsesc Clinica de Pediatrie IV, Spitalul Clinic de Boli Infecțioase, Clinica de Neurochiriugie Cluj și Clinica de Endocrinologie, în vreme ce, mai în centru, aproape de Strada Observatorului, se află Spitalul Clinic de Recuperare. Paleta de servicii medicale din Zorilor este completată, desigur, de cabinete medicale particulare, dar și de centre medicale de mai mari dimensiuni, precum Hiperdia sau Blue Life Medical Center. De menționat este și Centrul de Cercetare și Diagnostic al Bolilor Neurologice "RoNeuro", amplasat în partea de sud a cartierului.
Dacă îți face plăcere să iei masa în oraș, te vei bucura să afli că zona Zorilor oferă câteva oportunități interesante locuitorilor săi. Astfel, de menționat ar fi restaurantul "Rod" (de pe Strada Calea Turzii, nr. 160), restaurantul "London Brothers" (de pe Strada Observatorului, nr. 82-86), "Bistro Napoca" (tot pe Strada Observatorului, nr. 82-86), dar și "Gentlemen"™s "“ Bistro & Sports Bar" (de pe Strada Observatorului, nr. 105) Alte opțiuni de luat în calcul pentru o ieșire cu prietenii sunt disponibile, desigur, în zona Centrală a orașului de pe Someș.
Dacă ai nevoie să efectuezi o operațiune bancară, te vei bucura să afli că zona Zorilor este foarte bine deservită la acest capitol. Astfel, aici pot fi găsite o sucursală ING Bank, una Exim Bank, una Alpha Bank, alături de câte un sediu CEC Bank, BCR și Banca Transilvania. Consultă harta și află unde sunt localizate și alte bănci sau ATM-uri în zona Zorilor:
Înainte să pleci...
Ești sigur că ai văzut și aceste proprietăți?
6.292.000 €
Cluj-Napoca, Gruia
4.904 mp utili
Clădire de birouri
2021
6.292.000 €
Cluj-Napoca, Dâmbul Rotund
4.904,13 mp utili
6.100.000 €
Județul Cluj, Baciu
8.000 mp utili
Bloc de apartamente
Creează alertă
Salvează căutarea ca să primești pe email ultimele anunțuri publicate
Spații comerciale cu 4+ camere de vânzare în zona Zorilor, Cluj-Napoca
Cere detalii prin email
*
*
*
*
Detaliile tale de contact vor fi partajate cu Napoca Imobiliare