Spațiu comercial de vânzare – poziție excelentă, vad stradal intens

132.000 €

Inel II, Constanța

Sup. utilă / mp. utili:
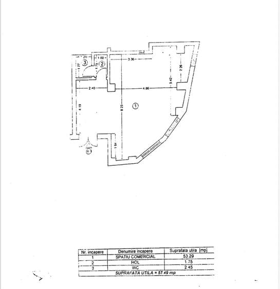
57,49 mp
Tip prop.:
Casă/Vilă
An constr.:
2006 (Există)
  • • Locație exactă

Descriere spațiu comercial

Agenție imobiliară vă propune spre vânzare un spațiu comercial modern, situat într-o zonă cu vizibilitate foarte bună – în proximitatea Institutului de Marină, cu deschidere directă la bulevard. Proprietatea este amplasată la parterul unui imobil nou, beneficiind de acces facil și expunere excelentă, fiind ideală pentru desfășurarea diverselor activități comerciale sau de servicii. 📐 Suprafață utilă: 57,49 mp 🏢 Compartimentare eficientă, ce permite amenajare flexibilă 🚪 Acces direct din stradă 👀 Vitrină generoasă – vizibilitate maximă pentru brandul dumneavoastră 📍 Zonă cu trafic pietonal și auto intens 💼 Recomandat pentru: showroom, birou, salon, cabinet sau investiție în vederea închirierii. 💰 Preț: 132.000 € 📊 Comision agenție: 2% Pentru mai multe detalii sau programarea unei vizionări, nu ezitați să ne contactați. Echipa noastră vă stă la dispoziție pentru a vă oferi suport complet în procesul de achiziție.
Citește mai mult Citește mai puțin
Aer condiționat Căldură

Detalii spațiu comercial

ID anunț: X86J0402V Copiat! 275392404 Copiat!
Actualizat în: 02 Aprilie 2026
Tip tranzacție: De vânzare prin agent
Regim înălțime: P
Stadiu construcție: Există
Modalitate de plată: Cash sau Credit

Utilități

Utilități
Gaze Apă Curent
Comision
2%

Certificat energetic:

Clasa energetică: A

Puncte de interes

Mijloace transport
bus-station
Institutul de Marina [102
Stații autobuz aprox. 196 m
bus-station
Scoala 23 [102
Stații autobuz aprox. 210 m
train-station
Halta Traian Mărfuri
Stații tren aprox. 962 m
train-station
Stația CFR Constanța Mărfuri
Stații tren aprox. 1042 m
Școală
university
Academia Navală Mircea cel Bătrân
Universități aprox. 75 m
kindergarten
Gradinita Calutul de Mare
Gradinițe aprox. 146 m
school
Școala cu Clasele I-VIII "Constantin Brâncoveanu"
Școli aprox. 190 m
university
Scoala Maistri Militari
Universități aprox. 214 m
Recreere
sports-ground
Teren sportiv
Terenuri sport aprox. 263 m
supermarket
SYM Supermarket
Supermarket aprox. 511 m
park
Parc
Parcuri aprox. 635 m
public-square
Victory Square (en)
Piețe publice aprox. 1969 m

Proprietăți similare

Hotel/Pensiune, 300 mp în Exterior Sud
145.000 €
Județul Constanța, Eforie Sud
300 mp utili
Spațiu comercial, de 168 mp, în Mihail Kogălniceanu
145.000 €
Județul Constanța, Mihail Kogălniceanu
168 mp utili
Spațiu stradal
2016
Spațiu comercial, de 90 mp, în Palas
139.900 €
Constanța, Palas
90 mp utili
Clădire de birouri
2005

Detalii de contact

Intermed Pro Invest

MARINESCU FLORIN AGENT IMOBILIAR

Intermed Pro Invest

Abonează-te la newsletter să fii primul care primește cele mai noi recomandări de proprietăți și sfaturi de la experți.

CONTACT

Creează alertă

Salvează căutarea ca să primești pe email ultimele anunțuri publicate

Spații comerciale de vânzare în zona Inel II, Constanța