1

Pod Butelii, cladire comerciala, S+P+1, 677 mp.

639.000 €

Inel II, Constanța

Sup. utilă / mp. utili:
672 mp
Tip prop.:
Centru comercial
Niv.:
1
  • • Locație exactă

Descriere spațiu comercial

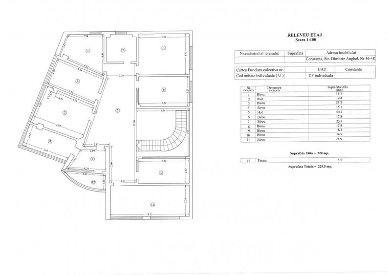
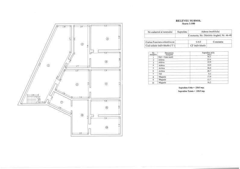
Agentia Zig-Zag va ofera spre vanzare/inchiriere cladire de birouri complet amenajata, situata intr-o zona accesibila, accesibila din toate punctele de interes ale orasului .Cladirea este ideala desfasurarii activitatii in domeniu medical /clinica, sediu de firma, birouri IT, call -center, firma de contabilitate, sau alta activitate profesionala. Suprafata totala utila de 677 mp. este strucurata pe 3 etaje , cuprinzand birouri individuale cu suprafete generoase, sala de sedinte, sala de mese, bucatarie complet echipata, camere tehnica (server), terase 5 mp., grupuri sanitare - subsol ce beneficiaza de lumina naturala din abundenta - 228 mp. - 6 birouri (16-26 mp.) , 2 grupuri sanitare, hol; - parter - 224 mp. - 7 birouri (7-40 mp.), 3 grupuri saniatre, hol/receptie generos de 50 mp; - etaj - 225 mp. - 9 birouri (10-30 mp.), 2 grupuri sanitare, hol/receptie. Dotari si facilitati : -centrala termica proprie -calorifere in fiecare birou -aer conditionat in fiecare incapere -3 locuri de parcare -instalatii electrice si sanitare noi -finisaje moderne si functionale -reamenajata complet acum 3 ani -se vinde/inchiriaza complet mobilata si utilata Proprietar persoana juridica. Nr grupuri sanitare: 7 Suprafata construita: 750 mp Nr incaperi: 22 Utilitati - Sistem incalzire (Centrala proprie,Calorifere); Climatizare (Aer conditionat); Utilitati generale (Curent,Apa,Canalizare,Gaz) Finisaje - Izolatii termice (Exterior); Podele (Gresie,Mocheta,Parchet); Iluminat (Spoturi,Lumina naturala); Ferestre cu geam termopan (PVC) Dotari - Contorizare (Apometre,Contor gaz); Dotari imobil (Curte,Interfon,Video interfon) pret vanzare: 639000 moneda vanzare: EUR Disponibilitate proprietate: imediat
Citește mai mult Citește mai puțin
5 Parcări

Detalii spațiu comercial

ID anunț: XECR140EO Copiat! 273042540 Copiat!
Actualizat în: 07 Ianuarie 2026
Suprafață utilă: 672 mp
Regim înălțime: P+1E
Structură rezistență: BCA

Utilități

Contorizare
Apometre Contor gaz
Mobilat
Parțial mobilat
Facilități imobil
Interfon Videointerfon Curte
Utilități
Curent Apă Canalizare Gaze
Sistem încălzire
Centrală proprie Calorifere
Climatizare
Aer condiționat
Podele
Parchet Gresie Mochetă
Izolații termice
Exterior
Ferestre cu geam termopan
PVC
Comision
2%

Vecinătăți:

Pod Butelii, Inel II, bd. I.C.Bratianu, str. Dezrobirii

Puncte de interes

Mijloace transport
bus-station
Dispensar [48]
Stații autobuz aprox. 72 m
bus-station
Statia Dispensar; Linia 48,51
Stații autobuz aprox. 205 m
train-station
Halta Traian Mărfuri
Stații tren aprox. 825 m
train-station
Stația CFR Constanța Mărfuri
Stații tren aprox. 903 m
Școală
kindergarten
Gradinita nr. 52 Constanta
Gradinițe aprox. 176 m
kindergarten
Grădinița cu Program Normal "Hensel și Gretel"
Gradinițe aprox. 316 m
school
Școala cu Clasele I-VIII Nr.8
Școli aprox. 412 m
university
Academia Navală Mircea cel Bătrân
Universități aprox. 1404 m
Recreere
park
Parc I. C. Bratianu
Parcuri aprox. 36 m
supermarket
Cora
Supermarket aprox. 233 m
sports-ground
Teren sportiv
Terenuri sport aprox. 1168 m
public-square
Victory Square (en)
Piețe publice aprox. 1806 m

Proprietăți recomandate

Detalii de contact

ZIG ZAG INTERMED

Oana Barbieru

4.80(5 review-uri)

ZIG ZAG INTERMED
PRO

Abonează-te la newsletter să fii primul care primește cele mai noi recomandări de proprietăți și sfaturi de la experți.

CONTACT

Creează alertă

Salvează căutarea ca să primești pe email ultimele anunțuri publicate

Spații comerciale de vânzare în zona Inel II, Constanța