1

Apartament, parter, b-dul Dunarea Micro 21

100.000 € + TVA

Micro 21, Galați

Sup. utilă / mp. utili:
90 mp
Tip prop.:
Bloc de apartamente
Niv.:
4
An constr.:
1986
  • • Locație aproximativă

Descriere spațiu comercial

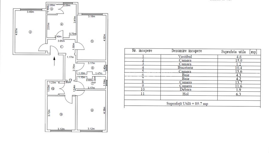
Agentia Imobiliară Domus vă oferă spre vânzare un apartament spații de 4 camere decomandate, cu o suprafață utilă de 90 mp, situată în zona Micro 21, în imediata apropiere a Școlii nr. 3 și a Bulevardului Dunărea. Apartamentul beneficiază de o orientare dublă, astfel încât să vezi pe ambele părți ale blocului, oferind flexibilitate pentru utilizarea spațiului de locuit sau pentru activități. Datorită poziționării excelente față de Bulevardul Dunărea, imobilul este ideal pentru amenajarea unui spațiu comercial sau de birouri. Zona în care se află apartamentul este foarte bine deservită de mijloacele de transport în comun și oferă acces rapid la supermarketuri, grădinițe, școli, bănci, farmacii și parcuri, făcându-l astfel potrivit atât pentru locuință, c. Printre dotările apartamentului se numără o centrală termică proprie, branșament separat la apă, scurgere separată și tâmplărie din PVC cu geam termopan. Apartamentul este liber și disponibil imediat pentru mutare sau amenajare.
Citește mai mult Citește mai puțin

Detalii spațiu comercial

ID anunț: X5TL04017 Copiat! 214872569 Copiat!
Actualizat în: 14 Octombrie 2024
Regim înălțime: P+4E+T

Utilități

Utilități
Apă Gaze

Puncte de interes

Mijloace transport
tram-station
Micro 19
Stații tramvai aprox. 66 m
tram-station
Micro 19
Stații tramvai aprox. 97 m
bus-station
Micro 19
Stații autobuz aprox. 198 m
bus-station
Facultatea de Medicina
Stații autobuz aprox. 263 m
Școală
school
Scoala gimnaziala nr. 29
Școli aprox. 280 m
kindergarten
Gradinita Motanul incaltat
Gradinițe aprox. 389 m
school
Scoala Generala nr. 3
Școli aprox. 442 m
university
Universitatea Danubius
Universități aprox. 1031 m
Recreere
cafe
Chris
Cafenea aprox. 80 m
supermarket
Econom Tapul Carpatin
Supermarket aprox. 119 m
park
Parc
Parcuri aprox. 232 m
sports-ground
ICMRSG
Terenuri sport aprox. 915 m

Proprietăți recomandate

Detalii de contact

Agentia Imobiliara D O M U S

BOGDAN Agent imobiliar

5.00(3 review-uri)

Agentia Imobiliara D O M U S

Abonează-te la newsletter să fii primul care primește cele mai noi recomandări de proprietăți și sfaturi de la experți.

CONTACT

Creează alertă

Salvează căutarea ca să primești pe email ultimele anunțuri publicate

Spații comerciale de vânzare în zona Micro 21, Galați