1

Nicolina - prima statie, spatiu comercial de vanzare, 72mp

250.000 €

Nicolina, Iași

Sup. utilă / mp. utili:
72 mp
Tip prop.:
Bloc de apartamente
An constr.:
1988 (Există)
  • • Locație exactă

Descriere spațiu comercial

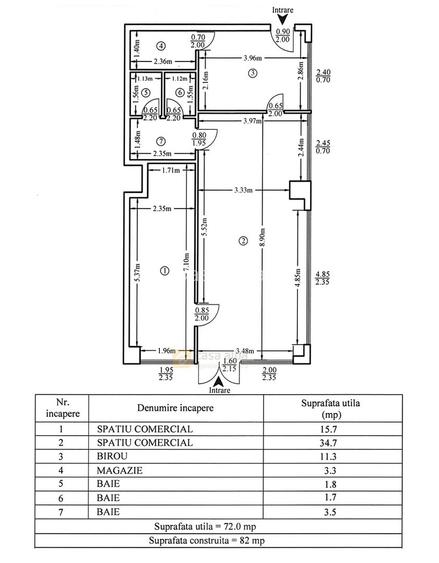
- din 2001 Spatiu comercial de vanzare, situat intr-o zona accesibila, ideal pentru diverse activitati comerciale. Dispune de vitrina stradala, suprafata generoasa, utilitati complete si potential excelent pentru investitie. Agentia imobiliara Casa Alba iti prezinta spre vanzare un spatiu comercial situat in zona Nicolina - prima statie dupa Podu Ros, cu o suprafata generoasa si compartimentare inteligenta, fiind ideal pentru mai multe tipuri de activitati. Spatiul are suprafata totala de 72mp, este excelent pozitionat la parter de bloc, fiind usor de reperat, gata compartimentat. Prezinta trei grupuri sanitare amenajate. Pretul solicitat este de 250.000 euro! Pentru informatii suplimentare, va rugam sa contactati consultantul imobiliar Ciprian Roman, la numarul de telefon
0740 **** Vezi tot numărul
sau accesati , ID PROPRIETATE 2658537.
Citește mai mult Citește mai puțin

Detalii spațiu comercial

ID anunț: X0BG14077 Copiat! 268559054 Copiat!
Actualizat în: 23 Decembrie 2025
Suprafață utilă: 72 mp
Regim înălțime: P
Stadiu construcție: Există
Vitrină: Da

Utilități

Destinație
Comercial
Utilități
Curent Apă Canalizare Gaze
Comision
standard

Disponibilitate proprietate:

Imediat

Puncte de interes

Mijloace transport
bus-station
Pod Nicolina
Stații autobuz aprox. 42 m
bus-station
Pod Nicolina
Stații autobuz aprox. 68 m
tram-station
statia "Bazar", linia 11
Stații tramvai aprox. 492 m
train-station
Gara Nicolina Iasi
Stații tren aprox. 750 m
Școală
kindergarten
Gradinita cu Program Normal Nr. 12
Gradinițe aprox. 218 m
kindergarten
Gradinita Kitty
Gradinițe aprox. 299 m
school
Scoala "Vasile Conta" (Nr. 36)
Școli aprox. 350 m
university
Facultatea de Constructii Iasi
Universități aprox. 1218 m
Recreere
park
Parc Nicolina 2
Parcuri aprox. 53 m
supermarket
Carrefour Market
Supermarket aprox. 261 m
sports-ground
Teren de sport
Terenuri sport aprox. 796 m
mall
Shopping Center on Shopping Street(Palas) (en)
Mall aprox. 1506 m

Proprietăți recomandate

Detalii de contact

Casa Alba

Ciprian Roman Senior consultant vanzari / inchirieri

5.00(4 review-uri)

Casa Alba
PRO

Abonează-te la newsletter să fii primul care primește cele mai noi recomandări de proprietăți și sfaturi de la experți.

CONTACT

Creează alertă

Salvează căutarea ca să primești pe email ultimele anunțuri publicate

Spații comerciale cu 3 camere de vânzare în zona Nicolina, Iași