Spațiu comercial stradal de vânzare – 49,3 mp, Podu Roș – B-dul Socola, Iași

120.000 €

Podu Roș, Iași

Sup. utilă / mp. utili:
50 mp
Tip prop.:
Bloc de apartamente
Niv.:
4
An constr.:
1961 (Finalizată)
  • • Locație aproximativă

Descriere spațiu comercial

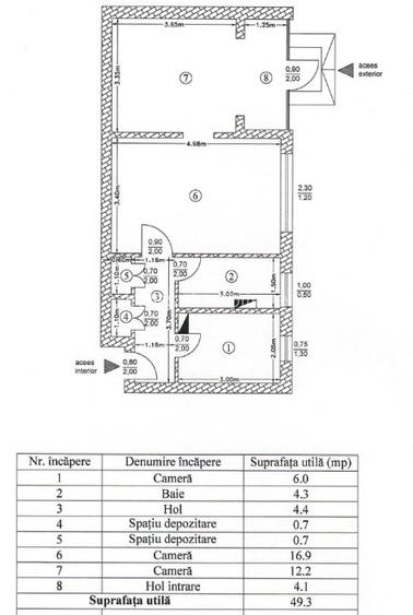
Vă propunem spre vânzare un spațiu comercial cu o suprafață utilă de 49,3 mp, situat la parterul unui bloc cu 4 etaje, în zona Podu Roș, pe Bulevardul Socola – reper Otiola. Compartimentare funcțională, conform schiței atașate: - 3 camere (16,9 mp, 12,2 mp și 6,0 mp) - 1 baie (4,3 mp) - 2 spații de depozitare (câte 0,7 mp) - 2 holuri (4,4 mp și 4,1 mp) Acces direct din exterior – ideal pentru activități comerciale, cu vizibilitate stradală Dotări principale: Centrală termică proprie pe gaz Aer condiționat Tâmplărie din aluminiu Locuri de parcare disponibile atât în fața cât și în spatele blocului Vedere către bulevardul Socola Ideal pentru: Cabinet medical / stomatologic Salon înfrumusețare Sediu firmă / birou Magazin specializat / showroom Alte activități comerciale sau de servicii Spațiul este liber și disponibil imediat, cu toate utilitățile funcționale. Poate fi folosit ca atare sau adaptat ușor în funcție de destinație. Pentru mai multe detalii sau pentru o vizionare, contactați-ne.
Citește mai mult Citește mai puțin
2 Parcări

Detalii spațiu comercial

ID anunț: XB881401K Copiat! 275410035 Copiat!
Actualizat în: 08 Aprilie 2026
Suprafață utilă: 50 mp
Regim înălțime: P+4E
Structură rezistență: Beton
Stadiu construcție: Finalizată

Utilități

Utilități
Curent Apă Canalizare

Puncte de interes

Mijloace transport
bus-station
statia "Podu Rosu", linia 19,29
Stații autobuz aprox. 73 m
bus-station
Statia "Podi Rosu", linia 29
Stații autobuz aprox. 87 m
tram-station
Statia "Podu Rosu", linia 1,2,5,13
Stații tramvai aprox. 88 m
train-station
Gara Internațională Nicolina
Stații tren aprox. 893 m
Școală
school
Scoala generala nr.11 Otilia Cazimir
Școli aprox. 130 m
kindergarten
Gradinita nr. 1
Gradinițe aprox. 158 m
university
Facultatea de Constructii Iasi
Universități aprox. 245 m
school
Scoala Titu Maiorescu
Școli aprox. 441 m
Recreere
park
Parc Splai Bahlui
Parcuri aprox. 112 m
sports-ground
Teren sportiv
Terenuri sport aprox. 150 m
supermarket
Minimarket Cidma
Supermarket aprox. 275 m
mall
Shopping Center on Shopping Street(Palas) (en)
Mall aprox. 606 m

Proprietăți similare

Spațiu comercial, 46 mp în Podu Roș
118.000 €
Iași, Podu Roș
46 mp utili
Bloc de apartamente
Spațiu comercial, 48 mp în Frumoasa
131.000 €
Iași, Frumoasa
48 mp utili
Bloc de apartamente
4E
Spațiu comercial, de 63 mp, în Păcurari
125.000 €
Iași, Păcurari
63 mp utili
4E
2018

Detalii de contact

Invest Imobiliare

Victor Negru Consilier Imobiliar

Invest Imobiliare
PRO

Abonează-te la newsletter să fii primul care primește cele mai noi recomandări de proprietăți și sfaturi de la experți.

CONTACT

Creează alertă

Salvează căutarea ca să primești pe email ultimele anunțuri publicate

Spații comerciale cu 3 camere de vânzare în zona Podu Roș, Iași