2

Spatiu Comercial - Conest - Tudor Vladimirescu

400.000 €

Tudor Vladimirescu, Iași

Sup. utilă / mp. utili:
185 mp
Tip prop.:
Clădire de birouri
Niv.:
12
An constr.:
2024 (Există)
  • • Locație aproximativă
  • • Vizionare prin apel video

Descriere spațiu comercial

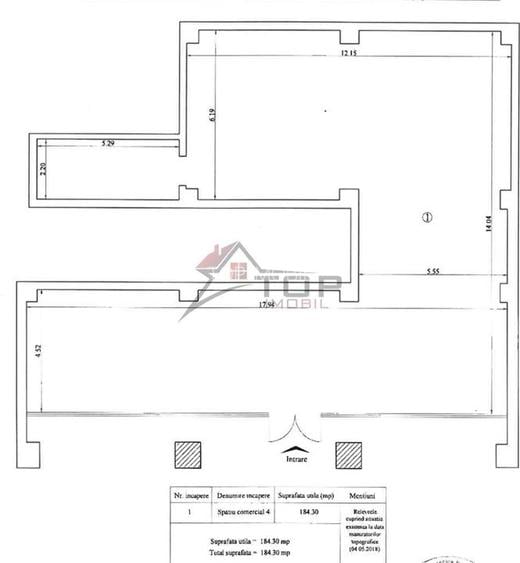
Agentia Top Imobil va propune spre vanzare un spatiu comercial situat in cadrul complexului Grand Conest Residence. Spatiul este Open Space si permite multiple posibilitati de compartimentare pentru afacerea dumneavoastra! Suprafata utila: - 185mp Vitrina: - 18m - Se pot achizitiona si 3 locuri de parcare! Facilitățile localizării Vis-a-vis de Ansamblul Conest Grand Residen este Iulius Mall și în apropiere se află campusul studențesc „Tudor Vladimirescu. De asemenea în vecinătate sunt supermarketurile Lidl, Kaufland, magazinul Yusk și Leroy Merlin precum și multe alte puncte comerciale și de interes. Pentru copii și studenți la o mică distanță sunt grădinițe, școli și este Universitatea „Gheorghe Asachi. Pret: 400.000 EURO Pentru alte detalii va stam la dispozitie la numarul de telefon: Stefan Turnea
Citește mai mult Citește mai puțin
3 Parcări

Detalii spațiu comercial

ID anunț: XCGV1400G Copiat! 269714172 Copiat!
Actualizat în: 29 Ianuarie 2026
Regim înălțime: P+12E+T
Stadiu construcție: Există
Vitrină: Da

Puncte de interes

Mijloace transport
tram-station
Baumax
Stații tramvai aprox. 160 m
tram-station
Statia "Baumax", linia 7
Stații tramvai aprox. 177 m
bus-station
Scoala Ion Ghica
Stații autobuz aprox. 258 m
train-station
Gara Iasi-Socola
Stații tren aprox. 1430 m
Școală
school
Sc Gen 24 Ion Ghica
Școli aprox. 257 m
school
Școala Gen.nr. 24 Ion Ghica
Școli aprox. 271 m
kindergarten
Gradinita cu program prelungit Nr. 26
Gradinițe aprox. 329 m
university
Rectoratul Universitatii Politehnice Iasi
Universități aprox. 396 m
Recreere
supermarket
BAUMAX-X Iasi
Supermarket aprox. 154 m
sports-ground
Teren sportiv
Terenuri sport aprox. 453 m
mall
Iulius Mall
Mall aprox. 540 m
park
Parc
Parcuri aprox. 581 m

Proprietăți recomandate

Detalii de contact

TOP IMOBIL

Stefan Turnea Administrator/ Consultant Imobiliar

TOP IMOBIL
PRO

Abonează-te la newsletter să fii primul care primește cele mai noi recomandări de proprietăți și sfaturi de la experți.

CONTACT

Creează alertă

Salvează căutarea ca să primești pe email ultimele anunțuri publicate

Spații comerciale cu 2 camere de vânzare în zona Tudor Vladimirescu, Iași