1

Cladire comerciala, 850 mp, teren 1500mp, Zona Leroy Merlin

1.550.000 €

Tudor Vladimirescu, Iași

Sup. utilă / mp. utili:
606 mp
Tip prop.:
Clădire de birouri
Niv.:
2
An constr.:
2003 (Există)
  • • Exclusivitate
  • • Locație exactă
  • • Vizionare prin apel video

Descriere spațiu comercial

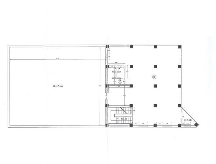
De vanzare, cladire cu destinatie comerciala si de birouri, situata in zona Tudor Vladimirescu - Leroy Merlin Silk District, avand suprafata de 850mp din care 606mp incaperi si 244mp terase si logii, teren 1500 mp din care liber de constructii 1089.32mp, constand predominant in platforme betonate. Cladirea este ideala pentru o multitudine de domenii de activitate: cum ar fi: clinica medicala, laborator de analize, magazin, showroom si birouri de consultanta, centru de fitness, centru de kinetoterapie recuperare, birouri IT, gradinita, scoala, afterschool, etc. Spatiul este compartimentat astfel: Parter - magazin de prezentare si depozit in partea din spate, tot spatiul avand suprafata de 342 mp; Etaj 1 - birouri cu suprafata de 155 mp si terasa cu suprafata de 200 mp; Etaj 2 - birouri cu suprafata de 117 mp si terasa de 35 mp Amplasamentul beneficiaza de parcare betonata la frontul stradal si are implementate toate utilitatile necesare desfasurarii unei activitati comerciale. ID intern: 2142 Aceasta oferta apartine Companiei Palace Real Estate
Citește mai mult Citește mai puțin
Căldură

Detalii spațiu comercial

ID anunț: X5Q114093 Copiat! 274757350 Copiat!
Actualizat în: 21 Aprilie 2026
Înălțime spațiu (m): 3
Regim înălțime: P+2E
Stadiu construcție: Există
Vitrină: Da

Utilități

Utilități
Apă Curent Gaze Canalizare
Comision
3%

Vecinătăți:

Scoala/gradinita, Centru universitar, Restaurant/pub, Mall, Parc, Ultracentral, Hotel, Piata, Benzinarie, Intersectie circulata, Trafic Pietonal, Fastfood, Cinema, Supermarket, Banca, Zona comerciala

Puncte de interes

Mijloace transport
tram-station
Baumax
Stații tramvai aprox. 94 m
tram-station
Baumax
Stații tramvai aprox. 103 m
bus-station
Statia "Moldoplast", linia 29
Stații autobuz aprox. 168 m
train-station
Gara Iasi-Socola
Stații tren aprox. 1278 m
Școală
kindergarten
Gradinita cu program prelungit Nr. 26
Gradinițe aprox. 305 m
school
Sc Gen 24 Ion Ghica
Școli aprox. 310 m
university
Rectoratul Universitatii Politehnice Iasi
Universități aprox. 548 m
kindergarten
Gradinita nr. 1
Gradinițe aprox. 803 m
Recreere
supermarket
BAUMAX-X Iasi
Supermarket aprox. 17 m
sports-ground
Teren sportiv
Terenuri sport aprox. 424 m
park
Parc
Parcuri aprox. 561 m
mall
Iulius Mall
Mall aprox. 677 m

Proprietăți similare

Spațiu comercial, de 230 mp, în Central
1.600.000 €
Iași, Central
230 mp utili
Centru comercial
2016
Spațiu comercial, de 658 mp, în Alexandru cel Bun
1.490.000 €
Iași, Alexandru cel Bun
658 mp utili
Spațiu stradal
1990
Birou, de 1,000 mp, în Baza 3
1.600.000 €
Iași, Baza 3
1.000 mp utili
2006

Detalii de contact

PALACE REAL ESTATE

Mircea Apostu CONSULTANT IMOBILIAR - PARTENER

PALACE REAL ESTATE
PRO

Abonează-te la newsletter să fii primul care primește cele mai noi recomandări de proprietăți și sfaturi de la experți.

CONTACT

Creează alertă

Salvează căutarea ca să primești pe email ultimele anunțuri publicate

Spații comerciale cu 4+ camere de vânzare în zona Tudor Vladimirescu, Iași