Spațiu comercial de vânzare /inchiriere – Central, Otopeni

140.000 €

Otopeni, Județul Ilfov

Sup. utilă / mp. utili:
60 mp
Tip prop.:
Bloc de apartamente
An constr.:
2009
  • • Locație exactă

Descriere spațiu comercial

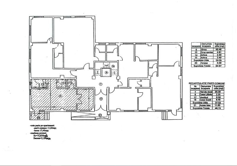
Oportunitate excelentă de investiție! Vă prezentăm un spațiu comercial situat central în Otopeni, ideal pentru activități comerciale, birouri sau servicii. Suprafață utilă: 60 mp An construcție: 2009 Localizare: poziționat strategic în zona centrală, cu acces facil la mijloace de transport, instituții și zone comerciale Caracteristici: compartimentare eficientă, vizibilitate, trafic pietonal și auto . Spațiul beneficiază de toate utilitățile necesare și poate fi adaptat ușor pentru diverse tipuri de activități. Ideal pentru antreprenori sau investitori care caută un loc cu potențial într-o zonă în plină dezvoltare. VANZARE - 140.000 EURO INCHIRIERE - 700 EURO Pentru mai multe detalii si stabilire vizionari, va stam la dispozitie la numarul de telefon - Lica Buicea
Citește mai mult Citește mai puțin

Detalii spațiu comercial

ID anunț: X8EQ0400S Copiat! 270949684 Copiat!
Actualizat în: 04 Decembrie 2025
Regim înălțime: P

Utilități

Comision
3%

Puncte de interes

Mijloace transport
bus-station
Statia Amco, linia 783
Stații autobuz aprox. 1126 m
bus-station
Statia Pasaj Otopeni, linia 149,304
Stații autobuz aprox. 1801 m
train-station
Gara Otopeni
Stații tren aprox. 1826 m
Școală
school
Liceul Teoretic Ioan Petrus - Corp 2
Școli aprox. 42 m
school
Liceul Teoretic Ioan Petrus - Corp 1
Școli aprox. 81 m
kindergarten
Gradinita numarul 1
Gradinițe aprox. 652 m
Recreere
restaurant
"La Iancu" Restaurant
Restaurant aprox. 98 m
park
Rond Primaria Otopeni
Parcuri aprox. 148 m
supermarket
Mega Image Otopeni
Supermarket aprox. 506 m
sports-ground
Teren sportiv
Terenuri sport aprox. 1131 m

Proprietăți similare

Spațiu industrial, 212 mp în Jilava
148.000 €
Județul Ilfov, Jilava
212 mp utili
Producție/Servicii
Spațiu comercial, de 110.00 mp, în Popești-Leordeni
130.000 €
Județul Ilfov, Popești-Leordeni
110 mp utili
Bloc de apartamente
2E
Spațiu comercial, de 60 mp, în Central
150.000 €
Județul Ilfov, Popești-Leordeni
60 mp utili
Casă/Vilă
2024

Detalii de contact

HLM GRUP REAL ESTATE AGENCY SRL

Buicea Lica Director

3.90(7 review-uri)

HLM GRUP REAL ESTATE AGENCY SRL

Abonează-te la newsletter să fii primul care primește cele mai noi recomandări de proprietăți și sfaturi de la experți.

CONTACT

Creează alertă

Salvează căutarea ca să primești pe email ultimele anunțuri publicate

Spații comerciale de vânzare în Otopeni, Județul Ilfov