1

Spatiu comercial ultracentral

185.000 €

Ultracentral, Piatra-Neamț

Sup. utilă / mp. utili:
155 mp
Tip prop.:
Spațiu stradal
  • • Locație exactă

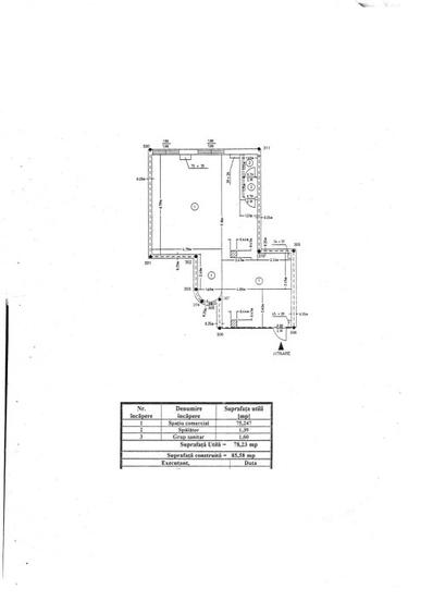
Descriere spațiu comercial

Spatiu comercial,ultracentral, 155 mp, pretabil orice activitate, centrala termica, termopan.
Citește mai mult Citește mai puțin

Detalii spațiu comercial

ID anunț: X5HJ04016 Copiat! 69958989 Copiat!
Actualizat în: 02 Februarie 2026
Nume proprietate: Spatiu comercial ultracentral
Înălțime spațiu (m): 3
Regim înălțime: P
Vitrină: Da

Alte detalii:

Spatiu comercial,ultracentral, 155 mp, pretabil orice activitate, centrala termica, termopan.

Puncte de interes

Mijloace transport
bus-station
Autogara PatruPlusTrans
Stații autobuz aprox. 903 m
bus-station
Dispecerat Troleibuzul
Stații autobuz aprox. 909 m
bus-station
Autogara
Stații autobuz aprox. 923 m
bus-station
Autogara TransMoldavia
Stații autobuz aprox. 925 m
Școală
school
Colegiul National Petru Rares
Școli aprox. 143 m
school
Scoala Nr. 3
Școli aprox. 238 m
school
Scoala nr. 7
Școli aprox. 440 m
school
Gradinita nr.9
Școli aprox. 477 m
Recreere
supermarket
Billa
Supermarket aprox. 34 m
restaurant
La Pizzeria
Restaurant aprox. 54 m
park
Parc Central
Parcuri aprox. 174 m
sports-ground
Teren de sport
Terenuri sport aprox. 758 m

Proprietăți recomandate

Detalii de contact

Expert Imobiliare

Administrator

Expert Imobiliare

Abonează-te la newsletter să fii primul care primește cele mai noi recomandări de proprietăți și sfaturi de la experți.

CONTACT

Creează alertă

Salvează căutarea ca să primești pe email ultimele anunțuri publicate

Spații comerciale de vânzare în zona Ultracentral, Piatra-Neamț