SPATIU COMERCIAL-62 MP-DRUMUL FERMEI

115.000 € + TVA

Popești-Leordeni, Județul Ilfov

Sup. utilă / mp. utili:
62 mp
Tip prop.:
Bloc de apartamente
Niv.:
4
An constr.:
2025
  • • Comision 0%
  • • Locație aproximativă

Descriere spațiu comercial

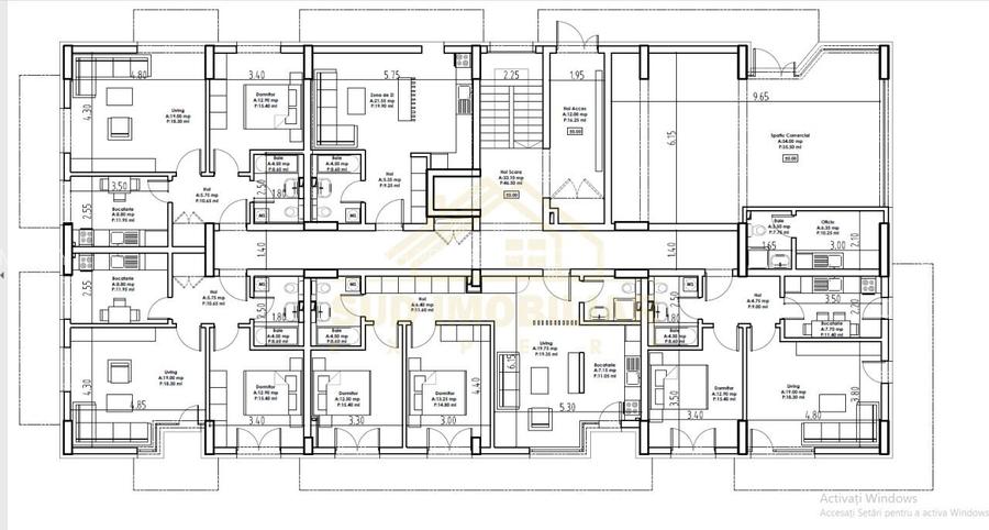
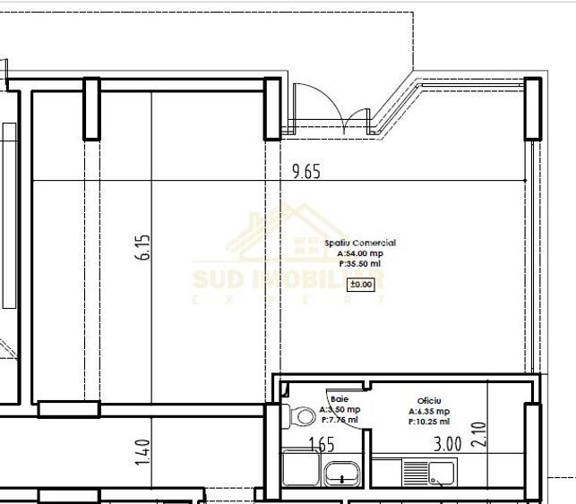
Spatiu comercial situat in vecinatatea oratoriului Murialdo Compartimentat intr-o singura incapere, cu deschidere de 9,6X 6,15m. Pretabil spatii comerciale sau birouri. Va fi predat complet finisat, cu posibilitatea de a alege finisajele interioare, respectiv, gresie, faianta, parchet, racordat la utilitati, centrala proprie, incalzire in pardoseala, ferestre vitrate generoase. Exista posibilitatea de a achizitiona separat locuri de parcare in fata acestuia( unu - trei locuri). Pret pentru un loc de parcare: 7000 euro + TVA Termen finalizare Iulie 2026 Comision 0% Pret 139.000 Euro Tva 21% inclus Contactati echipa % % pentru cele mai bune oferte imobiliare din Popesti Leordeni si Zona de Sud Nr grupuri sanitare: 1 Suprafata construita: 70 mp Nr incaperi: 1 Alte detalii zona - Mijloace de transport Utilitati - Utilitati generale (Curent,Apa,Canalizare,Gaz) pret vanzare: 115000 moneda vanzare: EUR
Citește mai mult Citește mai puțin

Detalii spațiu comercial

ID anunț: X4KP1401K Copiat! 270713878 Copiat!
Actualizat în: 09 Aprilie 2026
Suprafață utilă: 62 mp
Regim înălțime: P+4E
Structură rezistență: Beton

Utilități

Utilități
Apă Gaze Curent Canalizare
Amenajare străzi
Amenajare străzi Mijloace de transport în comun

Certificat energetic:

Clasa energetică: A

Vecinătăți:

Piata, Gradinita, Scoala, Transport public, Metrou, Parc, Drum national, Autostrada

Puncte de interes

Mijloace transport
metro-station
Dimitrie Leonida (M2)
Stații metrou aprox. 543 m
bus-station
Statia IMGB Poarta 1 linia 125
Stații autobuz aprox. 573 m
metro-station
Statia Dimitrie Leonida (I.M.G.B) statie metrou M2
Stații metrou aprox. 603 m
tram-station
ROMPRIM
Stații tramvai aprox. 1445 m
Școală
school
Colegiul Tehnic Miron Nicolescu
Școli aprox. 832 m
school
Grupul Industrial "Dacia"
Școli aprox. 1134 m
university
Universitatea Spiru Haret
Universități aprox. 1695 m
kindergarten
Gradinita "Panseluta", nr.166
Gradinițe aprox. 1837 m
Recreere
supermarket
Simplu (Superlimon Store)
Supermarket aprox. 192 m
restaurant
4 Friends
Restaurant aprox. 252 m
park
Parc
Parcuri aprox. 308 m
sports-ground
Teren sportiv
Terenuri sport aprox. 870 m

Proprietăți recomandate

Detalii de contact

SOUTH REAL ESTATE COMPANY

Dorotheea Oprea

3.67(3 review-uri)

SOUTH REAL ESTATE COMPANY
PRO

Abonează-te la newsletter să fii primul care primește cele mai noi recomandări de proprietăți și sfaturi de la experți.

CONTACT

Creează alertă

Salvează căutarea ca să primești pe email ultimele anunțuri publicate

Spații comerciale de vânzare în Popești-Leordeni, Județul Ilfov