1

Spatiu comercial, investitie excelenta, chiar langa Metrou Berceni

151.250 €

Popești-Leordeni, Județul Ilfov

Sup. utilă / mp. utili:
52,87 mp
Tip prop.:
Bloc de apartamente
Niv.:
5
An constr.:
2013 (Există)
  • • Locație aproximativă

Descriere spațiu comercial

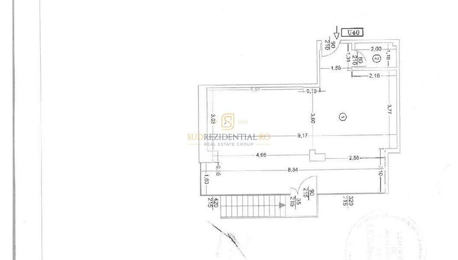
Va prezentam spre vanzare un spatiu comercial deosebit, dispus strategic la parterul unui bloc de locuinte. pe strada Popesti Vest, in zona intens dezvoltata a orasului Popesti-Leordeni, Ilfov. Aceasta locatie este extrem de avantajoasa, si se afla la doar cateva minute de statiile de metrou Berceni si Dimitrie Leonida, asigura acces rapid catre centrul Bucurestiului si atrage un flux constant de potentiali clienti din zona. Avantajele investitiei: Pozitionarea strategica pe strada Popesti Vest, intr-o zona cu cerere ridicata pentru servicii si produse comerciale, reprezinta un avantaj competitiv important pentru orice afacere. Amplasarea la cateva minute de doua statii de metrou majore sporeste accesibilitatea si vizibilitatea,si transforma acest spatiu intr-o oportunitate ideala pentru investitorii interesati de un punct comercial cu trafic intens. Detalii Spatiu: - Suprafata utila:52.87 mp open-space, potrivita pentru diverse activitati comerciale. - Inaltime spatiu:3.5 metri, ofera flexibilitate in amenajarea interioara. - Vitrina extinsa de 8.84 metri liniari: Vizibilitate maxima, perfecta pentru expunere si branding. - Finisaje premium: Dotari moderne, inclusiv centrala proprie de 24 kW, aer conditionat si contorizare individuala. - Parcare exterioara:1 loc dedicat, faciliteaza accesul clientilor. Acest spatiu comercial reprezinta o investitie excelenta, beneficieaza de o amplasare de exceptie, aproape de transportul public si accesibil pentru o gama larga de clienti, si este potrivit pentru diverse activitati comerciale si servicii profesionale. Acest spatiu comercial este situat in orasul Popesti-Leordeni, Ilfov, pe strada Popesti Vest, intr-o zona cu acces excelent si vizibilitate sporita. Amplasarea sa in apropierea Soselei Berceni, precum si a statiilor demetrou Dimitrie Leonida si Berceni, faciliteaza deplasarea rapida atat pentru locuitorii din Popesti-Leordeni, cat si pentru cei din Bucuresti. Zona beneficiaza de un vad comercial puternic, generat de numeroasele ansambluri rezidentiale dezvoltate in vecinatate, si asigura un flux constant de clienti si oportunitati ideale pentru diverse afaceri comerciale. Pret de lista: 125.000 Euro + TVA
Citește mai mult Citește mai puțin
1 Parcare

Detalii spațiu comercial

ID anunț: XFQP1402S Copiat! 273211029 Copiat!
Actualizat în: 19 Mai 2026
Tip tranzacție: De vânzare prin agent
Suprafață utilă: 52.87 mp
Regim înălțime: P+5E
Structură rezistență: Beton
Stadiu construcție: Există
Vitrină: Da
Modalitate de plată: Cash sau Credit

Utilități

Destinație
Birouri Comercial Rezidențial
Utilități
Curent Apă Canalizare Gaze
Comision
standard

Disponibilitate proprietate:

Imediat

Puncte de interes

Mijloace transport
bus-station
Statia IMGB Poarta 2, linia 125, metrou M2
Stații autobuz aprox. 627 m
bus-station
Statia IMGB Poarta 1 linia 125
Stații autobuz aprox. 652 m
metro-station
Berceni (M2)
Stații metrou aprox. 653 m
tram-station
ROMPRIM
Stații tramvai aprox. 1948 m
Școală
school
Colegiul Tehnic Miron Nicolescu
Școli aprox. 1127 m
school
Grupul Industrial "Dacia"
Școli aprox. 1647 m
school
Scoala Gimnaziala Speciala Sfantul Nicolae
Școli aprox. 1764 m
school
Scoala nr. 2
Școli aprox. 1826 m
Recreere
supermarket
D & I Succes Market Store
Supermarket aprox. 135 m
restaurant
Pizza Italia
Restaurant aprox. 283 m
park
Parc
Parcuri aprox. 360 m
sports-ground
Teren sportiv
Terenuri sport aprox. 1209 m

Istoricul prețurilor

Acces la informații premium după autentificare
Login Gratuit

Proprietăți similare

Spațiu comercial, de 100 mp, în Ghermănești
114.999 €
Județul Ilfov, Ghermănești
100 mp utili
2E
2008
Spațiu comercial, de 79.57 mp, în Central
128.000 €
Județul Ilfov, Popești-Leordeni
79,57 mp utili
Bloc de apartamente
5E
Spațiu comercial, de 96.00 mp, în Chiajna
117.000 €
Județul Ilfov, Chiajna
96 mp utili
Bloc de apartamente
8E

Detalii de contact

SUDREZIDENTIAL.

Alexandru Costache Director Vanzari

SUDREZIDENTIAL.
PRO

Abonează-te la newsletter să fii primul care primește cele mai noi recomandări de proprietăți și sfaturi de la experți.

CONTACT

Creează alertă

Salvează căutarea ca să primești pe email ultimele anunțuri publicate

Spații comerciale de vânzare în Popești-Leordeni, Județul Ilfov