Spațiu Comercial pretabil pentru Mini-Market, Fast-Food & Club + Teren Preț Neg.

220.000 €

Rediu, Județul Neamț

Sup. utilă / mp. utili:
332 mp
Tip prop.:
Casă/Vilă
  • • Comision 0%
  • • Locație exactă

Descriere spațiu comercial

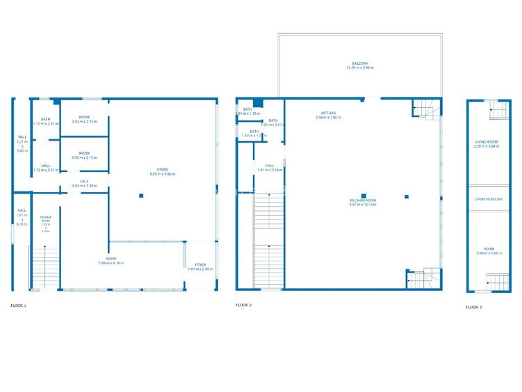
Se oferă spre vânzare o clădire comercială cu structură metalică și completare din BCA, ideală pentru activități comerciale diverse, situată într-o zonă centrală și strategică, vis-a-vis de școala gimnazială comunală Rediu și de Primărie și în apropierea Poliției comunale. Caracteristici principale: Alimentare cu apă duală: Proprietatea este conectată atât la rețeaua de apă comunală, cât și la un puț propriu, cu posibilitatea de a comuta între cele două surse. Bazin vidanjabil pentru gestionarea apei uzate. Climatizare eficientă: Sistem de aer condiționat cu inverter atât la parter, cât și la etaj. Instalație electrică modernă, distribuită pe toate cele trei faze, pentru a preveni dezechilibrele de consum. Sistem de încălzire a apei: Boiler electric de 60L. Dotări și facilități comerciale: Parterul este complet echipat pentru activități de tip fast-food și pizzerie, incluzând aparatură de top: cuptor pentru pizza, malaxor Dosna, dospitor și cuptoare Wiesheu (cuptor etajat pe vatră și cuptor ciclotermic). Alte echipamente: cuptor cu microunde, friteuză, placă electrică pentru copt diverse preparate. Facilități suplimentare: Baie clienți la etajul 1 și baie pentru angajați la parter. Locuri de parcare: Spațiu pentru 4 autoturisme, cu acces facil pentru aprovizionare și clienți. Posibilitate de extindere a terenului în direcția sudică. Proprietatea este situată în centrul satului, lângă Căminul Cultural și terenul de sport al comunității, ceea ce îi conferă un potențial comercial excelent. Preț Negociabil: 220,000 Euro Pentru mai multe informații și vizionări, vă rugăm să ne contactați.
Citește mai mult Citește mai puțin

Detalii spațiu comercial

ID anunț: XV0204UTN Copiat! 242244118 Copiat!
Actualizat în: 16 Aprilie 2026
Suprafață utilă: 332 mp

Utilități

Comision
0%

Proprietăți similare

Spațiu industrial, 714 mp în Dărmănești
199.000 €
Piatra-Neamț, Dărmănești
Producție/Servicii
Spațiu industrial, de 755.00 mp, în Girov
200.000 €
Județul Neamț, Girov
755 mp utili
Spațiu comercial, 105 mp în Central
215.000 €
Piatra-Neamț, Central
105 mp utili
Casă/Vilă

Detalii de contact

Ryan-Peter Botas

Ryan Peter Botas

Spatialist Media

Abonează-te la newsletter să fii primul care primește cele mai noi recomandări de proprietăți și sfaturi de la experți.

CONTACT

Creează alertă

Salvează căutarea ca să primești pe email ultimele anunțuri publicate

Spații comerciale de vânzare în Județul Neamț