IMI Residence - Spatiu comercial la parter - 89.98 mp- cu vitrina

99.000 € + TVA

Sânandrei, Județul Timiș

Sup. utilă / mp. utili:
89,98 mp
Tip prop.:
Bloc de apartamente
Niv.:
2
An constr.:
2026 (În construcție)
  • • Comision 0%
  • • Locație exactă

Descriere spațiu comercial

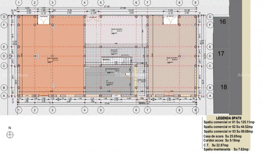
La pretul afisat se adauga TVA 21% Variante de achizitie: - in faza de proiect/executie: 1100 E/mp + TVA - la finalizarea proiectului: 1400 E/ mp + TVA IMI Residence, dezvoltator cu peste 10 ani de experienta in domeniul imobiliar, ofera spre vanzare spatiu comercial amplasat intr-un cartier nou rezidential al comunei Sanandrei, localitate care isi propune sa valorifice potentialul si oportunitatile de dezvoltare, inclusiv crearea unui mediu de afaceri competitiv, destinat sa atraga investitii importante din tara si strainatate si care ofera serviciile necesare pentru a trai in armonie alaturi de cei dragi: gradinita cu program prelungit, scoala generala cu clase I-VIII, bazine de inot cu cursuri pentru copii, policlinica medicala, terenuri de sport, restaurante, spalatorii, mijloace de transport catre si dinspre Timisoara. Linia M41 de autobuz (Timișoara - Sanandrei - Carani) are 13 de opriri, prima stație la Vasile Pârvan și ultima stație la Darson: - Orarul autobuzului M41 de luni pana vineri: începe programul la 5:00 și se termină la 22:35. Frecventa: 1h:10, 15 curse pe zi - Orarul autobuzului M41 sambata si duminica: începe programul la 6:25 și se termină la 15:00. Frecventa: 8h:35, 2 curse pe zi Asa cum am obisnuit clientii, toate materialele folosite fac parte din clasa superioara, la fel dotarile: centralele termice Romstal, decorativa siliconata Kober, izolatia Austroterm de 10 cm, incalzirea in pardoseala, instalatiile sanitare Ideal Standard de la Romstal, geamurile tripane Rehau cu dubla deschidere si 6 camere de izolatie pe tamplarie reprezinta cateva notiuni care intaresc angajamentul nostru de a oferi imobile bine construite, bine finisate, de care sa va bucurati. Spatiul comercial propus spre vanzare este localizat la parterul unei cladiri de aprtamente in regim P+2E, unde parterul are destinatie exclusiv comerciala si este format din 3 spatii comerciale distincte, de marimi diferite si apartine zonei residentiale IMI Residence
Citește mai mult Citește mai puțin
1 Parcare

Detalii spațiu comercial

ID anunț: X7PS0406H Copiat! 275204294 Copiat!
Actualizat în: 13 Martie 2026
Suprafață utilă: 89.98 mp
Regim înălțime: P+2E
Structură rezistență: Cărămidă
Stadiu construcție: În construcție

Utilități

Utilități
Curent Apă Canalizare
Comision
0%

Proprietăți recomandate

Detalii de contact

Abonează-te la newsletter să fii primul care primește cele mai noi recomandări de proprietăți și sfaturi de la experți.

Feedback apel

CONTACT

Creează alertă

Salvează căutarea ca să primești pe email ultimele anunțuri publicate

Spații comerciale cu o cameră de vânzare în Sânandrei, Județul Timiș