10

Spatiu Comercial in Complexul Arcadia Apartments Domenii vitrina generoasa

366.000 €

Domenii, București

Sup. utilă / mp. utili:
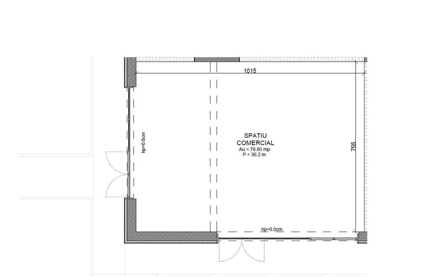
78 mp
Tip prop.:
Bloc de apartamente
Niv.:
7
An constr.:
2026 (În construcție)
  • • Locație exactă

Descriere spațiu comercial

Oportunitate excelentă de investiție sau dezvoltare business într-una dintre cele mai căutate zone din nordul Capitalei –zona Domenii. Spatiul este situat in complexul Arcadia Apartments Domenii. 🔹 Preț: 366.000 € + TVA 🔹 2 locuri de parcare incluse în preț 🔹 Deschidere pe 2 laturi 🔹 2 căi de acces 🔹 Vitrină generoasă – 38 mp Spațiul beneficiază de o vizibilitate excelentă datorită vitrinei ample și poziționării pe două laturi, oferind expunere maximă pentru orice tip de activitate comercială: salon, cafenea, magazin de proximitate sau birou reprezentativ. Accesul facil prin cele două intrări permite organizarea eficientă a fluxului de clienți și personal. Cele două locuri de parcare incluse adaugă un avantaj major atât pentru angajați, cât și pentru vizitatori. 📍 Poziționat în zona Domenii, într-un complex rezidențial modern, cu trafic pietonal constant și comunitate activă. Pentru detalii suplimentare și programarea unei vizionări, vă stăm la dispoziție.
Citește mai mult Citește mai puțin
2 Parcări Căldură

Detalii spațiu comercial

ID anunț: X9K004008 Copiat! 275120889 Copiat!
Actualizat în: 12 Mai 2026
Tip tranzacție: De vânzare prin dezvoltator
Nume proprietate: Arcadia Apartments
Regim înălțime: 2S+P+7E
Stadiu construcție: În construcție
Vitrină: Da
Recomandare utilizare: Pentru utilizare proprie
Modalitate de plată: Cash sau Credit

Utilități

Utilități
Apă Canalizare Curent Gaze

Puncte de interes

Mijloace transport
bus-station
Statia Sandu Aldea, linia 300, N118
Stații autobuz aprox. 305 m
metro-station
Metrorex. Stația Grivița (M4)(2000)
Stații metrou aprox. 426 m
tram-station
Piata Domenii
Stații tramvai aprox. 454 m
trolleybus-station
Statie Caraiman 65, 97, 86
Stații troleibuz aprox. 621 m
Școală
school
Gradinita de copii nr.43
Școli aprox. 96 m
kindergarten
Gradinita nr. 43
Gradinițe aprox. 96 m
school
Colegiu National Aurel Vlaicu
Școli aprox. 125 m
university
Facultatea de Biotehnologii
Universități aprox. 458 m
Recreere
park
Clubul Copiilor nr. 1, Ciresarii
Parcuri aprox. 146 m
sports-ground
Teren sportiv
Terenuri sport aprox. 217 m
supermarket
Annabella
Supermarket aprox. 237 m
public-square
Piata Montreal
Piețe publice aprox. 1403 m

Istoricul prețurilor

Acces la informații premium după autentificare
Login Gratuit

Proprietăți similare

Spațiu comercial, 188 mp în Aviației
395.000 €
București, Aviației
188 mp utili
Bloc de apartamente
2012
Spațiu comercial, 231 mp în Băneasa
360.000 €
București, Băneasa
231 mp utili
Bloc de apartamente
4E
Spațiu comercial, 75 mp în Grivița
345.000 €
București, Grivița
75 mp utili
Casă/Vilă

Detalii de contact

Conadi

Conadi

Conadi

Abonează-te la newsletter să fii primul care primește cele mai noi recomandări de proprietăți și sfaturi de la experți.

CONTACT

Creează alertă

Salvează căutarea ca să primești pe email ultimele anunțuri publicate

Spații comerciale de vânzare în zona Domenii, Sector 1