Comision 0
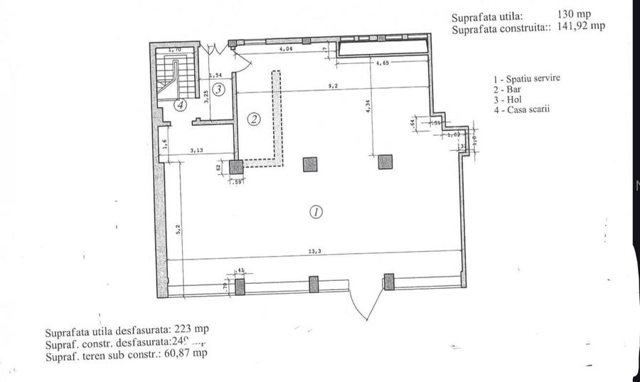
Va propunem la vanzare un spatiu comercial situat in Floreasca in suprafata de 220 mp . Actualul chirias functioneaza de 6 ani avand un restaurant, contract valabil pana in 2029. Tranzactia se poate realiza cu taxare inversa sau preluare societate.
Sediul central - Timișoara
Bulevardul Victor Babeș nr. 2, 300230, Timișoara, România
Tel: +40.374.40.44.98 / Fax: +40.256.401.179
Email: suport@imobiliare.ro
Luni - Vineri 08:00 - 20:00
Punct de lucru - București: Iride Business Park, Bld. Dimitrie
Pompeiu 9-9A, Clădirea B2B,
020335, Sector 2, București, România
CONTACT
Sediul central - Timișoara
Bulevardul Victor Babeș nr. 2, 300230, Timișoara, România
Tel: +40.374.40.44.98 / Fax: +40.256.401.179
Email: suport@imobiliare.ro
Luni - Vineri 08:00 - 20:00
Punct de lucru - București: Iride Business Park, Bld. Dimitrie
Pompeiu 9-9A, Clădirea B2B,
020335, Sector 2, București, România
Gradinita cu program normal si prelungit Happy Kids
aprox.
753 m
Gradinita de copii nr.251
aprox.
1049 m
Grădinița nr. 252
aprox.
1079 m
Gradinita SOS Satul Copiilor
aprox.
1116 m
Gradinita nr. 7
aprox.
1294 m
Gradinita cu program normal ""Ge Ce Pic Englishkinder"
aprox.
1362 m
Gradinita de Copii Nr. 52
aprox.
1411 m
Gradinita nr. 252 cu program prelungit
aprox.
1564 m
Gradinita nr. 7
aprox.
1579 m
Gradinita Numarul 7
aprox.
1586 m
Gradinita nr. 138 cu program prelungit
aprox.
1615 m
Gradinita nr. 2
aprox.
1704 m
Universitatea Atenaeum
aprox.
586 m
Athenaeum University (en)
aprox.
592 m
SNSPA
aprox.
1720 m
Scoala Nationala de Studii Politice si Administrative (SNSPA)
aprox.
1745 m
Scoala Nationala de Studii Politice si Administrative
aprox.
1745 m
CROS - Universitatea Alternativa
aprox.
1839 m
ASE - Sala de sport
aprox.
1896 m
ASE - Cladirea Cihoschi
aprox.
1917 m
ASE - Cibernetica
aprox.
1920 m
Facultatea de Hidrotehnica
aprox.
1926 m
ASE Cladirea Veche 1916 - 1926 (en)
aprox.
1932 m
ASE Cibernetica (en)
aprox.
1933 m
Amfiteatrele ASE
aprox.
1950 m
Academia de Studii Economice
aprox.
1964 m
ASE - Facultatea de Comert
aprox.
1966 m
Nic Dorobanti Non-Stop
aprox.
595 m
Mario Plaza
aprox.
759 m
Mega Image
aprox.
765 m
BILLA - B. Vacarescu
aprox.
830 m
Kaufland Barbu Vacarescu
aprox.
876 m
Mega Image
aprox.
889 m
Mega Image
aprox.
1246 m
Mega Image - IANCU DE HUNEDOARA
aprox.
1407 m
Promenada
aprox.
1490 m
Carrefour Market
aprox.
1558 m
Domino Plaza
aprox.
1560 m
Issa Supermarket
aprox.
1604 m
Mega Image Concept Store
aprox.
1608 m
Carrefour Market
aprox.
1640 m
Mega Image Maica Domnului Non-Stop
aprox.
1672 m
"METROPLIS CENTER"
aprox.
1422 m
Small parking
aprox.
59 m
Parcare
aprox.
133 m
Parcare
aprox.
631 m
Parcare
aprox.
671 m
Parcare
aprox.
731 m
Parcare Mario Plaza
aprox.
759 m
Parcare
aprox.
777 m
Parcare
aprox.
872 m
Parcare
aprox.
892 m
Parcare
aprox.
907 m
Parcare
aprox.
1017 m
Parcare
aprox.
1033 m
Parcare
aprox.
1075 m
Parcare spital
aprox.
1135 m
Parcare
aprox.
1135 m
Parcul Floreasca(1963)
aprox.
85 m
Parc
aprox.
114 m
Automatica Park (en)
aprox.
280 m
Parc
aprox.
290 m
Parcul Floreasca Cinema
aprox.
484 m
Parc
aprox.
490 m
Parc
aprox.
497 m
George Calinescu Round (en)
aprox.
572 m
Parc
aprox.
572 m
Piata Dorobantilor
aprox.
730 m
Piata Dorobanti
aprox.
734 m
Parcul Verdi
aprox.
847 m
Parcul Verdi
aprox.
849 m
Parc
aprox.
947 m
Parcul Khalil Gibran
aprox.
952 m
Teren sportiv
aprox.
542 m
Teren sportiv
aprox.
612 m
Teren sportiv
aprox.
806 m
Teren sportiv
aprox.
879 m
ICSIM
aprox.
884 m
Teren sportiv
aprox.
933 m
Teren sportiv
aprox.
948 m
Teren sportiv
aprox.
973 m
Teren sportiv
aprox.
1123 m
Teren sportiv
aprox.
1129 m
Stadionul Dinamo
aprox.
1139 m
Teren sportiv
aprox.
1194 m
Teren sportiv
aprox.
1214 m
Teren sportiv
aprox.
1218 m
Teren sportiv
aprox.
1246 m
Piața Aviatorilor
aprox.
1227 m
Farmacia Nr. 17
aprox.
283 m
Farmaplus
aprox.
444 m
Farmacia 144
aprox.
549 m
Sensiblu
aprox.
562 m
Help Net Farma
aprox.
601 m
Help Net Farma
aprox.
624 m
Catena Farmacia
aprox.
883 m
Help Net Farma
aprox.
976 m
Farmacia HelpNet
aprox.
1025 m
Crisia-Farm
aprox.
1063 m
Farmacia Tei
aprox.
1107 m
Farmacia Richter
aprox.
1135 m
Farmacia Dona 17
aprox.
1139 m
Farmacia Crisia
aprox.
1183 m
Farmacia Nr. 2
aprox.
1213 m
Zirconium dental center
aprox.
499 m
Dispensar floreasca
aprox.
513 m
ProEstetica
aprox.
620 m
Policlinica Regina Maria
aprox.
794 m
BIOS Diagnostic Medical Services
aprox.
977 m
inst. Parhon - clădirea nouă
aprox.
1099 m
Centrul Medical Academica
aprox.
1103 m
Spitalul Euroclinic - Regina Maria
aprox.
1168 m
Syromed+
aprox.
1178 m
Spitalul Euroclinic
aprox.
1180 m
Regina Maria Floreasca
aprox.
1186 m
Policlinica
aprox.
1187 m
Spitalul de Urgenta Floreasca
aprox.
1240 m
Spitalul de Urgență Floreasca
aprox.
1250 m
Camera de Garda - Spitalul de Urgenta Floreasca
aprox.
1268 m
Restaurant Diesel
aprox.
226 m
Restaurant by the lake (en)
aprox.
230 m
Spring Time
aprox.
282 m
Kanpai
aprox.
331 m
Bun si Tot
aprox.
411 m
Complex Club Floreasca (en)
aprox.
421 m
Club Floreasca
aprox.
421 m
Trattoria Cavallino
aprox.
458 m
White Horse
aprox.
512 m
Restaurant Floreasca 2
aprox.
529 m
Restaurant arabesc
aprox.
542 m
McDonald's
aprox.
721 m
Trattoria "As del Cuore"
aprox.
736 m
Barca
aprox.
807 m
Exile
aprox.
831 m
Ambiance Caffe
aprox.
316 m
The Eatery
aprox.
476 m
Nuba Cafe
aprox.
530 m
High Heels
aprox.
613 m
Randez Vous
aprox.
688 m
Fitto Cafe
aprox.
768 m
Cafe Centro
aprox.
920 m
Ganesha Cafe
aprox.
1025 m
Golf&Coffee
aprox.
1242 m
Spazi Caffe Promenada
aprox.
1412 m
Reader's Cafe
aprox.
1423 m
Filicori Promenada
aprox.
1482 m
On-Off Coffee Shop
aprox.
1490 m
Starbucks Coffee
aprox.
1533 m
City Grill
aprox.
1590 m
Doncafe Brasserie
aprox.
815 m
Restaurant-pizzerie BONA DA ELENA
aprox.
1148 m
Studio Martin
aprox.
1326 m
Barletto
aprox.
1463 m
Open Pub
aprox.
1590 m
Panik & Pub
aprox.
1968 m
Sky Bar
aprox.
914 m
Cup & Cake
aprox.
1048 m
La Baraca
aprox.
1621 m
Happy Pub
aprox.
1737 m
ACAB Pub
aprox.
1779 m
Clubul Taranului
aprox.
1779 m
Zappa Rock & More
aprox.
1876 m
Simbi's
aprox.
1939 m
Lokal
aprox.
1940 m
El Bistro
aprox.
1955 m
Alan Dala
aprox.
1997 m
Garanti Bank
aprox.
412 m
Garanti Bank
aprox.
433 m
Raiffeisen Bank
aprox.
537 m
Raiffaisen Bank
aprox.
542 m
UniCredit Bank - Ag. Dorobanti
aprox.
587 m
Banca Transilvania - Ag. Dorobanti
aprox.
587 m
BRD
aprox.
625 m
BRD Piata Dorobanti
aprox.
638 m
Raiffeisen
aprox.
644 m
Raiffeisen Bank
aprox.
652 m
Raiffeisen Bank
aprox.
652 m
Bank of Cyprus Romania
aprox.
669 m
Raiffeisen Bank - Agentia Dorobanti
aprox.
770 m
Credit Europe Bank - Suc. Dorobanti VIP (en)
aprox.
807 m
ING Kaufland Barbu Vacarescu
aprox.
842 m
Printre mijloacele de transport în comun pe care le vei avea la dispoziție în cazul în care te vei muta în zona Floreasca se numără autobuzele 182 și 135. Primul dintre acestea îți oferă o legătură directă cu zona Gării de Nord și cu cartierul Colentina. Cel de-al doilea oferă o conexiune cu zona Pipera, unul dintre principalii poli de business din nordul orașului. Stația de metrou Ștefan cel Mare, aflată pe magistrala M1 Dristor-Pantelimon, la care ai acces în apropierea Stadionului Dinamo, îți va fi și ea de ajutor dacă vrei să eviți aglomerația din trafic. Astfel, vei avea doar o stație de mers până la Piața Victoriei, iar de aici poți schimba metroul pentru a ajunge în cel mult 10 minute în Pipera. Verifică harta pentru a afla unde sunt poziționate stațiile mijloacelor de transport în comun.
Dacă te vei muta în zona Floreasca, atunci vei avea în apropierea casei tale Liceul Teoretic "CA Rosetti" și Școala Gimnazială "Maria Rosetti". În cartier găsești, totodată, câteva grădinițe private și de stat. Consultă harta pentru a vedea care sunt unitățile de învățământ din Floreasca și din vecinătatea acestei zone.
Pe Strada Barbu Văcărescu vei găsi un magazin Kaufland și un Carrefour Market, iar la limita nordică a cartierului vei avea la dispoziție mall-ul Promenada. Din zona Floreasca ajungi destul de rapid la magazinele de lângă Pasajul Băneasa și la Piața Băneasa, iar cu mașina faci doar câteva minute până la Băneasa Shopping City, unul dintre cele mai mari centre comerciale din oraș. Vis-a-vis de acesta găsești și magazine Mega Image, Selgros și Decathlon. Află de pe hartă unde îți vei face cumpărăturile dacă te muți în acest cartier.
Dacă preferi să te deplasezi cu mașina prin oraș, este bine să știi că vei întâlni aglomerație în trafic, în special la orele de vârf, la intersecțiile dintre Șoseaua Ștefan cel Mare, Strada Barbu Văcărescu și Calea Floreasca. Circulația este îngreunată de multe ori și pe Strada Barbu Văcărescu, pe segmentul dinspre Șoseaua Pipera, din cauza numărului mare de angajați care lucrează în clădirile de birouri din jurul stației de metrou Aurel Vlaicu. Încearcă să te adresezi Biroului Parcări din cadrul ADP Sector 2 pentru a vedea dacă poți închiria un loc de parcare pentru mașina ta în apropierea casei. Consultă harta pentru a afla unde sunt poziționate principalele parcări.
Dacă te muți în zona Floreasca, vei avea mereu în apropiere unele dintre cele mai apreciate restaurante, terase și cluburi din București. Iar dacă vrei să încerci ceva nou atunci la doi pași de casă, în Dorobanți, vei găsi și alte localuri de care te poți bucura în timpul liber. Mai multe săli de fitness s-au deschis în cartier. În apropiere de viitoarea ta casă vei avea Parcul Verdi și Parcul Floreasca. Poți merge la terasă sau la piscină în zona acestuia din urmă. Tot în apropiere vei avea și Circul Metropolitan București (fostul Circ Globus) și parcul acestuia. Complexul Sportiv Floreasca și Stadionul Dinamo, unde sunt amenajate mai multe terenuri de sport și unde poți merge la înot, merită și ele menționate. În partea de nord a cartierului vei găsi, totodată, Clubul Sportiv de Fotbal Athletico Floreasca și Academia de Tenis Ilie Năstase. Consultă harta și vezi ce alte puncte de interes vei avea în apropierea casei tale.
În apropierea Stadionului Dinamo găsești Spitalul Clinic de Urgență București (cunoscut și sub numele de Spitalul Floreasca) și Spitalul Euroclinic care face parte din rețeaua privată de sănătate Regina Maria. În cartier există și câteva clinici private la care poți apela la nevoie, iar în zona Parcului Circului alte două spitale - Spitalul Sf. Ștefan și Spitalul Clinic Colentina. Consultă harta pentru a afla poziționarea exactă a unităților sanitare din cartier și din împrejurimi.
Găsești numeroase restaurante și terase de-a lungul arteri de circulație care traversează această zonă, Calea Floreasca. Ai, totodată, la doi pași de casă, mall-ul Promenada, unde găsești atât un food court cu destul de multe opțiuni, cât și câteva terase unde îți poți savura cafeaua în aer liber, dar și localurile din Dorobanți. Ajungi foarte rapid și în Piața Victoriei, unde găsești mai multe cafenele. De acolo, poți lua la pas Calea Victoriei, una dintre cele mai frumoase zone din oraș. Te vei plimba și vei găsi, cu siguranță, un restaurant pe gustul tău. Aruncă o privire pe hartă și vezi ce alte opțiuni ai în apropierea viitoarei tale locuințe.
Mai multe bănci și ATM-uri pot fi găsite în zona mall-ului Promenada și la intersecția dintre Calea Floreasca și Șoseaua Ștefan cel Mare. Pentru mai multe detalii, consultă harta.
Înainte să pleci...
Ești sigur că ai văzut și aceste proprietăți?
1.500.000 €
București, Domenii
217,66 mp utili
Bloc de apartamente
8E
600.000 €
București, Cantemir
274 mp utili
Spațiu stradal
1960
2.200.000 €
București, Floreasca
151 mp utili
Centru comercial
949.900 €
București, Aviației
161 mp utili
Spațiu stradal
1985
630.000 €
București, Șerban Vodă
277 mp utili
Spațiu stradal
10E
564.500 €
București, Doamna Ghica
291,55 mp utili
Bloc de apartamente
2023
Creează alertă
Salvează căutarea ca să primești pe email ultimele anunțuri publicate
Spații comerciale cu 4+ camere de vânzare în zona Floreasca, Sector 1
Cere detalii prin email
*
*
*
*
Detaliile tale de contact vor fi partajate cu Nord Im Premium