2

Vanzare 246 mp spatiu comercial in Cortina North si 3 locuri parcare

770.000 €

Pipera, București

Sup. utilă / mp. utili:
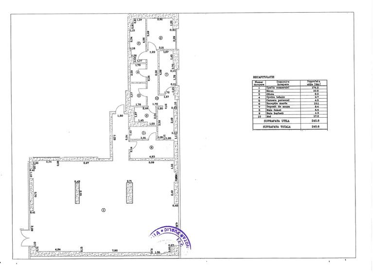
246 mp
Tip prop.:
Spațiu stradal
An constr.:
2025
  • • Locație exactă

Descriere spațiu comercial

Va prezint un spatiu comercial de 246 mp amplasat in ansamblul rezidential Cortina North. Se vinde impreuna cu 3 locuri de parcare ( locurile de parcare se vand separat, iar pretul de promovare este pentru spatiul comercial ). Aveti avantajul ca se poate personaliza spatiul functie de specificul activitatii dvs. Cartierul este deosebit, dispune de numeroase facilitati, are paza si acces controlat, iar intrarea in cartier este facila deoarece a fost construit un sens giratoriu la intrare. In cartier sunt peste 1500 apartamente exclusiviste, iar afacera dvs. se va adresa unui numar mare de oameni care locuiesc in acest ansamblu. Locatia este excelenta, iar pentru detalii suplimentare ma puteti contacta telefonic, pe Whatsapp sau prin e-mail.
Citește mai mult Citește mai puțin
3 Parcări

Detalii spațiu comercial

ID anunț: XEDM0400F Copiat! 272285648 Copiat!
Actualizat în: 18 Mai 2026
Tip tranzacție: De vânzare prin agent
Regim înălțime: P
Stadiu construcție: Există
Vitrină: Da
Modalitate de plată: Cash sau Credit

Utilități

Utilități
Curent Canalizare Apă Gaze

Puncte de interes

Mijloace transport
bus-station
Capat C.F.R Constanta linii : 112,135,445
Stații autobuz aprox. 329 m
tram-station
Rocin
Stații tramvai aprox. 814 m
metro-station
Pipera (M2)
Stații metrou aprox. 964 m
airport
Aeroportul Internațional Băneasa (Aurel Vlaicu) - LRBS (BBU)
Aeroporturi aprox. 1854 m
Școală
school
Colegiul Tehnic Edmond Nicolau, fostul Electronica
Școli aprox. 1326 m
school
Grupul Scolar Industrial Constantin Brancusi (en)
Școli aprox. 1426 m
kindergarten
Gradinita Zece
Gradinițe aprox. 1512 m
kindergarten
Gradinita Miniterra
Gradinițe aprox. 1916 m
Recreere
restaurant
Q's Inn
Restaurant aprox. 609 m
park
spatiu verde
Parcuri aprox. 688 m
supermarket
Kaufland
Supermarket aprox. 868 m
sports-ground
Teren sportiv
Terenuri sport aprox. 1148 m

Istoricul prețurilor

Acces la informații premium după autentificare
Login Gratuit

Proprietăți similare

Spațiu comercial, de 150 mp, în
800.000 €
București, I.C. Brătianu
150 mp utili
Spațiu stradal
Hotel/Pensiune, 321 mp în Dorobanți
834.900 €
București, Dorobanți
321 mp utili
2025
Spațiu comercial, de 580 mp, în Dorobanți
700.000 €
București, Dorobanți
580 mp utili
Casă/Vilă
1920

Detalii de contact

ANDREI CONSULTANTA IMOBILIARA

Andrei Bogdan Manolescu

4.93(10 review-uri)

ANDREI CONSULTANTA IMOBILIARA
PRO

Abonează-te la newsletter să fii primul care primește cele mai noi recomandări de proprietăți și sfaturi de la experți.

CONTACT

Creează alertă

Salvează căutarea ca să primești pe email ultimele anunțuri publicate

Spații comerciale de vânzare în zona Pipera, Sector 1