Adresă: imediat lângă stația de metrou Basarab
Regim de înălțime: P + 4E
Destinații posibile: Office · Medical · Evenimente · Servicii
⸻
Descriere generală
Vă propunem spre prezentare o clădire modernă și extrem de bine amplasată, situată în zona Titulescu – Pasajul Basarab, la doar câțiva pași de stația de metrou Basarab. Poziția excelentă oferă vizibilitate, acces rapid și conectivitate către toate direcțiile importante ale orașului.
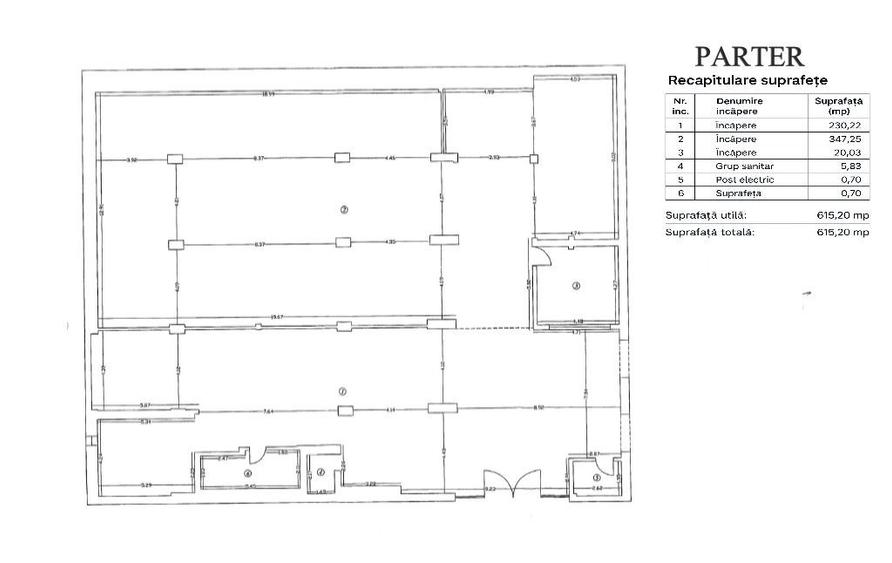
Imobilul are un regim de înălțime P + 4 etaje, cu o structură foarte solidă, pretabilă pentru o gamă variată de funcțiuni.
⸻
Caracteristici principale
• Open space pe fiecare nivel, oferind flexibilitate maximă în compartimentare
• Structură de rezistență robustă, care permite reorganizarea spațiilor în funcție de nevoi
• Fațadă cu expunere excelentă către zone cu trafic intens
• Acces direct la mijloacele de transport în comun: metrou Basarab, tramvai, autobuz
• Posibilitate de personalizare interioară pentru diferite funcțiuni
• Lift și circulații verticale eficiente (dacă ai detaliu, pot integra)
⸻
Funcțiuni recomandate
Datorită structurii și localizării sale, clădirea este ideală pentru:
• Spații de birouri (IT, call-center, firme de consultanță, sedii corporate)
• Clinici și servicii medicale (imagistică, stomatologie, policlinici)
• Spații pentru evenimente corporate, traininguri sau workshopuri
• Showroom-uri sau concept spaces
• Centre educaționale (after-school, școli private, formare profesională)
⸻
Avantaje competitive
• Amplasată într-una dintre cele mai accesibile și dinamice zone ale Bucureștiului
• Vizibilitate excelentă, cu trafic pietonal și auto ridicat
• Configurație flexibilă, ușor de adaptat oricărui tip de business
• Potențial ridicat de investiție și reconversie funcțională
Sediul central - Timișoara
Bulevardul Victor Babeș nr. 2, 300230, Timișoara, România
Tel: +40.374.40.44.98 / Fax: +40.256.401.179
Email: suport@imobiliare.ro
Luni - Vineri 08:00 - 20:00
Punct de lucru - București: Iride Business Park, Bld. Dimitrie
Pompeiu 9-9A, Clădirea B2B,
020335, Sector 2, București, România
CONTACT
Sediul central - Timișoara
Bulevardul Victor Babeș nr. 2, 300230, Timișoara, România
Tel: +40.374.40.44.98 / Fax: +40.256.401.179
Email: suport@imobiliare.ro
Luni - Vineri 08:00 - 20:00
Punct de lucru - București: Iride Business Park, Bld. Dimitrie
Pompeiu 9-9A, Clădirea B2B,
020335, Sector 2, București, România
Vechea "Gara a Targovistei" astazi parte din Gara de Nord
aprox.
867 m
Halta CFR Bucuresti Basarab h
aprox.
1630 m
Liceul Teoretic Ion Neculce
aprox.
247 m
Gradinita de copii Nr.42
aprox.
415 m
Scoala Gimnaziala nr.170 Geo Bogza
aprox.
492 m
Scoala cu Clasele I-VIII NR. 3
aprox.
492 m
Complexul Scolar Cronos
aprox.
496 m
Scoala Generala Nr.3 "Nicolae Titulescu"
aprox.
525 m
Scoala de Muzica si Arte Plastice 1
aprox.
586 m
Scoala de Muzica si Arte Plastice nr. 1
aprox.
592 m
Gradinita nr.206
aprox.
600 m
Lexis School of Languages (en)
aprox.
606 m
Gradinita Little London
aprox.
652 m
Scoala Gimnaziala Petre Ispirescu, nr.171
aprox.
722 m
Scoala Gimnaziala Uruguay
aprox.
778 m
Gradinita de copii nr.97
aprox.
816 m
Gradinita Cami
aprox.
864 m
Gradinita nr. 248
aprox.
591 m
Gradinita nr. 112
aprox.
592 m
Gradinita cu Program Prelungit Nr. 248
aprox.
592 m
Gradinita nr. 206
aprox.
592 m
Gradinita 97
aprox.
822 m
Gradinita Dreams World
aprox.
886 m
Gradinita Zum-zum
aprox.
925 m
Gradinita nr. 2
aprox.
1083 m
Gradinita de copii nr. 285
aprox.
1085 m
Gradinita Madeleine
aprox.
1087 m
Gradinita nr. 222
aprox.
1122 m
Gradinita Casuta Piticilor
aprox.
1165 m
Gradinita MAPN nr.1
aprox.
1406 m
Gradinita de Copii Nr. 52
aprox.
1438 m
Gradinita cu program normal ""Ge Ce Pic Englishkinder"
aprox.
1479 m
Universitatea Politehnica Bucuresti
aprox.
912 m
Universitatea Politehnica - Polizu
aprox.
912 m
Facultatea de Chimie Industriala
aprox.
925 m
Corp A
aprox.
932 m
Facultatea de Inginerie Aerospatiala
aprox.
949 m
Facultatea de Inginerie Medicala
aprox.
954 m
Institutul Medico-Militar
aprox.
957 m
Facultatea de Filosofie, Universitatea din București
aprox.
1337 m
Universitatea Bucuresti - Facultatea de Filosofie
aprox.
1337 m
ICECHIM - Institutul National de Cercetare - Dezvoltare pentru Chimie si Petrochimie
aprox.
1366 m
Institutul de chimie Organica
aprox.
1390 m
ANEFS (en)
aprox.
1543 m
Universitatea Nationala de Educatie Fizica si Sport
aprox.
1543 m
Institutul de Biodinamica
aprox.
1548 m
Facultatea de Biologie
aprox.
1599 m
Best Market 1
aprox.
218 m
Mega Image Titulescu 2
aprox.
287 m
Mega Image
aprox.
504 m
Kaufland
aprox.
569 m
IDM
aprox.
612 m
Mega Image
aprox.
770 m
Mega Image
aprox.
782 m
Ami Non-Stop
aprox.
818 m
Mega Image piata 1Mai Non-Stop
aprox.
829 m
Mega Image
aprox.
835 m
Mega Image
aprox.
874 m
CARREFOUR Express Mihalache
aprox.
953 m
Shop & Go - Mega Image
aprox.
1007 m
Carrefour Orhideea
aprox.
1103 m
Annabella
aprox.
1315 m
Intrarea in caminele C si D din grozavesti
aprox.
1223 m
Parcare
aprox.
313 m
Parcare
aprox.
362 m
Parcare
aprox.
506 m
Parcare
aprox.
567 m
Parcare
aprox.
572 m
Parcare
aprox.
580 m
Parcare
aprox.
589 m
Parcare
aprox.
607 m
Parcare
aprox.
623 m
Parcare
aprox.
633 m
Parcare
aprox.
660 m
Parcare
aprox.
686 m
Parcare
aprox.
686 m
Parcare Str. Turda
aprox.
759 m
Parcare
aprox.
837 m
Parc
aprox.
190 m
Parc
aprox.
326 m
Parculet
aprox.
504 m
Parc
aprox.
544 m
Parcul Regina Maria
aprox.
549 m
Parcul Regina Maria
aprox.
572 m
Parc
aprox.
595 m
Parc
aprox.
604 m
Parc
aprox.
604 m
Parc
aprox.
604 m
Parcul Duca
aprox.
733 m
Spațiu verde Gara de Nord
aprox.
874 m
Parc
aprox.
962 m
Parc
aprox.
962 m
Parc
aprox.
990 m
Teren sportiv
aprox.
1048 m
Stadionul Giulesti - Valentin Stanescu
aprox.
1082 m
Teren sportiv
aprox.
1088 m
Teren sportiv
aprox.
1225 m
Teren sportiv
aprox.
1284 m
Teren sportiv
aprox.
1403 m
Teren sportiv
aprox.
1442 m
Teren sportiv
aprox.
1458 m
Teren sportiv
aprox.
1576 m
Teren sportiv
aprox.
1721 m
FRR
aprox.
1750 m
Teren sportiv
aprox.
1759 m
Teren sportiv
aprox.
1761 m
Teren sportiv
aprox.
1761 m
Teren sportiv
aprox.
1848 m
Piața Aviatorilor
aprox.
1453 m
Piata Emil Cioran (Vergilius) (en)
aprox.
1689 m
Lile Farm
aprox.
195 m
HelpNet
aprox.
219 m
Farmacia Centrofarm
aprox.
326 m
Catena Farmacie
aprox.
399 m
Sorina
aprox.
530 m
Farmacia Centrofarm 55
aprox.
692 m
Hipocrat
aprox.
730 m
2 NA Farm
aprox.
777 m
Sensiblu
aprox.
800 m
Catena
aprox.
800 m
Pharma Part
aprox.
807 m
Farmacie
aprox.
810 m
MC Serv Tour
aprox.
814 m
Sensiblu
aprox.
816 m
Sensiblu Piata 1 Mai
aprox.
830 m
Neuroptics
aprox.
374 m
INGG "ANA ASLAN"
aprox.
555 m
Institutul de diabet Paulescu (en)
aprox.
577 m
Centrul De Boli Cardiovasculare Angiomedica
aprox.
577 m
Institutul de diabet Paulescu
aprox.
577 m
Pro Dent Expert
aprox.
762 m
Ama Optimex
aprox.
771 m
Institutul National de Hematologie Transfuzionala Prof. Dr. C.T.Nicolau (en)
aprox.
771 m
Spitalul Clinic "Sfânta Maria" (fost Grivița)
aprox.
781 m
Spitalul Sfanta Maria
aprox.
785 m
INHT C.T Nicolau
aprox.
795 m
maternitatea giulesti
aprox.
864 m
Spitalul Panait Sarbu
aprox.
864 m
Partea (corpul C si D) in consolidare a spitalului "Filantropia"(abandonate )
aprox.
873 m
Policlinica CFR
aprox.
883 m
Pizza Rock'n'Roll
aprox.
113 m
Chianti Cafe (en)
aprox.
199 m
Casa Satya
aprox.
464 m
Fabio Pizza
aprox.
540 m
Restaurant Ginger
aprox.
577 m
sailor's (en)
aprox.
743 m
KFC Gara de Nord
aprox.
775 m
Restaurant Don Taco (en)
aprox.
776 m
Don Taco
aprox.
802 m
Shaormeria "La Haleala" (en)
aprox.
813 m
La Haleala
aprox.
819 m
Shaorma Non-Stop
aprox.
819 m
PHD by Pizza Hut MIHALACHE 021.210.10.10
aprox.
826 m
Subway Gara de Nord
aprox.
837 m
McDonald's
aprox.
837 m
The Place
aprox.
539 m
The Dubliner
aprox.
596 m
Le Cafe Inmedio
aprox.
1226 m
Lucky Poin
aprox.
1237 m
Filos Pub
aprox.
1262 m
Roxy Pub
aprox.
1447 m
Club Piranha
aprox.
1800 m
Quantic Pub
aprox.
1918 m
Doncafe Brasserie
aprox.
1941 m
CAFEA - La Haig Keskerian
aprox.
666 m
Seneca AntiCafe
aprox.
881 m
Gloria Jean's
aprox.
1004 m
Starbucks
aprox.
1016 m
Cafe Antipa
aprox.
1139 m
Sufrageria cu Jocuri
aprox.
1183 m
Meron Coffee
aprox.
1220 m
Ramayana Cafe
aprox.
1399 m
Admiral Cafe
aprox.
1415 m
French Bakery
aprox.
1455 m
Venchi 1878
aprox.
1504 m
J'ai Bistrot
aprox.
1589 m
Caffe Bordo
aprox.
1651 m
Cafe Centro
aprox.
1918 m
Bouche Bee
aprox.
1990 m
Clubul Taranului
aprox.
1043 m
Bar Adesim
aprox.
1314 m
El Bistro
aprox.
1540 m
Rock'n'Regie
aprox.
1694 m
Zodiac
aprox.
1703 m
Stuf Vama Veche
aprox.
1856 m
Piraeus Bank Romania - Agentia Titulescu
aprox.
258 m
BCR Grivita
aprox.
364 m
LEUMI Bank
aprox.
364 m
BCR
aprox.
364 m
ING Titulescu
aprox.
365 m
Garanti Bank
aprox.
373 m
Raiffeisen Bank
aprox.
604 m
Banca Romaneasca
aprox.
674 m
Banca Romaneasca
aprox.
682 m
Banca Romaneasca
aprox.
682 m
BCR
aprox.
682 m
BRD
aprox.
773 m
Banca Transilvania - Ag. 1 Mai
aprox.
777 m
BRD Bank
aprox.
784 m
UniCredit Bank - Ag. Gara de Nord
aprox.
786 m
Zona 1 Mai dispune nu doar de o poziție privilegiată față de centrul Capitalei, dar este și conectată cu alte cartiere ale orașului prin diverse mijloace de transport în comun. Poți să iei metroul de la stațiile aflate de-a lungul Căii Grivița, mai exact 1 Mai, Grivița și Basarab. Toate acestea se află pe Magistrala M4 care leagă Gara de Nord de zona Străulești. Astfel, vei ajunge de la stația Basarab la Piața Victoriei chiar și în 5 minute. Iar în zona Eroilor în circa 10 minute. Alte mijloace de transport în comun la care ai putea să apelezi dacă te muți în zona 1 Mai sunt tramvaiul 42, care leagă Piața Presei de Gara de Nord și tramvaiul 41, care ajunge în Drumul Taberei și în Ghencea. Consultă harta pentru a vedea care sunt cele mai apropiate stații de locuința de care ești interesat.
Una dintre principalele unități de învățământ din zona 1 Mai este Colegiul Național "Ion Neculce". Acesta este amplasat în apropierea Cimitirului evreiesc Filantropia. Colegiul poate fi potrivit dacă îți dorești ca încă din clasa a V-a copilul tău să învețe intensiv o limbă străină, având în vedere că acesta dispune de clase cu program intensiv în limba germană și italiană. Găsești pe hartă și alte unități de învățământ aflate în zona 1 Mai și în vecinătatea acesteia.
Ești interesat de o locuință în zona 1 Mai și te gândești unde ai putea să-ți faci cumpărăturile odată ce te muți acolo? Vei avea în zonă Piața Ion Mihalache și în apropiere Piața Domenii. Poți să ajungi destul de ușor la magazinele Kaufland sau Penny de pe Bulevardul Bucureștii Noi, iar cu mașina ajungi în câteva minute la complexul comercial Colosseum Retail Park de pe Șoseaua Chitilei. Cele mai apropiate mall-uri vor fi AFI Cotroceni, Băneasa Shopping City sau Promenada. Distanța pe care va trebui să o parcurgi pentru a ajunge la acestea va fi destul de mare, motiv pentru care vei merge la ele doar cu mașina. Află unde îți vei putea face cumpărăturile dacă te muți în zona 1 Mai consultând harta.
Dacă ai mașină sau te gândești să îți iei carnetul în curând și să nu mai circuli cu mijloacele de transport în comun, atunci trebuie să știi că traficul rutier în zona 1 Mai este concentrat pe marile artere de circulație, precum bulevardele Ion Mihalache și Banu Manta, Calea Grivița și Șoseaua Nicolae Titulescu. La marginea acestei zone se află, totodată, Pasajul Basarab care unește Sectorul 1 de Sectorul 6 și face parte din inelul interior de circulație al Bucureștiului, dar și Podul Grant care leagă Bulevardul Ion Mihalache de cartierul Crângași. La orele de vârf, traficul este de multe ori îngreunat. Îți recomandăm, totodată, să verifici dacă poți închiria un loc de parcare pentru mașina ta în apropierea locuinței de care ești interesat. Pentru a face acest lucru trebuie să te adresezi Serviciului Parcaje din cadrul ADP Sector 1. Consultă harta și află unde sunt localizate principalele parcări din zonă.
Dacă alegi să te muți în zona 1 Mai vei avea relativ aproape Parcul Regele Mihai I al României (fostul Herăstrău). Aici te vei putea plimba alături de familie în weekend-uri sau vei putea petrece câteva ore la terasă cu prietenii. Un alt parc aflat în vecinătatea acestei zone este Kiseleff, iar lângă el găsești trei muzee importante din Capitală - Antipa, Muzeul Țăranului Român și Muzeul de Geologie. Poți face aici o vizită educativă alături de copilul tău. Și Parcul Bazilescu se află în apropiere. Poți să ajungi rapid la el cu troleibuzul 97. Nici Centrul Expozițional Romexpo, unde sunt organizate periodic diferite concerte, expoziții și târguri, nu se va afla departe de noua ta locuință. O plimbare cu bicicleta în zona Parcului Regele Mihai I al României poate fi o altă variantă bună de relaxare în timpul liber. Ajungi destul de repede și pe Calea Victoriei. Și aici ai o pistă specială pentru bicicliști, dar poți să faci un popas și la una dintre cafenelele din zonă. Dacă preferi să-ți petreci ziua la cumpărături, atunci vei ajunge cu mașina în câteva minute la mall-ul Băneasa Shopping City. Consultă harta și află ce alte opțiuni de petrecere a timpului liber vei avea la dispoziție, dacă te muți în zona 1 Mai.
În zona 1 Mai și în apropierea acesteia ai la dispoziție mai multe unități sanitare la care poți apela. Amintim în acest sens Spitalul Clinic Sfânta Maria, de pe Bulevardul Ion Mihalache, spitalele Elias și CF 2 din zona Domenii și MedLife Life Memorial Hospital de pe Calea Griviței. Găsești pe hartă și alte clinici private la care ai acces în împrejurimi.
Găsești câteva restaurante pe Bulevardul Ion Mihalache și în apropierea Parcului Regele Mihai I, în special în Piața Charles de Gaulle. Ajungi destul de repede și în Piața Victoriei unde ai la dispoziție câteva restaurante de tip fast food - McDonald"™s, Subway, Springtime - și două cafenele Starbucks. Dacă pornești apoi pe Calea Victoriei ai la dispoziție numeroase localuri, inclusiv terase. Cu mașina poți să ajungi rapid și la mall-ul Băneasa Shopping CIty unde ai la dispoziție numeroase restaurante, fast food-uri, cafenele și cofetării. Aruncă o privire pe hartă și vezi unde poți lua masa în oraș, dacă te muți în zona 1 Mai.
În zona intersecției dintre Bulevardul Ion Mihalache și Calea Griviței găsești mai multe bancomate - OTP Ban, BRD, BCR. Alte sucursale bancare și ATM-uri sunt disponibile pe Bulevardul Ion Mihalache și în zona Piața Victoriei. Consultă harta. Află ce alte opțiuni ai în apropierea casei.
Înainte să pleci...
Ești sigur că ai văzut și aceste proprietăți?
3.000.000 €
București, Colentina
1.762 mp utili
Centru comercial
3E
795.000 €
București, Vitan
420 mp utili
Centru comercial
1.500.000 €
București, Arcul de Triumf
448 mp utili
Centru comercial
1.155.000 €
București, P-ța Victoriei
670 mp utili
Centru comercial
4E
1.075.000 €
București, Sisești
432,27 mp utili
Bloc de apartamente
1.360.000 €
București, Berceni
277,24 mp utili
Bloc de apartamente
11E
Creează alertă
Salvează căutarea ca să primești pe email ultimele anunțuri publicate
Spații comerciale de vânzare în zona Titulescu, Sector 1
Cere detalii prin email
*
*
*
*
Detaliile tale de contact vor fi partajate cu Golden Buzz