R.E.A. Imobiliare va ofera spre vanzare un spatiu comercial situat in zona Mosilor/Eminescu.
Spatiul comercial este construit in anul 2008 si se poate preta la orice tip de afacere - clinica medicala, banca, notariat, supermarket, cabinet avocatura.
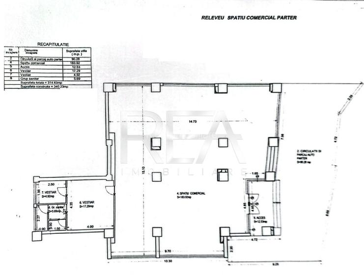
Se afla la parterul unui bloc de apartamente si detine o suprafata totala de 314 mp, din care spatiul este de 224 mp, iar 90 mp sunt reprezentati de parcare proprietate privata.
Compartimentare: 9 camere si 4 grupuri sanitare
Confortul termic este asigurat prin centrala proprie.
Exista posibilitatea folosirii spatiului drept clinica stomatologica, in acest caz, pretul se stabileste prin negociere.
Acces facil la mijloacele de transport in comun: 10-12 minute pana la metrou.
In imediata apropiere se afla puncte comerciale, bancare, farmacii, unitati medicale, scoli si zone de divertisment.
Se accepta toate modalitatile de plata. Informatiile tehnice au caracter orientativ, fiind preluate de la proprietar.
Comision standard, valabil doar la cumparare.
Daca sunteti in cautarea unei clinici stomatologice/spatiu comercial bine compartimentat in zona Mosilor/Eminescu, aceasta proprietate reprezinta o oportunitate excelenta!
Pentru mai multe detalii si vizionari, nu ezitati sa ne contactati, specificand codul P10083.
Nr grupuri sanitare: 4
Suprafata construita: 268 mp
Nr incaperi: 9
Utilitati - Sistem incalzire (Centrala proprie,Calorifere); Climatizare (Aer conditionat); Utilitati generale (Curent,Apa,Canalizare,Gaz)
Finisaje - Izolatii termice (Bloc izolat termic); Podele (Gresie,Parchet)
Dotari - Contorizare (Apometre,Contor gaz); Dotari imobil (Interfon)
pret vanzare: 870000
moneda vanzare: EUR
Disponibilitate proprietate: imediat
Sediul central - Timișoara
Bulevardul Victor Babeș nr. 2, 300230, Timișoara, România
Tel: +40.374.40.44.98 / Fax: +40.256.401.179
Email: suport@imobiliare.ro
Luni - Vineri 08:00 - 20:00
Punct de lucru - București: Iride Business Park, Bld. Dimitrie
Pompeiu 9-9A, Clădirea B2B,
020335, Sector 2, București, România
CONTACT
Sediul central - Timișoara
Bulevardul Victor Babeș nr. 2, 300230, Timișoara, România
Tel: +40.374.40.44.98 / Fax: +40.256.401.179
Email: suport@imobiliare.ro
Luni - Vineri 08:00 - 20:00
Punct de lucru - București: Iride Business Park, Bld. Dimitrie
Pompeiu 9-9A, Clădirea B2B,
020335, Sector 2, București, România
Scoala cu clasele I-VIII, Nr. 73 Barbu Stefanescu Delavrancea
aprox.
539 m
Colegiul National "Matei Basarab"
aprox.
552 m
Scoala Ajutatoare nr. 1
aprox.
581 m
Liceul Economic nr.3. A.D. Xenopol
aprox.
585 m
Liceul Lauder-Reut
aprox.
614 m
Lauder Reut School Complex (en)
aprox.
617 m
Centrul Educational IBSEN
aprox.
624 m
Colegiul National Bilingv "George Cosbuc"
aprox.
633 m
Grup Școlar "Dragomir Hurmuzescu"
aprox.
646 m
Facultatea de Stiinte Politice
aprox.
340 m
Universitatea din Bucuresti - Facultatea de Stiinte Politice
aprox.
348 m
Institutul Bancar Român
aprox.
935 m
Universitatea Hyperion (en)
aprox.
937 m
Universitatea Hyperion
aprox.
945 m
Facultatea de Chimie
aprox.
988 m
Facultatea de Farmacie
aprox.
1004 m
Facultatea de Farmacie/Pharmacy Faculty
aprox.
1011 m
Facultatea de litere (en)
aprox.
1045 m
Facultatea de Limbi si Literaturi Straine
aprox.
1055 m
Facultatea de Istorie
aprox.
1083 m
Facultatea de Instalatii (en)
aprox.
1084 m
UAUIM -Universitatea de Arhitectura si Urbanism Ion Mincu
aprox.
1091 m
Facultatea de Stiinte
aprox.
1122 m
Facultatea de Matematica-Informatica
aprox.
1140 m
Gradinita Magica
aprox.
453 m
Gradinita
aprox.
711 m
Gradinita nr.4 "Lizuca"
aprox.
848 m
Gradinita Waldorf
aprox.
880 m
Gradinita numarul 257
aprox.
1008 m
Amalia's Kindergarten (en)
aprox.
1009 m
Gradinita numarul 8
aprox.
1047 m
Gradinita nr.203 (fosta Clementa)
aprox.
1117 m
Gradinita nr. 203 program prelungit
aprox.
1143 m
Montessori Kindergarden of Bucharest
aprox.
1191 m
Gradinita numarul 133
aprox.
1326 m
Gradinita Ioanid
aprox.
1431 m
Ioanid
aprox.
1450 m
Gradinita Barba Cot
aprox.
1497 m
Cresa Micii Poznasi
aprox.
1505 m
Mega Image Paleologu
aprox.
302 m
Mega Image - Hala Traian
aprox.
553 m
Supermarket
aprox.
643 m
Shop & Go
aprox.
746 m
Magazin Mixt
aprox.
747 m
Km 0
aprox.
891 m
BILLA - Cocor
aprox.
916 m
Cocor
aprox.
916 m
Carrefour Unirii
aprox.
929 m
Carrefour Unirii Non-Stop
aprox.
945 m
Mega Image
aprox.
996 m
OK Non-stop Supermarket (en)
aprox.
1004 m
OK Non-Stop
aprox.
1004 m
Mega Image
aprox.
1060 m
Pravalia Maestrului
aprox.
1062 m
Bucharest, Calea Vitan nr. 8, Bl V51, near VITAN Mall
aprox.
1621 m
Parcare
aprox.
302 m
Parcare
aprox.
315 m
Parcare
aprox.
336 m
Parcare
aprox.
418 m
Parcare
aprox.
497 m
Parcare
aprox.
507 m
Parcare
aprox.
520 m
Parcare
aprox.
527 m
Parcare
aprox.
558 m
Parcare
aprox.
580 m
Parcare
aprox.
584 m
Parcare
aprox.
592 m
Parcare
aprox.
603 m
Parcare
aprox.
609 m
Parcare
aprox.
609 m
Parcul Sf. Stefan
aprox.
204 m
Piata Sfantul Stefan
aprox.
204 m
Parc
aprox.
319 m
Parc
aprox.
324 m
Parcul Popa Soare
aprox.
325 m
Parcul Izvorul Rece
aprox.
325 m
Parc
aprox.
385 m
Parcul Izvorul Rece
aprox.
402 m
Parcul Izvorul Rece
aprox.
402 m
Parc
aprox.
404 m
Parc
aprox.
436 m
Spatiu verde
aprox.
616 m
Parc
aprox.
706 m
Parc
aprox.
757 m
Parc
aprox.
771 m
Piata Latina
aprox.
330 m
Piata Rosetti
aprox.
613 m
Piata Universitatii
aprox.
915 m
Piata Timpului
aprox.
919 m
Piata Roma
aprox.
932 m
Piața Sfântul Anton
aprox.
1067 m
Piața Drapelului (Tricolorului)
aprox.
1288 m
Piata Revolutiei
aprox.
1383 m
Piata Bibescu
aprox.
1466 m
Piata Natiunilor Unite
aprox.
1527 m
Piata Bucur
aprox.
1588 m
Piata Iancului
aprox.
1683 m
Piata Bucur Obor
aprox.
1855 m
Piața Romană
aprox.
1920 m
Piața Constituției
aprox.
1973 m
Teren sportiv
aprox.
531 m
Teren sportiv
aprox.
561 m
Teren sportiv
aprox.
1448 m
Teren sportiv
aprox.
1856 m
ProctoMed
aprox.
253 m
Cabinet stomatologic (en)
aprox.
255 m
INGG Ana Aslan Spatarului nr. 15 (en)
aprox.
434 m
WORLD CLINIC - O viata fara alergii ! (en)
aprox.
438 m
Art Implant
aprox.
544 m
Medident Dental X-ray
aprox.
596 m
MediDent
aprox.
613 m
Clinica de Stomatologie
aprox.
706 m
Clinica Sentisan. .sentisan.ro (en)
aprox.
718 m
Spitalul Prof. Dr. C-Tin Angelescu
aprox.
763 m
Spitalul Prof. Dr. C. Angelescu
aprox.
775 m
Spectrum Clinique - Clinica de Oftalmologie
aprox.
791 m
Spitalul Colțea
aprox.
814 m
Spitalul Caritas (en)
aprox.
844 m
Spitalul de ortopedie "Foisorul de foc"
aprox.
867 m
Farmacia 2NA
aprox.
407 m
Pharma Plant
aprox.
565 m
Farmacia Mea
aprox.
631 m
Farmacia Carmen
aprox.
685 m
Farmacon CO Impex
aprox.
706 m
HelpNet
aprox.
718 m
Simidon
aprox.
747 m
Sensiblu
aprox.
756 m
Reteta
aprox.
756 m
General Smart Farm
aprox.
816 m
Farmacia Tarsis Impex
aprox.
847 m
Farmacia Dona
aprox.
849 m
Farmacia Artafarm
aprox.
852 m
Farmacia Coltea
aprox.
901 m
Sensiblu
aprox.
910 m
Hobby Cafe
aprox.
89 m
Carla Caffe
aprox.
280 m
Lente Arcului
aprox.
418 m
Art Caffe
aprox.
539 m
The Living Room
aprox.
592 m
T-zero
aprox.
636 m
T-zone
aprox.
636 m
Adior Cafe lounge
aprox.
637 m
Cafe Lautrec
aprox.
775 m
ART Cafe
aprox.
813 m
Iguana Cafe
aprox.
929 m
Tucano Cofee
aprox.
931 m
DDB caffe
aprox.
952 m
Bernschutz and Co
aprox.
956 m
Gio Cafe
aprox.
990 m
Hobby Caffe (en)
aprox.
109 m
Restaurant Madame Butterfly (en)
aprox.
127 m
Urbanesc
aprox.
127 m
Simbio
aprox.
169 m
Restaurantul Chez Marlen (en)
aprox.
172 m
Trattoria Roma Mantuleasa
aprox.
195 m
Mandala Club (en)
aprox.
206 m
Il Re Del Mare
aprox.
221 m
Restaurant Angelique - .arestaurant.ro
aprox.
234 m
Al Macaronaro
aprox.
247 m
La historia
aprox.
254 m
Xanadu restaurant (en)
aprox.
267 m
Restaurant xanada
aprox.
280 m
Vilo's
aprox.
282 m
Hotel-Restaurant Vilo's 4*
aprox.
290 m
Le Boutique Food Concept Store
aprox.
241 m
La Scena
aprox.
279 m
Club Surubelnita
aprox.
471 m
Bluzz
aprox.
528 m
Manasia Hub
aprox.
685 m
Have a Cigar
aprox.
715 m
Terasa Rustica Foisor
aprox.
827 m
Beraria Berestoika
aprox.
841 m
Kulturhaus
aprox.
858 m
Smart's Pub & Bistro
aprox.
931 m
Clock`s
aprox.
941 m
Pebeo
aprox.
980 m
Hanul cu Tei
aprox.
981 m
Mojo
aprox.
998 m
Club A
aprox.
1005 m
Geo Bar
aprox.
345 m
Macaz Bar Teatru Coop
aprox.
463 m
Epic
aprox.
598 m
La Pirati
aprox.
606 m
Underworld
aprox.
614 m
Dianei Patru
aprox.
641 m
BarFly
aprox.
728 m
Voltage Bar
aprox.
768 m
Antic Bar
aprox.
775 m
RSS Pub
aprox.
829 m
Trei Betivi
aprox.
832 m
Club Guesthouse
aprox.
911 m
Galliano Club
aprox.
929 m
Que Pasa
aprox.
956 m
Bar
aprox.
983 m
Piraeus Bank Romania - Sucursala Municipiului Bucuresti
aprox.
409 m
BRD Corbeni
aprox.
455 m
ATM - Raiffeisen Bank - Asirom
aprox.
463 m
Libra Bank Sediul Central
aprox.
475 m
Libra Bank - Sediul Central
aprox.
486 m
Banca Romaneasca
aprox.
507 m
Banca Romaneasca
aprox.
507 m
Piraeus Bank
aprox.
543 m
Banca Transilvania
aprox.
543 m
Banca Transilvania - Ag. Nerva Traian
aprox.
543 m
Intesa Sanpaolo Bank (en)
aprox.
553 m
Raiffeisen Bank
aprox.
569 m
BCR
aprox.
598 m
BRD Rosetti
aprox.
609 m
BCR
aprox.
617 m
Dacă te vei muta în zona Moșilor - Foișorul de Foc - Traian, vei avea la dispoziție mai multe mijloace de transport în comun care te vor ajuta să te deplasezi prin oraș. Printre acestea se numără tramvaiul 21 al cărui traseu traversează Calea Moșilor și ajunge până la Piața Sf. Vineri, troleibuzul 66 cu care poți ajunge în zona Fundeni și autobuzul 330 util dacă vrei să mergi până la Piața Presei. Cea mai apropiată stație de metrou pe care o vei avea la dispoziție este Obor, de pe magistrala M1 Dristor - Pantelimon. De aici ajungi în 5 minute la Piața Victoriei și în mai puțin de 10 minute la Gara de Nord. De pe Bulevardul Pache Protopopescu poți să iei autobuzul 311 și să ajungi imediat la Piața Rosetti, aflată la doi pași de km 0 al orașului. Cu troleibuzul 70 poți să ajungi rapid la Parcul Cișmigiu, iar troleibuzul 90 face legătura dintre această zonă și Drumul Taberei. Consultă harta pentru a afla unde găsești cele mai apropiate stații de viitoarea ta locuință.
În zona Pache Protopopescu găsești unul dintre cele mai bune licee din Capitală, Colegiul Național "Mihai Viteazul", dar și școli de renume, precum Școala Gimnazială nr. 52 Iancului. Tot aici se află și Facultatea de Inginerie a Instalațiilor și Universitatea Națională de Artă Teatrală și Cinematografică "Ion Luca Caragiale". Ai în apropiere Colegiul Național "Iulia Hașdeu", Liceul Teoretic "Ady Endre", Colegiul Economic "A.D. Xenopol" și Colegiul Național Bilingv "George Coșbuc". Mai multe unități de învățământ, pe hartă.
Găsești diverse magazine în apropiere, pe Calea Moșilor. Ajungi destul de repede la magazinul Bucur Obor și la Piața Obor. În imediata vecinătate a acestora se află și mall-ul Veranda, alături de un hipermarket Carrefour și de un magazin Kaufland. Poți să ajungi cu mașina destul de ușor la Unirea Shopping Center sau la București Mall. Vrei mai multe opțiuni? Consultă harta și găsește cel mai apropiat magazin de viitoarea ta locuință.
Preferi să te deplasezi prin oraș cu propria mașină? Atunci îți aducem în atenție faptul că vei întâlni trafic aglomerat, la orele de vârf, pe Calea Moșilor, în special la intersecția dintre aceasta, Bulevardul Dacia și străzile Mihai Eminescu și Traian. Pentru a afla dacă poți închiria un loc de parcare în apropierea locuinței trebuie să apelezi la Birouri Parcări din cadrul ADP Sector 2. Dacă te muți la casă, atunci vei parca cel mai probabil mașina fie în curte, fie pe marginea trotuarului. Există și unele proiecte boutique care pun la dispoziția rezidenților locuri de parcare. Consultă harta pentru poziționarea principalelor parcări din împrejurimi.
Dacă te vei muta în zona Moșilor - Foișorul de Foc - Traian vei avea la doi pași de casă mai multe baruri și restaurante. În plus, te vei afla în apropiere de centrul orașului, unde găsești localuri cu specific variat sau poți merge la un spectacol pus în scenă de Teatrul Național "Ion Luca Caragiale". Cel mai apropiat parc de viitoarea ta locuință va fi Parcul Obor, situat în fața Primăriei Sectorului, sau micul parc Izvorul Rece aflat la intersecția dintre Bulevardul Pache Protopopescu și Bulevardul Ferdinand I. Vei ajunge destul de rapid și la Parcul Grădina Icoanei sau la Parcul Ioanid. În vecinătatea lor se organizează periodic diferite evenimente, cel mai notabil dintre acestea fiind Street Delivery. Alte evenimente culturale se organizează pe Strada Armenească și pe Strada Mătăsari, un fost "cartier roșu" al Capitalei. Dacă ai nevoie de o rundă de shopping, atunci poți să mergi la mall-ul Veranda. Ai și alte activități la dispoziție aici. Află ce alte opțiuni de petrecere a timpului liber ai dacă locuiești în această zonă.
Din zona Pache Protopopescu ajungi rapid la Spitalul de Urgență "Profesor Doctor Dimitrie Gerota" și la Spitalul Clinic de Ortopedie, Traumatologie și TBC Osteoarticular "Foișor". Cu mașina ajungi în câteva minute la Spitalul Clinic de Copii "Dr. Victor Gomoiu" și la Spitalul Clinic Colentina. Vezi și ce clinici private ai în apropierea casei. Consultă harta.
Găsești mai multe restaurante, terase și cafenele în zonă și în împrejurimi. Chiar pe Bulevardul Pache Protopopescu se află Hanu"™ Berarilor Casa Elena Lupescu, iar la Piața Iancului ai restaurantul Intermacedonia. Fast food-uri găsești în apropiere de Colegiul Național "Iulia Hașdeu" și în zona Obor. Alte restaurante în mall-ul Veranda. Din această zonă ajungi, totodată, rapid la Piața Universității, unde ai acces la terasele și restaurantele din Centrul Vechi. Consultă harta pentru mai multe opțiuni în apropierea casei tale.
Sucursale bancare și ATM-uri pot fi găsite pe Șoseaua Mihai Bravu. Consultă harta pentru mai multe informații.
Înainte să pleci...
Ești sigur că ai văzut și aceste proprietăți?
530.000 €
București, Victoriei
169,34 mp utili
Bloc de apartamente
6E
722.707 €
București, Cotroceni
177 mp utili
Spațiu stradal
12E
450.000 €
București, Berceni
134,8 mp utili
Bloc de apartamente
5E
795.000 €
București, Vitan
420 mp utili
Centru comercial
365.000 €
București, Timpuri Noi
147 mp utili
Bloc de apartamente
525.000 €
București, Parcul Carol
233 mp utili
1E
2010
Creează alertă
Salvează căutarea ca să primești pe email ultimele anunțuri publicate
Spații comerciale de vânzare în zona Moșilor, Sector 2
Cere detalii prin email
*
*
*
*
Detaliile tale de contact vor fi partajate cu R.e.a. Imobiliare