Spatiu comercial de 220 mp în zona Nerva Traian in cladire nou construita 2025 – ideal pentru restaurant, clinica sau showroom
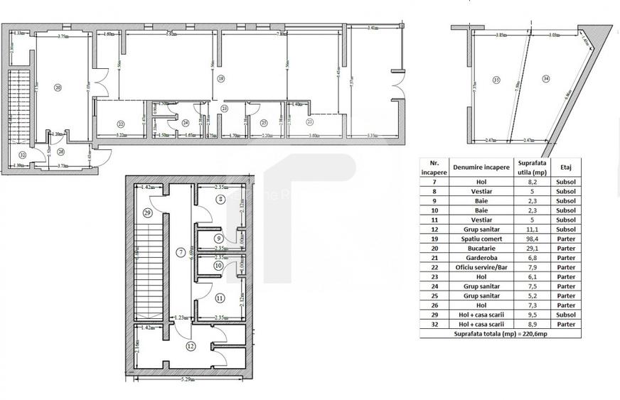
Va prezentam spre vânzare un spatiu comercial generos cu o suprafata totala utila de 220,6 mp, situat în zona ultracentrala Nerva Traian, pe o strada linistita, cu acces facil la mijloace de transport, sedii de birouri si zone rezidentiale premium.
Compartimentare eficienta:
Parter – 130,7 mp utili:
Spatiu principal de vânzare/comercial: 98,4 mp (încaperea 19)
Bucatarie complet separata: 7,4 mp
Garderoba: 6,8 mp
Oficiu servire/bar: 7,9 mp
Grupuri sanitare (dublu acces): 12,2 mp
Subsol – 34,6 mp utili:
Hol acces si vestiare personal
2 bai si un grup sanitar suplimentar (11,1 mp)
Acces dublu – intrare principala si secundara
Holuri + case scarii: 15,3 mp
Ideal pentru:
Restaurante/cafenele (flux logic între spatiu de servire – oficiu – bucatarie)
Clinica medicala/stomatologica (compartimentare versatila si grupuri sanitare multiple)
Showroom cu back-office/depozitare în subsol
Sediu firma, co-working, beauty center
Caracteristici tehnice:
Cladire cu regim de înaltime Susol + Parter + 6 etaje
Spatiu vitrat pe întreaga lungime a fatadei (expunere excelenta)
Înaltime generoasa în zona comerciala
Acces pietonal direct din strada
Toate utilitatile disponibile (inclusiv gaze, 380V daca este necesar)
Compartimentare ce permite adaptare usoara în functie de destinatie
Localizare:
Zona Nerva Traian, la 5 minute de Piata Unirii si Timpuri Noi
Acces rapid la Splaiul Unirii, Bd. Octavian Goga, Bd. Decebal
Zona cu trafic pietonal, birouri si blocuri locuite permanent
Se pot achizitona separat doua locuri de parcare.
Pretul este 2500 euro per mp plus TVA si se preda la GRI
Nr grupuri sanitare: 5
Suprafata construita: 250 mp
Nr garaje: 2
Nr incaperi: 3
Utilitati - Sistem incalzire (Centrala proprie); Utilitati generale (Curent,Curent trifazic,Apa,Canalizare,Gaz)
Finisaje - Izolatii termice (Bloc izolat termic); Ferestre cu geam termopan (PVC)
Dotari - Contorizare (Apometre,Contor gaz)
pret vanzare: 550000
moneda vanzare: EUR
Disponibilitate proprietate: imediat
Sediul central - Timișoara
Bulevardul Victor Babeș nr. 2, 300230, Timișoara, România
Tel: +40.374.40.44.98 / Fax: +40.256.401.179
Email: suport@imobiliare.ro
Luni - Vineri 08:00 - 20:00
Punct de lucru - București: Iride Business Park, Bld. Dimitrie
Pompeiu 9-9A, Clădirea B2B,
020335, Sector 2, București, România
CONTACT
Sediul central - Timișoara
Bulevardul Victor Babeș nr. 2, 300230, Timișoara, România
Tel: +40.374.40.44.98 / Fax: +40.256.401.179
Email: suport@imobiliare.ro
Luni - Vineri 08:00 - 20:00
Punct de lucru - București: Iride Business Park, Bld. Dimitrie
Pompeiu 9-9A, Clădirea B2B,
020335, Sector 2, București, România
Gradinita (progr. prelungit) Aleea Borcea - Str. Ruginoasa
aprox.
827 m
Gradinita "Scufita Rosie"
aprox.
999 m
Gradinita Barba Cot
aprox.
1269 m
Gradinita de Copii nr.30 "Copiii soarelui
aprox.
1305 m
Gradinita cu program prelungit Copiii Soarelui
aprox.
1481 m
Cresa Micii Poznasi
aprox.
1535 m
Gradinita nr. 239
aprox.
1583 m
Gradinita Kogaion
aprox.
1611 m
Gradinita Era
aprox.
1692 m
Gradinita Prikindel
aprox.
1949 m
Gradinita nr.192, "Pisicile Aristocrate"
aprox.
1989 m
Gradinita nr. 192 (Pisicile aristocrate)
aprox.
1990 m
Universitatea Crestina "Dimitrie Cantemir"
aprox.
406 m
Universitatea Titu Maiorescu - Rectorat
aprox.
447 m
Universitatea Titu Maiorescu - Corp M
aprox.
448 m
Universitatea Nicolae Titulescu
aprox.
464 m
Universitatea "Nicolae Titulescu" - Bucuresti
aprox.
483 m
Universitatea "Titu Maiorescu"
aprox.
513 m
Universitatea Titu Maiorescu
aprox.
513 m
Institutul Bancar Român
aprox.
1474 m
Academia de Studii Economice
aprox.
1553 m
Academia de Studii Economice: Facultatea de Management - Administratie Publica
aprox.
1560 m
Facultatea de Teologie Ortodoxa
aprox.
1649 m
Universitatea Hyperion (en)
aprox.
1832 m
Universitatea Hyperion
aprox.
1835 m
Nerva Center
aprox.
382 m
Supermarket Fonzi
aprox.
458 m
MGV Green Expres
aprox.
478 m
Profi Non-Stop Vacaresti
aprox.
488 m
Supermarket Sinbad
aprox.
516 m
Vio-Flor Prodservicom
aprox.
517 m
Profi
aprox.
536 m
Shop & Go
aprox.
547 m
Penny Market
aprox.
547 m
Mega Image - Apahida
aprox.
563 m
Mega Image
aprox.
639 m
Bucuresti Mall
aprox.
726 m
Mega Image Bucuresti Mall
aprox.
728 m
Mega Image
aprox.
784 m
Lidl
aprox.
789 m
Bucharest, Calea Vitan nr. 8, Bl V51, near VITAN Mall
aprox.
666 m
Parcare
aprox.
229 m
Parcare
aprox.
429 m
Parcare
aprox.
454 m
Parcare
aprox.
550 m
Parcare
aprox.
581 m
Parcare
aprox.
587 m
Parcare
aprox.
611 m
Parcare
aprox.
613 m
Parcare
aprox.
653 m
Parcare
aprox.
663 m
Parcare
aprox.
694 m
Parcare
aprox.
741 m
Parcare
aprox.
756 m
Parcare
aprox.
759 m
Parcare
aprox.
762 m
Parculet (en)
aprox.
119 m
Parculet nou
aprox.
176 m
parculet
aprox.
286 m
Parculet si teren de joaca
aprox.
421 m
Parc
aprox.
448 m
Park (en)
aprox.
450 m
Parculet pentru copii
aprox.
540 m
Parc
aprox.
610 m
Parc
aprox.
618 m
Parc
aprox.
642 m
Parc
aprox.
651 m
Parcul Emil Garleanu
aprox.
656 m
Parcul Emil Garleanu
aprox.
667 m
parc
aprox.
668 m
Parc
aprox.
669 m
Teren sportiv
aprox.
502 m
Teren sportiv
aprox.
535 m
Teren sportiv
aprox.
557 m
Teren sportiv
aprox.
1117 m
Teren sportiv
aprox.
1159 m
Teren sportiv
aprox.
1162 m
Teren sportiv
aprox.
1163 m
Teren sportiv
aprox.
1181 m
Teren sportiv
aprox.
1200 m
Teren sportiv
aprox.
1281 m
Teren sportiv
aprox.
1302 m
Teren sportiv
aprox.
1303 m
Teren sportiv
aprox.
1326 m
Teren sportiv
aprox.
1380 m
Teren sportiv
aprox.
1447 m
Piata Bucur
aprox.
1040 m
Piata Bibescu
aprox.
1739 m
Piata Timpului
aprox.
1950 m
Piața Sfântul Anton
aprox.
1958 m
Plastic Surgery Clinic (en)
aprox.
238 m
Life Med
aprox.
624 m
SYNEVO
aprox.
625 m
Eurodent
aprox.
768 m
Policlinica vitan
aprox.
858 m
Medline
aprox.
882 m
Maternitatea Bucur
aprox.
1023 m
Biostom Bucuresti
aprox.
1099 m
Spital Veterinar
aprox.
1159 m
Clinica Polisano
aprox.
1181 m
Medicover (en)
aprox.
1189 m
Ponderas
aprox.
1208 m
Spitalul Caritas (en)
aprox.
1243 m
Doctor Anghel Medical Center
aprox.
1251 m
ROMAR
aprox.
1269 m
Farmacia Bucuresti Tehnoplus Farm
aprox.
476 m
Help Net
aprox.
516 m
Farmacia Belladonna 63
aprox.
611 m
Farmacie
aprox.
615 m
Leni Farm
aprox.
680 m
Centrofarm
aprox.
681 m
Vitan Farm Impex
aprox.
703 m
Sensiblu
aprox.
704 m
Orbit 93
aprox.
741 m
Catena
aprox.
786 m
Farmacia 50
aprox.
813 m
Farmacia Denis
aprox.
816 m
micaplant
aprox.
828 m
2na
aprox.
850 m
Farmacia Farmadex
aprox.
852 m
Cofetaria Opera
aprox.
77 m
Chinese Restaurant (en)
aprox.
123 m
Manasra
aprox.
379 m
Terasa Brandusa
aprox.
383 m
Adress
aprox.
387 m
Restaurant Premium Events
aprox.
388 m
Bistro
aprox.
397 m
Pane e Vino
aprox.
422 m
Foisorului Restaurant (en)
aprox.
432 m
La Machidoni
aprox.
432 m
Efes
aprox.
446 m
Amicii Restaurant (en)
aprox.
507 m
Pizza Zoom
aprox.
528 m
Creative Food
aprox.
544 m
Restaurant Sare si Piper
aprox.
551 m
Kaffa Pub
aprox.
105 m
The 1st Pub
aprox.
287 m
Roof
aprox.
737 m
Forno d'oro
aprox.
1205 m
Jukebox
aprox.
1223 m
Beraria Berestoika
aprox.
1259 m
The Temple
aprox.
1404 m
Pizzeria Classic
aprox.
1559 m
The Harp
aprox.
1597 m
Dristor Pub
aprox.
1655 m
Zvon
aprox.
1684 m
Carol Cafe
aprox.
1837 m
La Scena
aprox.
1858 m
Manasia Hub
aprox.
1925 m
Long Fong
aprox.
1941 m
Quartier
aprox.
498 m
Maroon Caffe
aprox.
594 m
Sfera caffe
aprox.
670 m
Kahve Dunyasi
aprox.
678 m
Cafe Boulevard
aprox.
796 m
Starbucks
aprox.
797 m
gloria jeans coffee
aprox.
830 m
Zebra Caffe
aprox.
855 m
Gio Cafe
aprox.
1155 m
High Class
aprox.
1157 m
La Trenulete
aprox.
1161 m
Miau
aprox.
1181 m
Puerto Cafe
aprox.
1199 m
Stretto Cofee
aprox.
1305 m
Habana Coffe
aprox.
1312 m
Pe baricade
aprox.
1293 m
Bar
aprox.
1406 m
BarFly
aprox.
1548 m
Nargila Grill&Bar
aprox.
1629 m
Club Guesthouse
aprox.
1961 m
Network Lounge
aprox.
1979 m
Vecchio
aprox.
1991 m
City Grill Covaci
aprox.
1994 m
Piraeus Bank
aprox.
397 m
Pireus Bank
aprox.
416 m
Banca Carpatica
aprox.
439 m
BRD Nerva Traian
aprox.
476 m
BCR Nerva Traian
aprox.
506 m
Raiffeisen Bank Nerva Traian
aprox.
524 m
Sucursala CEC Bank Timpuri Noi (en)
aprox.
532 m
BCR
aprox.
607 m
Raiffeisen Bank
aprox.
616 m
Raiffeisen Bank
aprox.
635 m
Raiffeisen Bank - Agentia Bucuresti Mall
aprox.
680 m
ING Nerva Traian
aprox.
698 m
ING Self Bank
aprox.
718 m
Banca Transilvania - Ag. Octavian Goga
aprox.
776 m
Vitan Center (en)
aprox.
777 m
Dacă te vei muta în această zonă, vei avea la dispoziție mai multe autobuze și tramvaie care te vor ajuta să te deplasezi către centrul orașului și nu numai. Printre acestea amintim tramvaiul 19 care oferă o legătură directă cu sud - estul Bucureștiului, tramvaiul 27 cu care te poți deplasa până la Piața Unirii și autobuzul 124 al cărui traseu ajunge în zona Eroilor. Cu autobuzul 133 ajungi rapid la Parcul Tineretului și la Gara Basarab. Vei avea, totodată, în apropierea viitoarei tale locuințe două stații de metrou - Timpuri Noi și Mihai Bravu. Ambele îți oferă posibilitatea de a lua trenuri care circulă atât pe magistrala 1 Dristor - Pantelimon, cât și pe magistrala 3 Preciziei - Anghel Saligny. Consultă harta și vezi care vor fi cele mai apropiate stații de viitoarea ta locuință.
Dacă te vei muta în zona Vitan Mall - Nerva Traian - Mihai Bravu, vei avea la doi pași de casă mai multe unități de învățământ. Printre acestea amintim Grădinița Brândușa de pe Strada Brândușelor, Școala Gimnazială nr. 84 situată lângă Complexul Comercial Prosper și Școala Gimnazială nr. 81 de pe Strada Nerva Traian. În apropierea stației de metrou Timpuri Noi se află sediile mai multor instituții private de învățământ superior. Este vorba despre Universitatea "Titu Maiorescu", Universitatea "Nicolae Titulescu" și despre Universitatea Creștină "Dimitrie Cantemir". Vezi ce hartă ce alte unități de învățământ există în zona Vitan Mall - Nerva Traian - Mihai Bravu.
Vrei să te muți în zona Vitan Mall - Nerva Traian - Mihai Bravu și te gândești deja unde îți vei putea face cumpărăturile? În primul rând, vei avea la dispoziție numeroase magazine de cartier, având în vedere faptul că multe dintre blocurile din această parte a orașului dispun de spații comerciale la parter. București Mall, primul complex comercial de acest tip din Capitală, poate fi o altă opțiune excelentă. Cu mașina ajungi destul de ușor și la mall-urile ParkLake și Sun Plaza. Vrei să cumperi legume și fructe proaspete? Atunci trebuie să știi că o piață este amplasată pe Strada Foișorului. Un magazin Lidl a fost deschis în zona Pasajului Mihai Bravu. În plus, în apropiere vei avea și Complexul Comercial Prosper și un magazin de bricolaj. În apropiere ai la dispoziție și o serie de magazine cu materiale de construcții sau finisaje. La doi pași de toate acestea găsești și un complex comercial ce include mai mulți retaileri, inclusiv două pet shop-uri. Ajungi destul de rapid și la hipermarketul Auchan Vitan și la Unirea Shopping Center. Află unde sunt localizate toate acestea de pe hartă.
De multe ori, la orele de vârf, vei întâmpina aglomerație în trafic pe Calea Vitan sau pe celelalte artere principale din această zonă, motiv pentru care este posibil să ai unele dificultăți în găsirea unui loc de parcare. Îți recomandăm, totodată, să apelezi la Direcția Generală de Impozite și Taxe Locale Sector 3 pentru a închiria un loc de parcare în apropierea locuinței tale. Dacă optezi pentru un apartament într-un ansamblu rezidențial nou, atunci discută direct cu dezvoltatorul și vezi ce ofertă îți pune la dispoziție. Astfel, te vei asigura că nu mai pierzi timpul seara căutând un loc de parcare. Consultă harta și află ce opțiuni ai în zona Vitan Mall - Nerva Traian - Mihai Bravu.
În zona Vitan Mall - Nerva Traian - Mihai Bravu vei avea la dispoziție câteva spații verzi de mici dimensiuni, amenajate cu locuri de joacă pentru copii, cel mai mare dintre acestea fiind Parcul Emil Gârleanu. Vei ajunge însă destul de rapid de aici la Parcul Alexandru Ioan Cuza (fostul IOR) sau la Parcul Tineretului. O altă variantă bună pentru cei care își doresc să facă o plimbare prin natură este o vizită în Parcul Natural Văcărești la care ajungi foarte ușor. Pe marginea deltei te poți plimba chiar și cu bicicleta. Multe dintre blocurile situate la principalele artere de circulație din această zonă dispun de spații comerciale la parter, într-unele dintre acestea fiind deschise restaurante și baruri. Pentru mai multă diversitate, vei avea la o aruncătură de băț Centrul Vechi al Bucureștiului. În zona Pasajului Mărășești vei putea merge la un spectacol pus în scenă de echipa Teatrului de Operetă și Musical "Ion Dacian". Preferi să te relaxezi la film? Un cinematograf este disponibil în București Mall - primul centru comercial de acest tip din oraș, situat pe Calea Vitan. O altă opțiune poate fi găsită în mall-ul ParkLake din zona Parcului Alexandru Ioan Cuza. Vezi ce alte alternative de petrecere a timpului liber vei avea dacă te muți în zona Vitan Mall - Nerva Traian - Mihai Bravu.
Principalele unități sanitare din această zonă sunt Policlinica Vitan Dudești și spitalul privat de oftalmologie Westeye Hospital. Unul dintre cele mai apropiate spitale de stat la care vei avea acces, dacă te vei muta aici, este Spitalul Clinic "Dr. Victor Babeș". O altă opțiune poate fi și Spitalul Clinic de Urgență "Sfântul Ioan" de la Șoseaua Vitan-Bârzești. O serie de unități medicale sunt disponibile și pe Șoseaua Berceni la care poți să ajungi în doar câteva minute cu mașina. Dacă preferi o clinică privată, atunci printre cele mai apropiate se numără clinica Regina Maria Mărășești sau Monza Metropolitan Hospital. Găsești pe harta de mai jos și farmaciile disponibile în zona Vitan Mall - Nerva Traian - Mihai Bravu.
Câteva restaurante găsești pe Strada Nerva Traian, iar pe Calea Vitan ai la dispoziție mai multe fast food-uri. Un food court cu restaurante destul de diverse găsești, de asemenea, la etaj în București Mall. Pentru pâine caldă, o gustare sau o prăjitură merită să încerci și brutăria Koksal aflată la doi pași de mall. Dacă ești grăbit, poți să mergi repede până la drive through-ul KFC de pe Șoseaua Mihai Bravu sau la restaurantul McDonald"™s din Dristor de unde poți să-ți comanzi, de asemenea, mâncarea direct din mașină. Alte food court-uri ai în apropiere la mall-urile ParkLake și Sun Plaza, dacă nu te deranjează să mergi câteva minute cu mașina. Ajungi extrem de repede din această zonă și în Centrul Vechi al orașului unde găsești restaurante și terase pentru toate gusturile. Vezi ce alte restaurante găsești în zona Vitan Mall - Nerva Traian - Mihai Bravu și în vecinătatea acesteia consultând harta.
Ai nevoie de o bancă sau de un ATM? Pe Strada Nerva Traian găsești un Libra Bank și o sucursală ING. În București Mall ai la dispoziție alte câteva opțiuni. Consultă harta pentru mai multe informații.
Înainte să pleci...
Ești sigur că ai văzut și aceste proprietăți?
710.580 €
București, Cotroceni
273,3 mp utili
Bloc de apartamente
10E
222.000 €
Județul Ilfov, Pantelimon
150 mp utili
Bloc de apartamente
2E
279.000 €
Județul Ilfov, Roșu
250 mp utili
Spațiu stradal
77.000 €
Județul Ilfov, Dudu
51,53 mp utili
Bloc de apartamente
5E
580.000 €
București, Vitan
430 mp utili
Bloc de apartamente
4E
849.800 €
București, Nerva Traian
281 mp utili
Bloc de apartamente
9E
Creează alertă
Salvează căutarea ca să primești pe email ultimele anunțuri publicate
Spații comerciale de vânzare în zona Nerva Traian, Sector 3
Cere detalii prin email
*
*
*
*
Detaliile tale de contact vor fi partajate cu Renet The Real Estate Network