6

Vitan | Stadion Olimpia | Spațiu comercial NOU | Ideal investiție | Sediu firmă

99.900 €

Vitan, București

Sup. utilă / mp. utili:
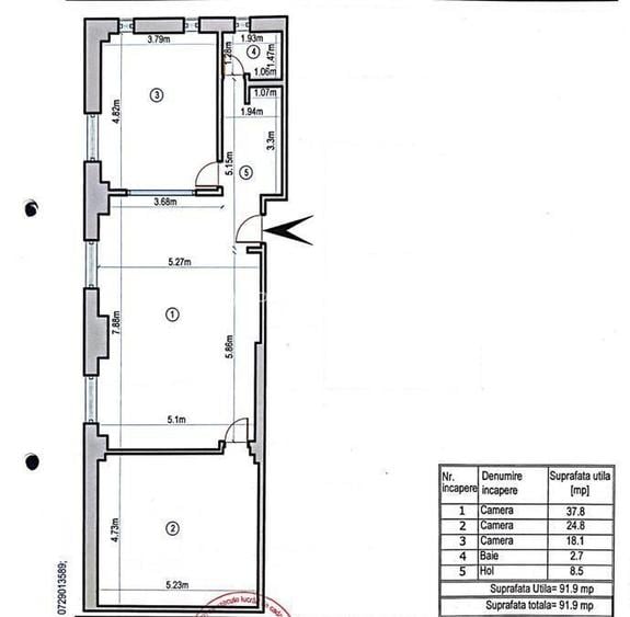
92 mp
Tip prop.:
Bloc de apartamente
Niv.:
4
An constr.:
2021 (Există)
  • • Exclusivitate
  • • Locație exactă

Descriere spațiu comercial

Complex Imobiliare vă propune spre vânzare acest spațiu comercial de 92 mp (suprafață utilă), situat la demisolul înalt al unui bloc nou (construcție 2021) de 4 etaje, situat în zona Vitan- Stadion Olimpia. • Amenajat recent cu finisaje de bună calitate; • Încălzire centralizată (centrală termică nouă); contorizare individuală; • Aer condiționat; • Spațiu ideal pentru investiție sau pentru desfașurarea de activități comerciale. În cazul cumpărării de către o persoană fizică se aplică TVA. În situația în care se tranzacționează între firme, TVA-ul va fi deductibil. Pentru detalii suplimentare și vizionări, vă stau la dispozitie.
Citește mai mult Citește mai puțin
Aer condiționat Căldură Modernizat

Detalii spațiu comercial

ID anunț: X8CU04016 Copiat! 275334327 Copiat!
Actualizat în: 13 Mai 2026
Tip tranzacție: De vânzare prin agent
Nume proprietate: Demisol înalt Voineasa
Regim înălțime: D+P+4E
Stadiu construcție: Există
Recomandare utilizare: Pentru investiție
Modalitate de plată: Cash sau Credit

Utilități

Utilități
Apă Canalizare Curent Gaze
Comision
2%

Certificat energetic:

Clasa energetică: A

Vecinătăți:

Stadion Olimpia, Metrou Mihai Bravu, Splaiul Unirii, Șoseaua Mihai Bravu

Puncte de interes

Mijloace transport
bus-station
Statia Uzitex, linia 223,124
Stații autobuz aprox. 253 m
bus-station
Statia Piscul Rachitei, linia 223,124
Stații autobuz aprox. 261 m
tram-station
Penes Curcanul
Stații tramvai aprox. 661 m
metro-station
Metrorex. Stația Mihai Bravu (M1) , (M3).
Stații metrou aprox. 700 m
Școală
school
Scoala nr.87
Școli aprox. 506 m
kindergarten
Gradinita nr. 255
Gradinițe aprox. 645 m
school
Grup scolar de constructii-montaj "Elie Radu"
Școli aprox. 761 m
university
Universitatea "Gheorghe Cristea"
Universități aprox. 800 m
Recreere
supermarket
Mega Image Lugojana
Supermarket aprox. 392 m
sports-ground
Teren sportiv
Terenuri sport aprox. 491 m
park
Parc
Parcuri aprox. 518 m
mall
Cora Sun Plaza
Mall aprox. 1537 m

Istoricul prețurilor

Acces la informații premium după autentificare
Login Gratuit

Proprietăți similare

Spațiu comercial, 30 mp în Drumul Taberei
95.000 €
București, Drumul Taberei
30 mp utili
Spațiu stradal
8E
Spațiu comercial, de 44.37 mp, în Eminescu
109.000 €
București, Eminescu
44,37 mp utili
Casă/Vilă
2E
Spațiu comercial, 47 mp în Brâncoveanu
105.000 €
București, Brâncoveanu
47 mp utili
Spațiu stradal
3E

Detalii de contact

COMPLEX IMOBILIARE

Augustin Poenaru Consilier Imobiliar

4.57(7 review-uri)

COMPLEX IMOBILIARE
PRO

Abonează-te la newsletter să fii primul care primește cele mai noi recomandări de proprietăți și sfaturi de la experți.

CONTACT

Creează alertă

Salvează căutarea ca să primești pe email ultimele anunțuri publicate

Spații comerciale de vânzare în zona Vitan, Sector 3