Bd.Metalurgiei, spatiu comercial 133 mp, zona Parc Tudor Arghezi

544.500 €

Berceni, București

Sup. utilă / mp. utili:
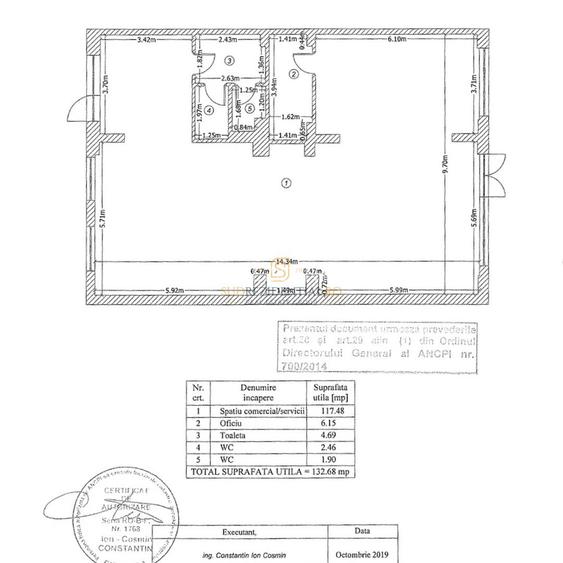
132,68 mp
Tip prop.:
Bloc de apartamente
Niv.:
8
An constr.:
2019 (Există)
  • • Exclusivitate
  • • Locație exactă

Descriere spațiu comercial

Spatiu comercial de vanzare, 133 mp – Bulevardul Metalurgiei stradal, Sectorul 4, Bucuresti Va propunem spre vanzare un spatiu comercial premium, situat la parterul unui imobil nou cu 8 etaje, parte din proiectul The Grand Kristal, amplasat stradal la Bulevardul Metalurgiei, chiar peste drum de Parcul Tudor Arghezi, in cadrul Metalurgiei Park – Faza 1, una dintre cele mai dezvoltate zone din Sectorul 4, Bucuresti. Suprafata utila este de 132.68 mp, cu compartimentare functionala: zona open space pentru activitate comerciala, oficiu, toaleta si doua grupuri sanitare. Vizibilitate pe 2 laturi, vitrina extinsa si geamuri din podea pana in tavan, spatiul ofera expunere maxima si luminozitate naturala – ideale pentru orice tip de business. Dispune de acces dublu – atat dinspre Bulevardul Metalurgiei, cat si dinspre Drumul Jilavei, facilitand atat fluxul de clienti, cat si aprovizionarea. 6 locuri de parcare sunt disponibile, distribuite pe doua dintre laturile vitrate ale spatiului, asigurand confort si acces usor. Dotari si finisaje de top: - Tamplarie PVC cu geam tripan, integral pe inaltime - Centrala termica proprie 24 kW + calorifere din otel - Sistem de alarma, supraveghere video si cablare voce-date - Aer conditionat performant - Podele ceramice de calitate superioara - Pereti finisati cu vopsea decorativa San Marco - Tavane casetate, grup sanitar modern complet utilat - Inaltime interioara: 3.5 m - Izolatie fonica catre etajul superior Spatiul comercial este amplasat in Sectorul 4, in cadrul Metalurgiei Park – Faza I, vizavi de Parcul Tudor Arghezi, un punct de atractie ce genereaza trafic pietonal constant, ideal pentru cafenele, restaurante, servicii, retail, clinici sau showroom-uri. Pozitionat direct la Bd. Metalurgiei, una dintre cele mai tranzitate artere din sudul Capitalei, spatiul ofera vizibilitate excelenta si acces facil din Drumul Jilavei. In apropiere se afla statii STB cu legaturi directe catre metrou, iar Berceni Arena Sport Center – patinoar olimpic – completeaza atractivitatea zonei. Numarul redus de spatii comerciale disponibile in ansamblu face ca aceasta proprietate sa fie o oportunitate rara de investitie, cu beneficii pe termen lung. Vecinatati comerciale: Metro, Auchan, Jumbo, Lidl, Kaufland, Carrefour, Profi – retaileri care consolideaza vadul comercial si atrag zilnic atat rezidenti, cat si vizitatori. Pret: 450.000 Euro + TVA
Citește mai mult Citește mai puțin
6 Parcări

Detalii spațiu comercial

ID anunț: XFQP14042 Copiat! 274873752 Copiat!
Actualizat în: 10 Martie 2026
Tip tranzacție: De vânzare prin agent
Suprafață utilă: 132.68 mp
Regim înălțime: P+8E+T
Stadiu construcție: Există
Vitrină: Da
Modalitate de plată: Cash sau Credit

Utilități

Destinație
Birouri Comercial Rezidențial
Utilități
Curent Apă Canalizare Gaze
Comision
standard

Disponibilitate proprietate:

Imediat

Puncte de interes

Mijloace transport
bus-station
Statia Sere, linia 125, 141, 220, 232, 312
Stații autobuz aprox. 589 m
bus-station
Statia Editura Aramis, linia 125, 141, 220, 232, 312
Stații autobuz aprox. 660 m
metro-station
Metrorex. Stația Apărătorii Patriei (M2)(1986)
Stații metrou aprox. 770 m
tram-station
Soseaua Vitan-Barzesti
Stații tramvai aprox. 1589 m
Școală
university
Universitatea Spiru Haret
Universități aprox. 803 m
university
Universitatea "Spiru Haret" (Fosta Casă de Cultură IMGB).
Universități aprox. 819 m
school
Colegiul Tehnic Miron Nicolescu
Școli aprox. 824 m
kindergarten
Cresa 4 Berceni
Gradinițe aprox. 1054 m
Recreere
supermarket
Mega Image Turnul Magurele Non-Stop
Supermarket aprox. 646 m
park
Loc de Joaca
Parcuri aprox. 711 m
hypermarket
Hornbach
Hipermarket aprox. 955 m
sports-ground
Teren sportiv
Terenuri sport aprox. 993 m

Proprietăți similare

Spațiu industrial, 1800 mp în Centura Sud
460.000 €
București, Centura Sud
1.800 mp utili
Depozitare
Spațiu comercial, de 96.87 mp, în Berceni
423.500 €
București, Berceni
96,87 mp utili
Bloc de apartamente
8E
Spațiu comercial, de 100.81 mp, în Berceni
423.500 €
București, Berceni
100,81 mp utili
Bloc de apartamente
8E

Detalii de contact

SUDREZIDENTIAL.

Alexandru Costache Director Vanzari

SUDREZIDENTIAL.
PRO

Abonează-te la newsletter să fii primul care primește cele mai noi recomandări de proprietăți și sfaturi de la experți.

CONTACT

Creează alertă

Salvează căutarea ca să primești pe email ultimele anunțuri publicate

Spații comerciale cu o cameră de vânzare în zona Berceni, Sector 4