2

Spatiu comercial de vanzare in Sibiu zona Shopping City

638.000 €

Aeroport, Sibiu

Sup. utilă / mp. utili:
263 mp
Tip prop.:
Centru comercial
Niv.:
2
An constr.:
2024 (Există)
  • • Locație aproximativă
  • • Vizionare prin apel video

Descriere spațiu comercial

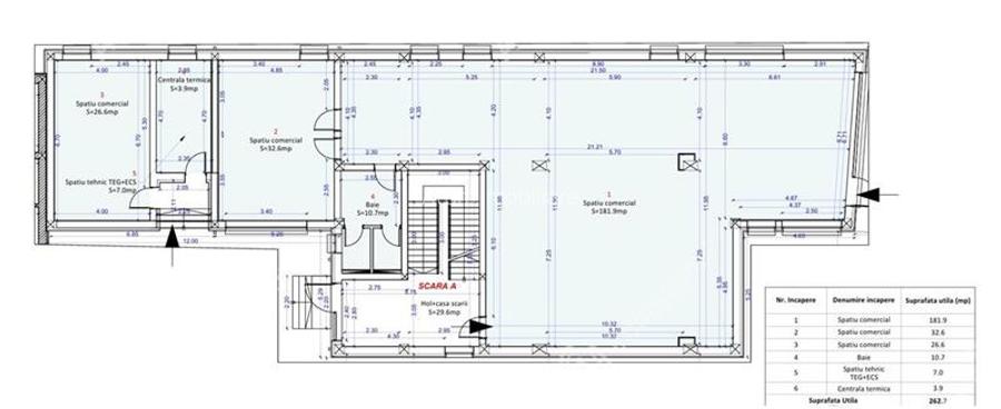
Va propunem spre vanzare un spatiu comercial aflat la parterul unui imobil cu regim de inaltime P+2E, situata in imediata apropiere a centrului comercial Shopping City Sibiu, intr-o zona cu trafic intens si vizibilitate excelenta. Imobilul beneficiaza de o amplasare strategica, fiind ideal pentru activitati comerciale, birouri, clinici sau investitie cu randament bun. Spatiul are o suprafata utila de 263 mp si o suprafata construita totala de 315 mp, fiind construita pe o structura solida in cadre de beton armat, cu inchideri din caramida si izolatie din vata bazaltica. Tamplaria este din aluminiu, iar fatada este finisata cu caramida decorativa de exterior, oferind un aspect elegant si distinct. Interiorul este la stadiu de gri si nu este compartimentat, oferind astfel flexibilitate totala pentru configurarea ulterioara in functie de activitatea desfasurata sau de cerintele viitorului proprietar. Acesta beneficiaza de urmatoarele avantaje: - 6 locuri de parcare amenajate in curtea proprie - curte interioara complet pavata si organizata - infrastructura completa pentru utilitati (electricitate, gaz, apa, canalizare, internet) - expunere excelenta la o artera intens circulata - arhitectura moderna si fatada reprezentativa Spatiul reprezinta o oportunitate excelenta pentru investitori sau companii care doresc un spatiu multifunctional, bine pozitionata, cu potential de extindere si adaptare in functie de nevoi. Valoarea de achizitie este de 638.000 euro + TVA. ID intern: 3063.
Citește mai mult Citește mai puțin

Detalii spațiu comercial

ID anunț: XC741406M Copiat! 271844278 Copiat!
Actualizat în: 13 Februarie 2026
Tip tranzacție: De vânzare prin agent
Înălțime spațiu (m): 4
Regim înălțime: P+2E
Stadiu construcție: Există
Suprafață teren: 800 mp
Modalitate de plată: Cash sau Credit

Utilități

Utilități
Apă Curent Gaze Canalizare

Certificat energetic:

Clasa energetică: A

Vecinătăți:

Mall, Hotel, Benzinarie, Intersectie circulata, Trafic Pietonal, Fastfood, Cinema, Supermarket, Banca, Zona comerciala, Autobuz

Puncte de interes

Mijloace transport
bus-station
Mobexpert
Stații autobuz aprox. 275 m
bus-station
XXL
Stații autobuz aprox. 311 m
bus-station
Shopping City
Stații autobuz aprox. 386 m
bus-station
Vasile Milea 1
Stații autobuz aprox. 388 m
Școală
school
Scoala generala nr. 21
Școli aprox. 650 m
school
Liceul Energetic
Școli aprox. 739 m
kindergarten
Gradinita Kristine
Gradinițe aprox. 1116 m
university
Facultatea de Stiinte Agroalimentare
Universități aprox. 1447 m
Recreere
sports-ground
Teren sportiv
Terenuri sport aprox. 72 m
supermarket
Carrefour
Supermarket aprox. 115 m
restaurant
KFC
Restaurant aprox. 243 m
park
Parcul Vasile Aaron
Parcuri aprox. 969 m

Proprietăți similare

Spațiu comercial, de 185 mp, în Central
653.400 €
Sibiu, Central
185 mp utili
Centru comercial
2021
Birou, 318 mp în Ștrand
580.000 €
Sibiu, Ștrand
200 mp utili
Casă/Vilă
3E
Spațiu industrial, de 500.00 mp, în Periferie
599.000 €
Sibiu, Periferie
500 mp utili
Producție/Servicii
1E

Detalii de contact

Atum Imobiliare

Atum Imobiliare Consultant imobiliar

Atum Imobiliare
PRO

Abonează-te la newsletter să fii primul care primește cele mai noi recomandări de proprietăți și sfaturi de la experți.

CONTACT

Creează alertă

Salvează căutarea ca să primești pe email ultimele anunțuri publicate

Spații comerciale cu 4+ camere de vânzare în zona Aeroport, Sibiu