2

Spatiu comercial 136 mp, central, strada 9 Mai 0% Comision

380.000 €

Central, Sibiu

Sup. utilă / mp. utili:
136 mp
Tip prop.:
Casă/Vilă
Niv.:
1
  • • Comision 0%
  • • Locație aproximativă

Descriere spațiu comercial

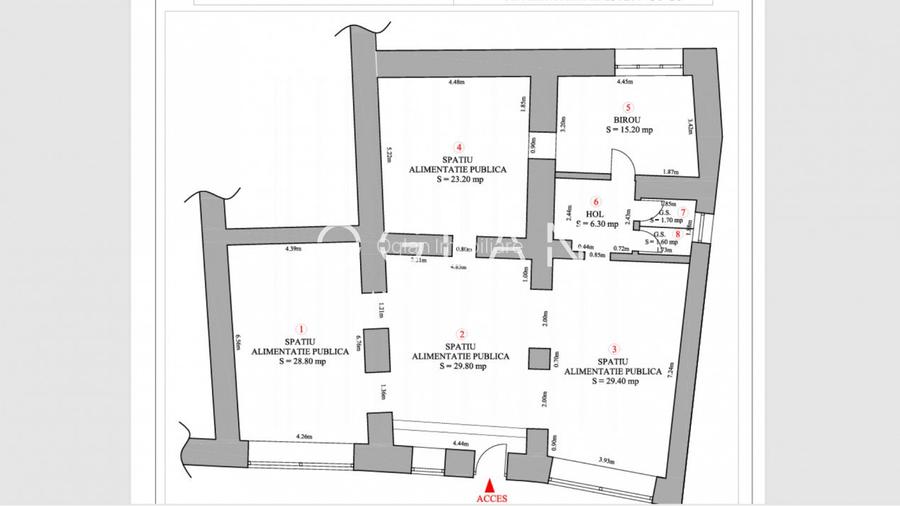
Oglan Imobiliare propune spre vanzare un spatiu comercial in zona centrala pe strada 9 Mai, ideal pentru afacerea ta sau pentru investitie. In suprafata utila de 136 mp, spatiul este situat la parterul unui imobil cu regim de inaltime P+1, este compus din 4 camere generoase, un birou, 2 bai si hol si este pretabil pentru activitati de amimentatie publica: restaurant, cafenea, cofetarie – patiserie, fast-food, pizzerie, bar / pub. Suprafata utila a spatiului este de 136 mp. Spatiul este amplasat intr-o zona cu vad atat pietonal cat si auto si dispune si de vitrina. Utilitati: curent electric, apa, canalizare, gaz, acces internet. Contorizare: apometre, contor gaz, contor curent electric Pret: 380.000 Euro 0% Comision Nr grupuri sanitare: 2 Suprafata construita: 165 mp Nr incaperi: 5 Utilitati - Sistem incalzire (Centrala proprie,Calorifere); Utilitati generale (Curent,Apa,Canalizare,Gaz) Finisaje - Podele (Gresie,Parchet); Iluminat (Lampi,Lumina naturala) Dotari - Contorizare (Apometre,Contor gaz); Dotari imobil (Acoperis,Curte comuna) pret vanzare: 380000 moneda vanzare: EUR Disponibilitate proprietate: imediat
Citește mai mult Citește mai puțin

Detalii spațiu comercial

ID anunț: X7D51407S Copiat! 273986669 Copiat!
Actualizat în: 30 Ianuarie 2026
Suprafață utilă: 136 mp
Regim înălțime: P+1E+M
Structură rezistență: Cărămidă
Vitrină: Da

Utilități

Contorizare
Apometre Contor gaz
Mobilat
Parțial mobilat
Facilități imobil
Acoperiș Curte comună
Utilități
Curent Apă Canalizare Gaze
Sistem încălzire
Centrală proprie Calorifere
Podele
Parchet Gresie

Puncte de interes

Mijloace transport
bus-station
Piata Cibin 1
Stații autobuz aprox. 307 m
bus-station
Piata Cibin 2
Stații autobuz aprox. 337 m
bus-station
Piata Cibin 3
Stații autobuz aprox. 425 m
bus-station
Premium 1
Stații autobuz aprox. 434 m
Școală
school
Liceul de Arte
Școli aprox. 162 m
school
Scoala Generala Nr. 15
Școli aprox. 458 m
university
Facultatea de Jurnalistica
Universități aprox. 536 m
kindergarten
Gradinita Nr. 19
Gradinițe aprox. 875 m
Recreere
bar
Home
Bar aprox. 40 m
park
Curtea a 2-a
Parcuri aprox. 188 m
supermarket
Kappa
Supermarket aprox. 280 m
sports-ground
Teren sportiv
Terenuri sport aprox. 397 m

Proprietăți recomandate

Detalii de contact

Oglan Imobiliare

Marius Barbu Consilier Imobiliar

Oglan Imobiliare
PRO

Abonează-te la newsletter să fii primul care primește cele mai noi recomandări de proprietăți și sfaturi de la experți.

CONTACT

Creează alertă

Salvează căutarea ca să primești pe email ultimele anunțuri publicate

Spații comerciale de vânzare în zona Central, Sibiu