Spatiu comercial, 255 mp si 600 mp teren, in zona Calea Bogdanestilor

160.000 €

Bogdăneștilor, Timișoara

Sup. utilă / mp. utili:
255 mp
Tip prop.:
Centru comercial
An constr.:
1960 (Există)
  • • Locație aproximativă

Descriere spațiu comercial

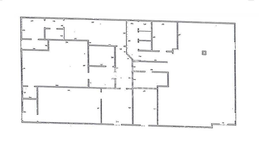
Agentia imobiliara APOSTU ESTATE va propune spre vanzare cladire comerciala de 255 metri patrati utili si 600 mp teren, in Zona Calea Bogdanestilor/Ronat Timisoara. Imobilul se desfasoara pe parter, are 3 intrari din strada si 3 cai de acces din curtea proprie. Spatiul este compartimentat in mai multe incaperi ( plan compartimentare atasat), dispune de asemenea de mai multe grupuri sanitare, curent trifazic, parcare in fata spatiului si curte generoasa betonata cu mici anexe. Este potrivit pentru mai multe tipuri de activitati comerciale: productie, magazin, clinica medicala, etc. Imobilul este foarte bine pozitionat si accesibil pentru transport marfuri, situat in apropiere de Pasajul Solventul si Gara de Nord. Pentru mai ulte detalii sau pentru a stabili o vizionare nu ezitati sa ne contactati! Cod intern: CP2931172
Citește mai mult Citește mai puțin

Detalii spațiu comercial

ID anunț: XBAF141F3 Copiat! 275010636 Copiat!
Actualizat în: 18 Februarie 2026
Suprafață utilă: 255 mp
Regim înălțime: P
Stadiu construcție: Există
Vitrină: Da
Suprafață teren: 600 mp

Utilități

Utilități
Curent Apă Canalizare
Comision
standard

Disponibilitate proprietate:

Imediat

Puncte de interes

Mijloace transport
tram-station
Statia Madona Tv5
Stații tramvai aprox. 154 m
bus-station
Gelu
Stații autobuz aprox. 703 m
trolleybus-station
Statie Gelu T18
Stații troleibuz aprox. 720 m
train-station
Timisoara North railway station area (en)
Stații tren aprox. 903 m
Școală
kindergarten
Gradinita Program Prelungit Nr. 4
Gradinițe aprox. 310 m
school
Colegiul Tehnic Dimitrie Leonida
Școli aprox. 420 m
kindergarten
Gradinita Program Prelungit Nr. 24
Gradinițe aprox. 649 m
university
Universitatea de Vest, Facultatea de teologie ortodoxa
Universități aprox. 1133 m
Recreere
park
Parc
Parcuri aprox. 623 m
supermarket
Profi City
Supermarket aprox. 631 m
sports-ground
Teren sportiv
Terenuri sport aprox. 671 m
public-square
Piata Sinaia
Piețe publice aprox. 1996 m

Proprietăți similare

Spațiu comercial, 72 mp în Mehala
165.000 €
Timișoara, Mehala
72 mp utili
Bloc de apartamente
3E
Spațiu comercial, 144 mp în Gheorghe Lazăr
169.900 €
Timișoara, Gheorghe Lazăr
144 mp utili
Casă/Vilă
1E
Spațiu comercial, 91 mp în Ultracentral
170.000 €
Timișoara, Ultracentral
91 mp utili
Bloc de apartamente
1E

Detalii de contact

APOSTU ESTATE

Alexandru Paliuc Senior Broker

APOSTU ESTATE
PRO

Abonează-te la newsletter să fii primul care primește cele mai noi recomandări de proprietăți și sfaturi de la experți.

CONTACT

Creează alertă

Salvează căutarea ca să primești pe email ultimele anunțuri publicate

Spații comerciale cu 4+ camere de vânzare în zona Bogdăneștilor, Timișoara