1

Spațiu pretabil birouri,after school,comercial,etc.

490.000 €

Brâncoveanu, Timișoara

Sup. utilă / mp. utili:
215,3 mp
Tip prop.:
Casă/Vilă
Niv.:
1
An constr.:
1920 (Există)
  • • Locație aproximativă

Descriere spațiu comercial

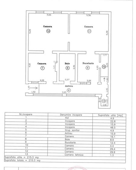
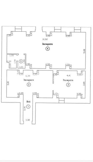
Spațiul este situat la strada principala dispus la demisol de 3 încăperi,hol și grup sanitar în suprafață de 97 mp care se poate închiria la prețul de 1000 Eur sau unul de 60 mp la prețul de 600 Eur și la parter suprafață 118 mp de 3 camere, baie cu vana, grup sanitar,bucatarie,spatiu depozitare, hol,curte la prețul de 1400 eur
Citește mai mult Citește mai puțin

Detalii spațiu comercial

ID anunț: X47N140E7 Copiat! 228221465 Copiat!
Actualizat în: 15 Februarie 2026
Suprafață utilă: 215.3 mp
Regim înălțime: P+1E
Stadiu construcție: Există
Suprafață teren: 318 mp

Utilități

Destinație
Rezidențial Birouri Comercial
Utilități
Curent Apă Canalizare Gaze

Disponibilitate proprietate:

Imediat

Puncte de interes

Mijloace transport
tram-station
Iuliu Maniu
Stații tramvai aprox. 21 m
bus-station
Statie autobus A3, E1
Stații autobuz aprox. 32 m
trolleybus-station
Statie Pop de Basesti T11, T14, T18
Stații troleibuz aprox. 696 m
train-station
Terminal RESITA
Stații tren aprox. 736 m
Școală
kindergarten
Gradinita cu program normal nr. 10
Gradinițe aprox. 63 m
school
Scoala Generala Nr.12
Școli aprox. 219 m
kindergarten
Gradinita nr. 31
Gradinițe aprox. 236 m
university
ELIM Evanghelical Theological Seminary (en)
Universități aprox. 885 m
Recreere
sports-ground
Teren sportiv
Terenuri sport aprox. 320 m
supermarket
Profi Piata Sinaia
Supermarket aprox. 669 m
public-square
Piata Sinaia
Piețe publice aprox. 724 m
park
Parcul Clabucet
Parcuri aprox. 803 m

Proprietăți similare

Spațiu industrial, 503 mp în Brâncoveanu
499.990 €
Timișoara, Brâncoveanu
503 mp utili
Logistică
Spațiu comercial, 314 mp în Iosefin
490.000 €
Timișoara, Iosefin
314 mp utili
Centru comercial
2010
Spațiu comercial, 260 mp în Calea Urseni
495.000 €
Timișoara, Calea Urseni
260 mp utili
Casă/Vilă
2E

Detalii de contact

Sodolescu Imobiliare si Constructii Srl

Mihaela TATU Consultant Imobiliar

4.25(4 review-uri)

Sodolescu Imobiliare si Constructii Srl
PRO

Abonează-te la newsletter să fii primul care primește cele mai noi recomandări de proprietăți și sfaturi de la experți.

CONTACT

Creează alertă

Salvează căutarea ca să primești pe email ultimele anunțuri publicate

Spații comerciale cu 3 camere de vânzare în zona Brâncoveanu, Timișoara