De vanzare spatiu comercial – randament din prima zi

180.000 €

Gării, Timișoara

Sup. utilă / mp. utili:
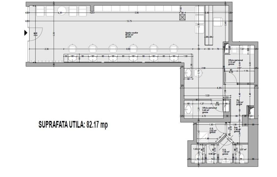
82 mp
An constr.:
1980 (Există)
  • • Locație aproximativă
  • • Vizionare prin apel video

Descriere spațiu comercial

Spatiu comercial de vanzare – investitie cu chirias stabil, zona Gara Timisoara Oportunitate rara pentru investitori: se ofera spre vanzare un spatiu comercial situat langa Gara Timisoara, intr-o zona cu trafic intens, vizibilitate excelenta si acces facil la toate mijloacele de transport in comun (tramvai, autobuz, tren). Proprietatea are o suprafata de 82 mp, este compartimentata open-space (cu posibilitate de reconfigurare) si dispune de apa, canalizare, electricitate, posibilitate de montare centrala proprie. Spatiul beneficiaza de grup sanitar propriu si vitrina la strada, ideala pentru expunere sau branding. Avantaj major: Proprietatea este inchiriata in prezent, avand chirias stabil si de incredere, ceea ce ofera cumparatorului randament imediat din prima zi. Puncte forte: - Pozitie ultracirculata, cu vad format - Acces direct din strada principala - Vizibilitate excelenta pentru orice activitate O alegere ideala pentru cei care cauta o investitie sigura si predictibila, cu venit constant si potential de apreciere in timp. Pentru mai multe detalii sau stabilirea unei vizionari, contactati-ne la numarul de telefon . Datele tehnice au caracter informativ, ele fiind preluate de la proprietar.
Citește mai mult Citește mai puțin

Detalii spațiu comercial

ID anunț: XAOV04002 Copiat! 275435842 Copiat!
Actualizat în: 29 Mai 2026
Tip tranzacție: De vânzare prin agent
Stadiu construcție: Există
Modalitate de plată: Cash sau Credit

Utilități

Utilități
Apă Canalizare

Puncte de interes

Mijloace transport
bus-station
Statie Gara de nord T11, T14, T18, A3, E3
Stații autobuz aprox. 66 m
tram-station
Statie Gara de nord Tv1, Tv8,
Stații tramvai aprox. 120 m
train-station
Gara de Nord
Stații tren aprox. 122 m
trolleybus-station
Statie Pop de Basesti T11, T14, T18
Stații troleibuz aprox. 428 m
Școală
kindergarten
Gradinita Program Prelungit C.F.R.
Gradinițe aprox. 147 m
school
LICEUL TEOLOGIC BAPTIST
Școli aprox. 567 m
kindergarten
Gradinita Bunul Pastor
Gradinițe aprox. 608 m
university
Technical University Timisoara -"R" building (en)
Universități aprox. 666 m
Recreere
supermarket
Profi City
Supermarket aprox. 153 m
sports-ground
Teren sportiv
Terenuri sport aprox. 471 m
park
Piata Sfantul Nicolae
Parcuri aprox. 678 m
public-square
Piata Sinaia
Piețe publice aprox. 682 m

Proprietăți similare

Birou, de 66 mp, în Central
170.000 €
Timișoara, Central
66 mp utili
Casă/Vilă
2E
Spațiu comercial, de 144.00 mp, în Gheorghe Lazăr
169.900 €
Timișoara, Gheorghe Lazăr
144 mp utili
Spațiu comercial, 80 mp în P-ța Maria
190.000 €
Timișoara, P-ța Maria
80 mp utili
Centru comercial

Detalii de contact

LUCA&M ESTATE

Ciprian Tole Consultant Imobiliar

LUCA&M ESTATE
PRO

Abonează-te la newsletter să fii primul care primește cele mai noi recomandări de proprietăți și sfaturi de la experți.

Feedback apel

CONTACT

Creează alertă

Salvează căutarea ca să primești pe email ultimele anunțuri publicate

Spații comerciale cu 3 camere de vânzare în zona Gării, Timișoara