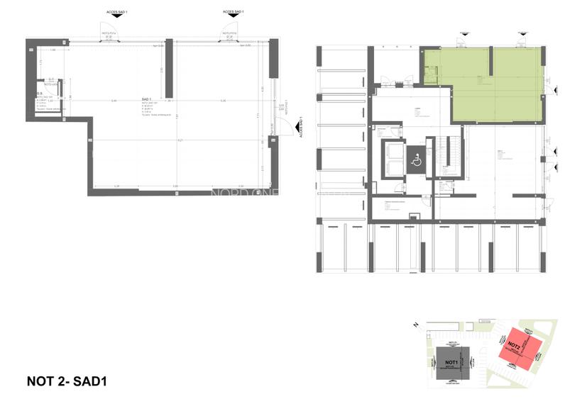
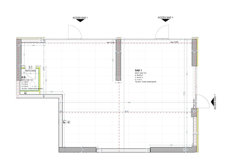
Spațiu comercial de 80,25 mp utili, situat la parterul blocului N16 din cadrul ansamblului Nord One Torontal, cu livrare estimată în 2027. Beneficiază de acces direct din exterior, vitrină generoasă și un grup sanitar propriu. Se predă la alb, fără finisaje (fără gresie, faianță, parchet), cu încălzire în pardoseală și unitate de aer condiționat.
Suprafața mai mare permite o varietate de funcțiuni comerciale sau de servicii, adaptabile în funcție de conceptul ales. Poziționarea într-o zonă aflată în plină dezvoltare, cu viitori rezidenți în proximitate, oferă expunere bună și potențial real de rulaj, în Cale Torontalului.
Se pretează pentru:
-Mini-market sau shop de proximitate (bio, băcănie urbană, vinuri, etc.)
-Studio de fitness/yoga/pilates (pentru grupuri mici)
-Centru estetic/mic spa urban (mai multe servicii într-un singur loc)
-After school, centru educațional sau loc de joacă indoor
-Atelier de creație, studio art & design, showroom extins
-Cabinete medicale/terapie în sistem multiroom (psihologie, nutriție, kinetoterapie)
-Birou de reprezentanță pentru firmă – open space + sală de întâlniri
-Servicii mixte – beauty + retail, consultanță + shop etc.
Sediul central - Timișoara
Bulevardul Victor Babeș nr. 2, 300230, Timișoara, România
Tel: +40.374.40.44.98 / Fax: +40.256.401.179
Email: suport@imobiliare.ro
Luni - Vineri 08:00 - 20:00
Punct de lucru - București: Iride Business Park, Bld. Dimitrie
Pompeiu 9-9A, Clădirea B2B,
020335, Sector 2, București, România
CONTACT
Sediul central - Timișoara
Bulevardul Victor Babeș nr. 2, 300230, Timișoara, România
Tel: +40.374.40.44.98 / Fax: +40.256.401.179
Email: suport@imobiliare.ro
Luni - Vineri 08:00 - 20:00
Punct de lucru - București: Iride Business Park, Bld. Dimitrie
Pompeiu 9-9A, Clădirea B2B,
020335, Sector 2, București, România
Universitatea de Stiinte Agricole si Medicina Veterinara a Banatului
aprox.
435 m
Universitatea de Stiinte Agricole si Medicina Veterinara a Banatului, Timisoara
aprox.
439 m
Facultatea de Agronomie
aprox.
442 m
Grup Scolar Agricol "Iulian Dracea" Timisoara
aprox.
675 m
Grup Scolar Agricol Iulian Dracea
aprox.
680 m
Scoala Generala 26
aprox.
1587 m
Scoala Gimnaziala nr. 26
aprox.
1599 m
Scoala Gimnaziala nr. 24
aprox.
1725 m
Scoala Generala 24
aprox.
1727 m
SCOALA GIMNAZIALĂ NR.19 "AVRAM IANCU"
aprox.
1757 m
Scoala Generala Nr. 18
aprox.
1796 m
Scoala Gimnaziala nr. 18
aprox.
1821 m
Scoala Generala Nr. 7 "Sfanta Maria"
aprox.
1824 m
Scoala Gimnaziala nr. 7 Sfanta Maria
aprox.
1824 m
Gradinita Program Prelungit Nr. 37
aprox.
1017 m
Kids Club Allegria
aprox.
1046 m
Gradinita Samariteanul Nr. 13
aprox.
1255 m
Gradinita Program Prelungit Nr. 27
aprox.
1508 m
Gradinita nr. 27
aprox.
1511 m
Gradinita Cu Program Prelungit Nr. 9 Carla Pelz Mehala
aprox.
1747 m
Gradinita cu program prelungit nr. 20
aprox.
1756 m
Gradinita Program Prelungit Nr. 20
aprox.
1787 m
Gradinita Program Normal Nr. 3
aprox.
1859 m
Gradinita nr. 36
aprox.
1875 m
Gradinita Program Prelungit Nr. 36
aprox.
1885 m
Gradinita Smart
aprox.
1907 m
Gradinita Winnie The Pooh
aprox.
1972 m
Grădinița nr. 26 Timișoara
aprox.
1974 m
Gradinita nr. 26
aprox.
1976 m
Mini-Market
aprox.
164 m
Penny market
aprox.
596 m
Penny Market
aprox.
765 m
Auchan
aprox.
913 m
Selgros
aprox.
1074 m
Profi City
aprox.
1367 m
Etti
aprox.
1372 m
Lidl Miresei
aprox.
1484 m
Lidl
aprox.
1504 m
Profi City
aprox.
1634 m
Carrefour Market
aprox.
1702 m
Auchan
aprox.
1858 m
Iulius Mall
aprox.
1928 m
Profi City
aprox.
1943 m
Galeria 1
aprox.
1988 m
Decathlon
aprox.
987 m
Parcare
aprox.
173 m
Parcare
aprox.
270 m
Parcare
aprox.
297 m
Parcare
aprox.
372 m
Parcare
aprox.
411 m
Parcare
aprox.
630 m
Parcare
aprox.
668 m
Parcare
aprox.
785 m
Parcare
aprox.
807 m
Parcare
aprox.
820 m
Parcare pentru clienti cu plata
aprox.
826 m
Parcare privata
aprox.
922 m
Parcare
aprox.
929 m
Parcare
aprox.
934 m
Parcare
aprox.
944 m
Parc
aprox.
374 m
Parc
aprox.
415 m
Parc
aprox.
498 m
Parc
aprox.
528 m
Parc de joaca copii
aprox.
646 m
Parc
aprox.
665 m
Parc de joaca copii
aprox.
752 m
Parc
aprox.
752 m
Parc
aprox.
972 m
Parc
aprox.
1005 m
Parcul din zona Matei Basarab
aprox.
1212 m
Parcul Matei Basarab
aprox.
1214 m
Parc
aprox.
1235 m
Parcul Ioan Nistor
aprox.
1286 m
Parc de joaca copii
aprox.
1332 m
Teren sportiv
aprox.
583 m
Teren sportiv
aprox.
714 m
Teren sportiv
aprox.
722 m
Teren sportiv
aprox.
740 m
Teren sportiv
aprox.
1398 m
Teren sportiv
aprox.
1406 m
Teren sportiv
aprox.
1464 m
Teren sportiv
aprox.
1578 m
Teren sportiv
aprox.
1581 m
Teren sportiv
aprox.
1611 m
Teren sportiv
aprox.
1736 m
Teren sportiv
aprox.
1816 m
Teren sportiv
aprox.
1832 m
Teren Minifotbal
aprox.
1856 m
Teren sportiv
aprox.
1856 m
Municipal Hospital (under construction) (en)
aprox.
402 m
Medicover
aprox.
1483 m
BioClinica (en)
aprox.
1509 m
Cabinet Dr. Giurgiu Daniela
aprox.
1832 m
Sal-Vet
aprox.
1847 m
Policlinica Garleanu (en)
aprox.
2000 m
Sensiblu
aprox.
942 m
Sensiblu
aprox.
1187 m
Farmacie
aprox.
1558 m
Vlavar Med
aprox.
1618 m
Dona
aprox.
1688 m
Dona
aprox.
1696 m
Catena
aprox.
1726 m
Richter
aprox.
1748 m
Helpnet
aprox.
1799 m
Dacia
aprox.
1815 m
Farmacia Dacia
aprox.
1885 m
Farmacia Richter
aprox.
1954 m
Farmacia Dona
aprox.
1974 m
Iris
aprox.
633 m
Pizzeria Very Italian Pizza
aprox.
710 m
Restaurant Zorile
aprox.
809 m
NEON
aprox.
842 m
Filiberto Ristorante e Pizzeria
aprox.
897 m
Fornetti
aprox.
990 m
Pizzeria Rebecca
aprox.
1010 m
Franceasca
aprox.
1117 m
Pizzeria Giovanna
aprox.
1155 m
Giovana
aprox.
1155 m
Restaurant Tinecz
aprox.
1243 m
Pizzaiolo
aprox.
1349 m
Pizzeria Al Pacino
aprox.
1358 m
San Marzano
aprox.
1381 m
Pizzeria Amedeea
aprox.
1495 m
Old House
aprox.
762 m
Club Bordeaux
aprox.
1386 m
Lounge Cafe Dielli
aprox.
934 m
Starbucks
aprox.
1893 m
Capsali
aprox.
1968 m
Raiffeisen Bank
aprox.
598 m
BRD
aprox.
934 m
Banca Transilvania
aprox.
947 m
ING
aprox.
955 m
Alpha Bank
aprox.
962 m
Piraeus Bank
aprox.
969 m
Raiffeisen Bank
aprox.
982 m
Raiffeisen Bank
aprox.
1035 m
BCR
aprox.
1089 m
BCR
aprox.
1147 m
UniCredit Bank
aprox.
1370 m
Alpha Bank
aprox.
1594 m
Raiffeisen Bank
aprox.
1595 m
UniCredit Bank
aprox.
1597 m
BRD
aprox.
1600 m
La capitolul mijloace de transport în comun, această zonă a Timișoarei este deservită atât de autobuze (liniile 18, E1 și E6, care ajung pe Calea Torontalului), cât și de tramvaiele 4 și 10, care ajung pe Bulevardul Cetății. Spre desoebire de locuitorii altor cartiere, cei din Torontalului-Bucovina au la dispoziție mai multe piste special amenajate: una pe Calea Torontalului, una pe Bulevardul Cetății și alta pe Strada Crișan.
În ciuda faptului că este o zonă destul de populată, Torontalului-Bucovina nu stă prea bine la capitolul oportunități de educație. În ceea ce privește ciclul preșcolar, de menționat aici ar fi grădinița (și creșa) "Infants"™ Royal Club", ce-și are sediul pe Strada Basarabia, nr. 4. La capitolul școli, deficiențele cartierului sunt compensate de proximitatea zonei Circumvalațiunii, unde se găsesc mai multe asemenea instituții "“ printre care Școala Gimnazială Nr. 19 "Avram Iancu" (pe Bulevardul Cetății, nr. 24), dar și Școala Gimnazială Nr. 18 (pe Strada Amforei, nr. 6). La capitolul învățământ superior, timișorenii care locuiesc aici beneficiază de vecinătatea cu Aradului, unde se găsește Universitatea de Științe Agricole și Medicină Veterinară a Banatului (pe Calea Aradului, nr. 119) "“ de aceasta ține Facultatea de Medicină Veterinară, alături de Facultatea de Tehnologia Produselor Alimentare. Mai jos poți vedea în detaliu ce unități de învățământ există în Torontalului-Bucovina:
La capitolul oportunități de cumpărături, în Torontalului-Bucovina nu se găsește (ca în multe alte zone ale Timișoarei) nici un mall și nici un hipermarket. Prin urmare, locuitorii cartierului sunt deserviți, când vine vorba de nevoile de zi cu zi, de magazine de dimensiuni mai mici, printre care se numără și un Profi City, amplasat aproape de "granița" cu Aradului, mai exact pe Aleea Hotinului, nr. 2. De menționat este că această subdiviziune a orașului beneficiază de pe urma proximității zonei Aradului "“ una dintre cele mai apropiate unități comerciale de aici ar fi un supermarket din rețeaua Lidl (amplasat aproape de limita cu Circumvalațiunii). În plus, în nordul acestui cartier învecinat se găsește o zonă comercială mai amplă, din care fac parte un hipermarket Auchan, un magazin Selgros, un magazin de bricolaj Hornbach, dar și un Decathlon.
Dat fiind numărul relativ ridicat de blocuri din cartier, găsirea unui loc de parcare poate ridica mai multe probleme decât în Mircea cel Bătrân-Mehala, spre exemplu; acesta este motivul pentru care posesorii de autovehicule pot afla mai multe despre închirierea unui asemenea spațiu la sediul Primăriei (de pe Bulevardul Constantin Diaconovici Loga, nr. 1). Cumpărătorii de locuințe noi, pe de altă parte, ar trebui să se intereseze la dezvoltator cu privire la achiziția unui loc de parcare în cadrul respectivului ansamblu rezidențial.
Deși este, fără îndoială, o zonă destul de verde per ansamblu, Torontalului-Bucovina nu stă, totuși, foarte bine la capitolul parcuri propriu-zise. Practic, singurul de menționat din acest punct de vedere ar fi Parcul Bucovina, amplasat în estul cartierului, aproape de limita cu Aradului și Circumvalațiunii. Pentru locuitorii acestei subdiviziuni ale orașului, cele mai facile metode de a se menține activi ar fi mersul pe jos, joggingul și mersul cu bicicleta. Pasionații de sport pot apela, desigur, și la serviciile unei săli de fitness de cartier "“ de menționat este că pe Calea Torontalului (la nr. 61), se găsește și un club de squash. O altă opțiune, cel puțin pe timp de weekend, ar fi Baza Sportivă Textila, din Aradului, care include atât terenuri de sport, cât și o piscină publică (aceasta este situată pe Strada Martir Dan Carpin, nr. 5).
Cartierul Torontalului-Bucovina nu este foarte ofertant la capitolul servicii medicale. Aici pot fi găsite, desigur, câteva cabinete particulare, având diferite specializări, însă nu și un spital de stat sau un centru medical privat de dimensiuni mai mari. Aceste deficiențe sunt contrabalansate, însă, de vecinătatea cu Aradului și Circumvalațiunii. Pe strada Calea Aradului, nr. 113, spre exemplu, se găsește Spitalul (și Policlinica) Premiere "“ o unitate medicală ce oferă o gamă extinsă de specializări (printre care cardiologie, endocrinologie, chirurgie generală și plastică etc.). În plus, pe lângă cabinetele medicale existente în Circumvalațiunii, de aici se ajunge cu ușurință în centrul orașului, unde se află mai multe spitale de stat (printre care Spitalul Clinic Municipal de Urgență Timișoara). Pe harta de mai jos găsești localizarea exactă a spitalelor și clinicilor din zonă:
Pe lângă fast food-urile și cafenelele de cartier, găsim aici unul dintre restaurantele cu specific tradițional italienesc "“ L"™Osterietta. De asemenea, o opțiune pe care o poți lua în calcul în cazul unui prânz de business este și localul de la parterul clădirii de birouri Vox. Aruncă o privire pe hartă și vezi unde vei găsi cel mai apropiat restaurant de viitoarea ta locuință.
Găsești un bancomat și o sucursală Patria Bank în cadrul clădirii de business Vox Technology Park, de pe Calea Torontalului, nr. 69. De asemenea, tot pe strada Torontalului, la nr. 2A, vei mai găsi un CEC Bank, precum și un ING Bank. În cartierul învecinat, vei găsi și mai multe sucursale și ATM-uri de care ai nevoie. Consultă harta și află unde sunt localizate și alte bănci sau ATM-uri în zona de care ești interesat:
Înainte să pleci...
Ești sigur că ai văzut și aceste proprietăți?
106.220 €
Timișoara, Torontalului
45,2 mp utili
Bloc de apartamente
11E
140.000 €
Timișoara, Torontalului
62 mp utili
Centru comercial
211.990 €
Timișoara, Torontalului
90 mp utili
Bloc de apartamente
16E
120.000 €
Timișoara, Aradului
48 mp utili
Bloc de apartamente
11E
333.744 €
Timișoara, Torontalului
196,32 mp utili
Bloc de apartamente
4E
199.000 €
Timișoara, Aradului
120 mp utili
Spațiu stradal
4E
Creează alertă
Salvează căutarea ca să primești pe email ultimele anunțuri publicate
Spații comerciale de vânzare în zona Torontalului, Timișoara
Cere detalii prin email
*
*
*
*
Detaliile tale de contact vor fi partajate cu Nord One Torontal