Spațiu comercial ultracentral + terasă 44 mp – Cartierul Vienez, livrare în 2025

228.000 € + TVA

Ultracentral, Timișoara

Sup. utilă / mp. utili:
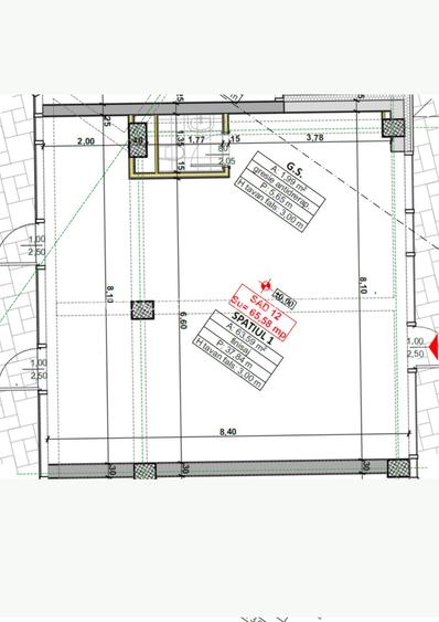
65,5 mp
Tip prop.:
Bloc de apartamente
Niv.:
12
An constr.:
2025 (Există)
  • • Comision 0%
  • • Locație exactă

Descriere spațiu comercial

Locație liniștită, ferită de trafic intens – potrivită pentru cafenele, studiouri sau businessuri de nișă, cu clientelă fidelă. ? Suprafață utilă: 65,5 mp interiori ? Terasă proprie: 44 mp – ideală pentru mese afară, brunchuri sau evenimente ? 1 grup sanitar inclus ? Livrare: anul 2025 Se pretează excelent pentru: ☕ Cafenea, bistro, wine bar, brunch spot ? Salon, studio beauty, cofetărie artizanală ? Showroom, farmacie, concept store De ce merită investiția: - Vad excelent, vizibilitate și acces direct - Poziție de colț în cadrul unui cartier cu 1.500+ locuințe - Spațiu ideal pentru concepte moderne cu potențial real de rentabilitate - Direct de la dezvoltator, cu posibilitate de personalizare
Citește mai mult Citește mai puțin
Aer condiționat

Detalii spațiu comercial

ID anunț: XETK04000 Copiat! 263311121 Copiat!
Actualizat în: 12 Ianuarie 2026
Înălțime spațiu (m): 3
Regim înălțime: P+12E
Stadiu construcție: Există
Vitrină: Da
Recomandare utilizare: Pentru investiție

Utilități

Utilități
Apă Canalizare Curent
Comision
0%

Certificat energetic:

Clasa energetică: A

Puncte de interes

Mijloace transport
tram-station
Circumvalatiunii
Stații tramvai aprox. 179 m
trolleybus-station
Statie Piata Regina Maria T11, T14, T18
Stații troleibuz aprox. 318 m
bus-station
Piata Regina Maria
Stații autobuz aprox. 322 m
train-station
Gara de Nord
Stații tren aprox. 951 m
Școală
school
COLEGIUL TEHNIC "HENRI COANDA"
Școli aprox. 49 m
kindergarten
Gradinita Bunul Pastor
Gradinițe aprox. 411 m
university
Technical University Timisoara -"R" building (en)
Universități aprox. 420 m
school
LICEUL TEOLOGIC ROMANO-CATOLIC "GERHARDINUM"
Școli aprox. 436 m
Recreere
park
sk8 park
Parcuri aprox. 341 m
sports-ground
Teren sportiv
Terenuri sport aprox. 348 m
supermarket
Carrefour Market
Supermarket aprox. 385 m
mall
Kappa Centrul Comercial
Mall aprox. 1840 m

Proprietăți recomandate

Detalii de contact

Abonează-te la newsletter să fii primul care primește cele mai noi recomandări de proprietăți și sfaturi de la experți.

Feedback apel

CONTACT

Creează alertă

Salvează căutarea ca să primești pe email ultimele anunțuri publicate

Spații comerciale de vânzare în zona Ultracentral, Timișoara