Vă prezentăm spre vânzare Victoriei 100 Bar, un spațiu comercial cu profil HoReCa, poziționat strategic pe Calea Victoriei nr. 100, una dintre cele mai exclusiviste și circulate artere din București. Proprietatea beneficiază de expunere excelentă, trafic pietonal intens și acces facil către zonele de business, cultură și lifestyle ale capitalei.
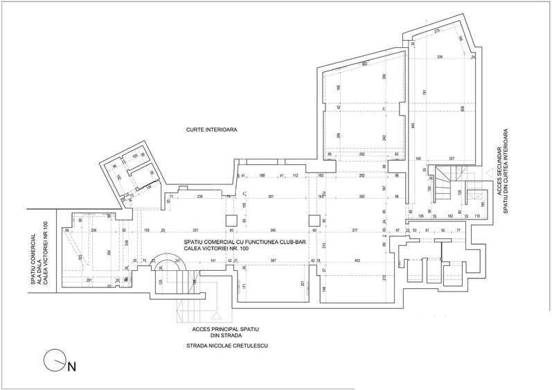
- Spațiul este situat la demisolul unei clădiri solide construite în anul 1945 și oferă o suprafață utilă de 169 mp, fiind optim compartimentat pentru operarea unui bar, lounge sau club urban modern.
- Poziționarea pe Calea Victoriei asigură acces imediat către unele dintre cele mai importante repere din oraș:
Piața Victoriei – nod major de transport și business
Ateneul Român – zonă culturală premium
Muzeul Național de Artă al României
Hotel Radisson Blu – flux constant de turiști
Parcul Cișmigiu – zonă de relaxare și evenimente
Zona atrage un public divers: turiști, corporatiști, expați și clienți premium – ideal pentru dezvoltarea unui concept HoReCa profitabil.
Caracteristici tehnice & conformitate completă
Proprietatea a fost amenajată cu investiții semnificative și respectă toate cerințele legale pentru funcționare:
Izolație fonică profesională (proiect avizat + măsurători zgomot)
Proiect electric complet (materiale ignifugate, tubulaturi conforme)
Proiect ISU cu scenariu incendiu + documentație completă
Autorizație de construire și proces verbal de recepție finală
Materiale certificate: rigips fonic, uși rezistente la foc, plafoane Barisol, podea tehnică
Suprafață sub 200 mp – nu necesită aviz ISU suplimentar
Echipamente & dotări incluse – business „la cheie”
Spațiul se predă complet echipat, pregătit pentru operare imediată:
Instalații & sisteme
Sistem ventilație complet (aport aer + extracție fum), control digital
6 unități aer condiționat independente
Internet WiFi profesional cu amplificatoare semnal
Sistem alarmă conectat la BGS
Sistem supraveghere video interior/exterior
Sistem audio ambiental BOSE
Bar & echipamente profesionale
Bar complet utilat (inox, chiuvetă, baterie, etajere)
Mașină profesională de spălat pahare
Frigidere încorporate (4 bucăți)
Mașină de gheață + ladă frigorifică
Boiler profesional 250L
2 mese de lucru + spații depozitare
Mobilier & ambient
Canapele premium cu iluminare ambientală (separeuri)
Canapele + tabureți asortați (design modern)
Mese sticlă negre (12 buc.)
Mese înalte + scaune bar (18 buc.)
Scaune bar tapițate
Frapiere luminoase premium (5 buc.)
Alte facilități:
Vestiare
Birou administrativ complet echipat
Reclame luminoase „Victoriei 100 Bar” (interior + exterior)
Avantaje investiționale:
Locație premium pe Calea Victoriei
Concept existent – posibilitate preluare rapidă
Investiție complet realizată (costuri zero de amenajare)
Configurație ideală pentru bar / lounge / club
Flux constant de clienți (turiști + corporate + lifestyle)
Victoriei 100 Bar reprezintă o oportunitate rară pe piața spațiilor HoReCa din București – un busine
Calea Victoriei, Strada George Enescu, Bulevardul General Gheorghe Magheru, Strada Ion Capineanu, Cismigiu, Bulevardul Regina Elisabeta, Strada Piata Amzei
Sediul central - Timișoara
Bulevardul Victor Babeș nr. 2, 300230, Timișoara, România
Tel: +40.374.40.44.98 / Fax: +40.256.401.179
Email: suport@imobiliare.ro
Luni - Vineri 08:00 - 20:00
Punct de lucru - București: Iride Business Park, Bld. Dimitrie
Pompeiu 9-9A, Clădirea B2B,
020335, Sector 2, București, România
CONTACT
Sediul central - Timișoara
Bulevardul Victor Babeș nr. 2, 300230, Timișoara, România
Tel: +40.374.40.44.98 / Fax: +40.256.401.179
Email: suport@imobiliare.ro
Luni - Vineri 08:00 - 20:00
Punct de lucru - București: Iride Business Park, Bld. Dimitrie
Pompeiu 9-9A, Clădirea B2B,
020335, Sector 2, București, România
Vechea "Gara a Targovistei" astazi parte din Gara de Nord
aprox.
1714 m
Gara Bucuresti Nord
aprox.
1897 m
Scoala Generala Nr. 5 Corneliu M. Popescu
aprox.
145 m
Ateneul roman, Bucuresti
aprox.
185 m
Fostul Liceu de Arte Plastice Nicolae Tonitza - Sediul
aprox.
286 m
Colegiul National Sfantul Sava
aprox.
340 m
Scoala Nr. 118 Vasile Alecsandri
aprox.
360 m
Scoala special nr. 10
aprox.
377 m
Scoala speciala nr. 10
aprox.
398 m
ASLS (en)
aprox.
437 m
French School of Bucharest (en)
aprox.
505 m
Colegiul German Goethe
aprox.
505 m
Scoala Nr. 19 Tudor Arghezi
aprox.
637 m
Colegiul Economic Virgil Madgearu
aprox.
697 m
Lexis scoli de limbi straine
aprox.
744 m
Cladirea Virgil Madgearu
aprox.
745 m
Gradinita de copii nr.50
aprox.
746 m
Palatul Fundației Universitare "Carol I"
aprox.
287 m
Universitatea Nationala de Arte (facultatea de Arte Plastice si Facultatea de Istoria si Teoria Artei)
aprox.
320 m
Universitatea Nationala de Arte
aprox.
320 m
Facultatea de Stiinte Politice
aprox.
384 m
Universitatea Nationala de Muzica Conservator
aprox.
425 m
Universitatea Nationala de Muzica Bucuresti
aprox.
425 m
Centrul de Limbi Straine Ariel
aprox.
429 m
University of Bucharest - Faculty of Foreign Languages and Literatures (en)
aprox.
437 m
Facultatea de Administrarea Afacerilor cu predare in limbi straine
aprox.
475 m
Scoala de Inalte Studii Postuniversitare de Management
aprox.
475 m
Rectoratul UMF "Carol Davila"
aprox.
527 m
Academia Romana
aprox.
626 m
Universitatea Nationala de Arte (sculptura)
aprox.
655 m
Academia de Studii Economice
aprox.
667 m
Facultatea de Farmacie/Pharmacy Faculty
aprox.
671 m
Gradinita nr. 116
aprox.
363 m
Gradinita nr. 203 program prelungit
aprox.
604 m
Gradinita nr.203 (fosta Clementa)
aprox.
622 m
Ioanid
aprox.
816 m
Gradinita Ioanid
aprox.
824 m
Gradinita nr.4 "Lizuca"
aprox.
830 m
Gradinita nr. 85
aprox.
873 m
Gradinita MAPN
aprox.
919 m
Gradinita nr. 248
aprox.
929 m
Gradinita Nr. 78 Miguel de Cervantes
aprox.
936 m
Gradinita numarul 133
aprox.
1031 m
Gradinita Smiley
aprox.
1040 m
Gradinita nr. 252 cu program prelungit
aprox.
1087 m
Gradinita numarul 257
aprox.
1126 m
Gradinita nr. 73
aprox.
1132 m
Mega Image Amzei Non-Stop
aprox.
216 m
Nik Non-Stop
aprox.
263 m
Mega Image Magheru
aprox.
280 m
ilanplant
aprox.
357 m
Mega Image Brezoianu
aprox.
378 m
Mega Image Rosetti Non-Stop
aprox.
424 m
Bacania Coco
aprox.
558 m
Pravalia Maestrului
aprox.
638 m
Bila Supermarket
aprox.
793 m
BILLA - Dorobanti
aprox.
804 m
OK Non-stop Supermarket (en)
aprox.
890 m
OK Non-Stop
aprox.
890 m
Mega Image Elisabeta Non-Stop
aprox.
894 m
Mega Image - Icoanei
aprox.
951 m
Mag.Victoria
aprox.
966 m
"METROPLIS CENTER"
aprox.
1205 m
Parcare
aprox.
130 m
Parcare
aprox.
167 m
Parcare
aprox.
195 m
Parcare
aprox.
205 m
Parcare
aprox.
209 m
Parcare
aprox.
222 m
Parcare
aprox.
226 m
Parcare
aprox.
276 m
Parcare
aprox.
280 m
Parcare
aprox.
316 m
Parcare
aprox.
331 m
Parcare privata
aprox.
350 m
Parcare
aprox.
373 m
Parcare
aprox.
421 m
Parcare
aprox.
431 m
Park (en)
aprox.
147 m
Piata George Enescu
aprox.
147 m
Parc
aprox.
309 m
Parc
aprox.
377 m
Parc
aprox.
385 m
Parc
aprox.
390 m
Parc
aprox.
403 m
Parc
aprox.
407 m
Parc
aprox.
418 m
Parcul Ion C. Bratianu
aprox.
468 m
Parcul Ion I. C. Bratianu
aprox.
474 m
Statuia lui Ion (Ionel) I.C. Bratianu
aprox.
484 m
Piata Walter Maracineanu
aprox.
498 m
Small park (en)
aprox.
528 m
Parc
aprox.
528 m
Piata Revolutiei
aprox.
348 m
Piața Romană
aprox.
606 m
Piața Drapelului (Tricolorului)
aprox.
772 m
Piata Universitatii
aprox.
867 m
Piata Rosetti
aprox.
1090 m
Piata Emil Cioran (Vergilius) (en)
aprox.
1101 m
Piata Roma
aprox.
1281 m
Piata Natiunilor Unite
aprox.
1323 m
Piata Timpului
aprox.
1414 m
Piața Sfântul Anton
aprox.
1438 m
Piata Latina
aprox.
1588 m
Piața Constituției
aprox.
1622 m
Piata Bibescu
aprox.
1847 m
Teren sportiv
aprox.
654 m
Teren sportiv
aprox.
938 m
Teren sportiv
aprox.
1073 m
Teren sportiv
aprox.
1107 m
Teren sportiv
aprox.
1112 m
Baza sportiva Universitatea Bucuresti
aprox.
1136 m
teren tenis
aprox.
1140 m
Teren sportiv
aprox.
1497 m
Stadionul Dinamo
aprox.
1591 m
Teren sportiv
aprox.
1693 m
Teren sportiv
aprox.
1759 m
Teren sportiv
aprox.
1769 m
Teren sportiv
aprox.
1770 m
Teren sportiv
aprox.
1790 m
Teren sportiv
aprox.
1805 m
Centrul Medical Unirea sediul Enescu
aprox.
178 m
Centrul Medical Unirea Enescu
aprox.
209 m
Centrul Medical Academica
aprox.
502 m
Spitalul Carol Davila de urologie
aprox.
526 m
Spitalul Clinic de Nefrologie Dr. Carol Davila
aprox.
526 m
Spitalul clinic de nefrologie "Dr. Carol Davila"
aprox.
560 m
Spitalul Clinic de Urgente Oftalmologice
aprox.
612 m
Spitalul de Oftalmologie
aprox.
623 m
Clinica ORL Dr. Mocanu
aprox.
690 m
Policlinica (en)
aprox.
732 m
Centrul Medical Batistei
aprox.
759 m
Bioderm Eminescu (en)
aprox.
759 m
Clinica Reumatologie "Dr. Ion Stoia"
aprox.
821 m
Clinica de 10
aprox.
862 m
Centrul de diagnostic si tratament
aprox.
884 m
Catena Farmacie
aprox.
232 m
Catena
aprox.
266 m
Farmacia Stefania
aprox.
269 m
Sensiblu Pt. Amzei
aprox.
277 m
3F Farmacie Farmec Frumusete
aprox.
293 m
Farmacia Dona 14
aprox.
299 m
Help Net Farma
aprox.
323 m
Sensiblu
aprox.
365 m
Farmacia Arta
aprox.
447 m
Farmacia Dona
aprox.
455 m
Catena
aprox.
515 m
Farmacia Academia
aprox.
531 m
Prindcom
aprox.
547 m
Farmacia Apifarm
aprox.
603 m
Royal Blu Pharmacy
aprox.
605 m
Le Theatre
aprox.
77 m
Bistro Atheneu
aprox.
127 m
Restaurant "La Mama"- Ateneu
aprox.
171 m
La Mama
aprox.
171 m
Restaurant "La mama" 3 (en)
aprox.
178 m
Hotel Amzei ****
aprox.
188 m
Bel Cano
aprox.
192 m
Sharkia
aprox.
198 m
Byblos
aprox.
207 m
Trattoria Il Calcio
aprox.
209 m
Hotel Berthlot ****
aprox.
212 m
Tratoria Il Calcio
aprox.
224 m
Caffe Frappe
aprox.
232 m
Pizza Mania
aprox.
235 m
Dragon House Minion
aprox.
245 m
Mara Mura
aprox.
215 m
Camera din Fata
aprox.
305 m
Zvon Caffe
aprox.
311 m
Cafeneaua Arhitectilor
aprox.
374 m
Gradina Verona
aprox.
410 m
Nescafe Milano
aprox.
422 m
Gradina OAR
aprox.
431 m
Mi-nut
aprox.
432 m
Nana
aprox.
509 m
5 To Go Lahovari
aprox.
604 m
Cafe 3
aprox.
617 m
Hathor Cafe
aprox.
661 m
Music Rooms Cafe
aprox.
672 m
Lente Praporgescu
aprox.
677 m
Mon Amour
aprox.
701 m
A1
aprox.
240 m
Fratelli Espresso Bar
aprox.
245 m
Frame
aprox.
507 m
Piua Book Bar
aprox.
565 m
Control Club
aprox.
692 m
LondonPhone
aprox.
733 m
Que Pasa
aprox.
735 m
Yellow Bar
aprox.
759 m
Gambrinus
aprox.
764 m
Zappa Rock & More
aprox.
796 m
Happy Pub
aprox.
890 m
Energiea
aprox.
931 m
ACAB Pub
aprox.
953 m
Interbelic Victoria
aprox.
960 m
Opium Stage Club
aprox.
963 m
James Joyce's Pub & Restaurant
aprox.
507 m
OLD NICK PUB
aprox.
592 m
Question Mark Social Club
aprox.
632 m
Coloseum
aprox.
660 m
Edgar`s Pub
aprox.
743 m
Nexus Gamers Pub
aprox.
786 m
Panik & Pub
aprox.
805 m
Charlatans Irish Pub
aprox.
840 m
Club Expirat and Other Side
aprox.
931 m
Have a Cigar
aprox.
964 m
Waldo's
aprox.
980 m
Clock`s
aprox.
985 m
Vault
aprox.
1136 m
Iron City
aprox.
1139 m
Club A
aprox.
1140 m
CEC Bank
aprox.
75 m
Piraeus Bank Romania - Agentia Calea Victoriei
aprox.
89 m
PIRAEUS BANK
aprox.
113 m
BCR
aprox.
193 m
BRD
aprox.
193 m
BRD Amzei
aprox.
204 m
BCR
aprox.
215 m
Banca Transilvania
aprox.
226 m
Banca Transilvania - Ag. Amzei
aprox.
233 m
CEC - Ag. Amzei
aprox.
233 m
Agentie ING
aprox.
247 m
Banca Romaneasca - Ag. Amzei
aprox.
254 m
Piraeus Bank
aprox.
266 m
Alpha Bank
aprox.
268 m
UniCredit Bank - Ag. Millenium
aprox.
271 m
Fiind o zonă ultracentrală, aceasta oferă numeroase opțiuni de călătorie cu mijloacele de transport în comun, și este bine conectată cu restul orașului. Ai, în primul rând, la dispoziție stațiile de metrou Piața Victoriei, Piața Romană și Universitate. Astfel, te vei putea deplasa rapid prin oraș, evitând aglomerația de la suprafață. Toate acestea sunt situate pe magistrala 2 care traversează Bucureștiul de la nord la sud. În plus, de la Piața Victoriei vei putea lua metroul și pe magistrala 1 pentru a ajunge, de exemplu, în cartierul Pantelimon sau în zona Eroilor. Prin Piața Universității urmează să treacă și magistrala 5 care va lega cartierele Drumul Taberei și Pantelimon. Până acum, s-au deschis însă doar stațiile de metrou aflate în zona Drumul Taberei. Alte mijloace de transport în comun care ar putea să-ți fie de ajutor atunci când te vei muta în această zonă sunt autobuzele 300 și 381. Primul face legătura dintre Piața Romană și Piața Victoriei continuându-și apoi traseul de-a lungul Bulevardului Ion Mihalache, iar cel de-al doilea conectează Piața Victoriei cu zona Tineretului și cu cartierul Berceni. De pe Bulevardul Regina Elisabeta vei putea lua troleibuzul 90 pentru a ajunge în Drumul Taberei sau în zona Arenei Naționale, iar în fața Spitalului Colțea vei găsi stația autobuzului 381 care merge în cartierul Berceni. Iar dacă preferi să te deplasezi pe două roți, vei avea la dispoziție una dintre pistele speciale destinate bicicliștilor pe Calea Victoriei. Aceasta îți va oferi, în plus, oportunitatea ideală de a admira arhitectura deosebită a clădirilor aflate de o parte și de alta a uneia dintre cele mai frumoase străzi din București. Consultă harta pentru a afla unde sunt localizate stațiile mijloacelor de transport în comun.
În această zonă găsim sediul central al Universității din București și cel al Academiei de Studii Economice din București (ASE), unele dintre cele mai prestigioase instituții de învățământ superior din România. Tot aici se află și sediile mai multor facultăți. Ai și alte instituții de învățământ cu renume la doi pași de casă, precum precum Colegiul Național "Sfântul Sava", Colegiul Național "Gheorghe Lazăr", Liceul Teoretic Bulgar "Hristo Botev" și Universitatea Națională de Muzică. De menționat este și Căminul Moxa, aflat în zona Calea Victoriei, în care sunt cazați unii dintre studenții ASE. Consultă harta de mai jos pentru a vedea și celelalte unități de învățământ din zonă.
În această parte a orașului vei găsi numeroase reprezentanțe ale unor branduri de lux. Cele mai multe magazine alimentare din zonă au dimensiuni reduse. Pentru cumpărături îți recomandăm Piața Amzei, aflată la doi pași de Romană și modernizată recent. Aici găsești, pe lângă comercianți de unde poți cumpăra legume și fructe și câteva magazine cu preparate proaspete de la burgeri, la pâine artizanală sau înghețată. Centrul Vechi găzduiește, totodată, reprezentanțe ale unor retaileri de modă. Tot aici găsești și librăria Cărturești Carusel, una dintre cele mai frumoase din oraș. O librărie Cărturești deschisă într-o altă clădire deosebită poate fi găsită și în apropiere de Piața Romană. Un spațiu comercial cu renume este Magazinul Victoria, un monument istoric al orașului. Magazinul București, amplasat la intersecția străzilor I.C. Brătianu și Lipscani a fost reconstruit recent cu o investiție substanțială. Ai în apropiere magazinul Cocor, centrul comercial Unirea Shopping City și un hipermarket Carrefour. Cu mașina sau metroul poți să ajungi destul de repede la mall-ul AFI Cotroceni. Consultă harta și vezi ce magazine vei avea în apropierea noii tale case.
Aceasta este una dintre cele mai aglomerate zone din București la orele de vârf. Aici găsești însă și unele dintre puținele parcări subterane din Capitală. Chiar vis-a-vis de Universitatea București ai intrarea într-o astfel de parcare cu peste 400 de locuri. O parcare destul de încăpătoare poate fi găsită și în Piața Victoriei. Atenție, însă, această zonă se poate aglomera nu doar din cauza traficului, ci și din cauza diverselor manifestări sau proteste care se organizează, de obicei, în fața Palatului Victoria, sediul Guvernului României. Dacă te hotărăști să te muți în zonă, atunci îți recomandăm să te interesezi de posibilitatea închirierii unui loc de parcare pentru mașina ta. Poți face acest lucru apelând la Serviciul Parcaje al ADP Sector 1. Consultă harta pentru a afla unde găsești și alte parcări în zona Victoriei-Romană-Universitate.
Zona Victoriei - Romană - Universitate este un epicentru cultural al Capitalei și oferă numeroase opțiuni de petrecere a timpului liber. Aici vei găsi numeroase muzee impresionante pe care le poți vizita în timpul liber (Muzeul Național de Istorie Naturală "Grigore Antipa", Muzeul Țăranului Român, Muzeul Național George Enescu, etc), vei putea participa la evenimentele în aer liber desfășurate pe Calea Victoriei sau în Piața George Enescu sau vei putea merge la un spectacol organizat pe scena Ateneului Român sau pe cea a Teatrului Notarra. Nu rata nici o vizită la Teatrul Național "I.L. Caragiale" și la Muzeul Național de Artă al României. Observatorul Astronomic Amiral Vasile Urseanu te așteaptă cu o experiență extrem de educativă care va fi, cu siguranță, apreciată de micuțul tău. Dacă îți place să ieși la o cafea în timpul liber alături de prietenii tăi, atunci în această zonă vei putea alege dintr-o multitudine de restaurante, terase și pub-uri. Nu lipsesc nici skybar-urile, care îți oferă priveliști de excepție de la înălțime. Cele câteva parcuri din zona Victorieim - Romană - Universitate au dimensiuni destul de reduse, dar sunt frumos îngrijite. Printre acestea amintim Parcul Ateneului și Parcul Nicolae Iorga. Dacă preferi plimbările lungi în weekend, atunci vei avea la dispoziție în apropiere parcurile Kiseleff și Cișmigiu. Nu uita, de asemenea, că te vei afla la doi pași de Centrul Vechi al Capitalei, dar și că vei putea să faci o plimbare cu bicicleta pe Calea Victoriei. În condiții normale, se organizează periodic evenimente în centrul orașului, atât în cadrul Sălii Palatului, cât și în aer liber în Piața Revoluției. În Piața Universității sunt organizate, totodată, diferite târguri și concerte. Vezi pe hartă mai multe puncte de interes din zona Victoriei-Romană-Universitate.
Chiar la Piața Universității se află principala unitate sanitară din zonă. Este vorba despre Spitalul Clinic Colțea, primul înființat în București. În zona Victoriei - Romană - Universitate vei întâlni mai multe clinici private, precum Policlinica Enescu din cadrul rețelei de sănătate Regina Maria și Spitalul Clinic Sanador. La doi pași de Piața Romană se află Spitalul Clinic de Urgențe Oftalmologice, cel mai mare din România cu o astfel de specializare. Consultă harta pentru a afla ce clinici private ai în apropierea casei, dacă te muți în această parte a orașului.
Găsești numeroase restaurante, terase și cafenele potrivite pentru toate gusturile în Centrul Vechi al orașului, pe Calea Victoriei sau în zona din spatele Ateneului Român. Câteva fast food-uri ai la dispoziție în Unirea Shopping Center. Nu foarte departe, în zona Romană, ai și alte opțiuni. Află de pe hartă unde găsești cel mai apropiat restaurant de noua ta casă.
Sucursale ale diferitelor bănci sunt dispuse de-a lungul principalelor artere de circulație sau în marile intersecții din zonă. Un BRD, spre exemplu, găsești chiar lângă Cercul Militar Național. Pe Bulevardul Nicolae Bălcescu o sucursală Banca Transilvania și ING Bank. La doi pași de Piața Universității se află și Palatul Băncii Naționale a României. Consultă harta pentru mai multe detalii.
Înainte să pleci...
Ești sigur că ai văzut și aceste proprietăți?
530.000 €
București, Calea Victoriei
200 mp utili
Bloc de apartamente
5E
530.000 €
București, Calea Victoriei
169 mp utili
Bloc de apartamente
530.000 €
București, Calea Victoriei
169 mp utili
Bloc de apartamente
6E
Creează alertă
Salvează căutarea ca să primești pe email ultimele anunțuri publicate
Spații comerciale cu 3 camere de vânzare în zona Calea Victoriei, Ultracentral
Cere detalii prin email
*
*
*
*
Detaliile tale de contact vor fi partajate cu Trimbitasu Estate