Zona Industriala , hala frigorifica 527 mp.

2.635 € + TVA / lună
5 € + TVA / mp / lună

Far, Constanța

Tip prop.:
Depozitare
  • • Locație aproximativă

Descriere spațiu comercial

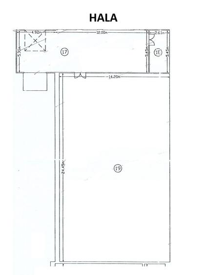
Agentia Zig-Zag va propune spre închiriere o hală frigorifică situată în Zona Industrială , într-un perimetru cu acces facil pentru transport greu și activități logistice. Proprietatea este pretabilă pentru depozitare frigorifică și congelare, procesare, distribuție sau activități din domeniul alimentar. , cu acces facil TIR și infrastructură completă. Imobilul este construit din BCA, beneficiază de înălțime de 3,5 m și oferă condiții optime pentru desfășurarea activităților industriale /depozitare. Suprafata utila de 527 mp. este compartimentata astfel : - 450 mp. hala frig; - 73 mp. - vestiar filtru , compartimentat si dotat conform normelor ( grupuri sanitare, vestiar sala de mese etc.) - birou facturare; Facilități și dotări: - 2 rampe (una fixa, una mobila); - rafturi metalice; - curte betonată, ideală pentru manevre, parcare și acces TIR; - spațiu generos pentru parcare; - acces permanent pentru vehicule de mare tonaj; - toate utilitățile disponibile 220, 380, contorizate separat; - putere instalata; - paza asigurata. Condiții financiare: - pret chirie 5 euro/mp. + TVA; - paza: 2470 lei +TVA Proprietar: persoană juridică (chirie purtatoare de TVA). Hală nouă, condiții deosebite Toate utilitățile disponibile Contorizare separată: energie electrică și apă Pentru informații suplimentare, detalii contractuale sau programarea unei vizionări, vă rugăm să ne contactați.
Citește mai mult Citește mai puțin
3 Parcări Electricitate Apă

Detalii spațiu comercial

ID anunț: XECR140FV Copiat! 275310190 Copiat!
Actualizat în: 16 Aprilie 2026
Suprafață utilă: 527 mp
Stadiu construcție: Finalizată
Înălțime spațiu (m): 4

Utilități

Utilități
Canalizare
Comision
50%

Puncte de interes

Mijloace transport
bus-station
Far [101C
Stații autobuz aprox. 101 m
bus-station
Far [101C
Stații autobuz aprox. 220 m
train-station
Gara Constanța(1960)
Stații tren aprox. 1275 m
train-station
Gara CFR Constanta(1960)
Stații tren aprox. 1276 m
Școală
school
Școala cu clasele I-VIII nr. 16 Constanta
Școli aprox. 240 m
kindergarten
Gradinita nr.32 NASTUREL (en)
Gradinițe aprox. 264 m
school
Scoala si Gradinita
Școli aprox. 566 m
university
Anatomy Department, Faculty of General Medicine (en)
Universități aprox. 1665 m
Recreere
park
Parcul Far
Parcuri aprox. 90 m
supermarket
Alpin Center
Supermarket aprox. 405 m
sports-ground
Teren sportiv
Terenuri sport aprox. 690 m
public-square
Victory Square (en)
Piețe publice aprox. 1234 m

Proprietăți similare

Spațiu comercial, de 166 mp, în Inel II
2.490 € / lună
Constanța, Inel II
166 mp utili
Bloc de apartamente
4E
Spațiu comercial, de 174.18 mp, în Tomis III
2.750 € / lună
Constanța, Tomis III
174,18 mp utili
Bloc de apartamente
8E
Spațiu comercial, 192.48 mp în Faleza Nord
2.500 € / lună
Constanța, Faleza Nord
192,48 mp utili
Spațiu stradal
8E

Detalii de contact

ZIG ZAG INTERMED

Oana Barbieru

4.80(5 review-uri)

ZIG ZAG INTERMED
PRO

Abonează-te la newsletter să fii primul care primește cele mai noi recomandări de proprietăți și sfaturi de la experți.

CONTACT

Creează alertă

Salvează căutarea ca să primești pe email ultimele anunțuri publicate

Spații comerciale cu 2 camere de închiriat în zona Far, Constanța