INCHIRIERE SPATII INDUSTRIALE PLOIESTI, ZONA BUCOV

Preț necomunicat

Est, Ploiești

Sup. prop / mp. prop.:
2.604 mp
Tip prop.:
Producție/Servicii
  • • Comision 0%
  • • Locație exactă

Descriere spațiu comercial

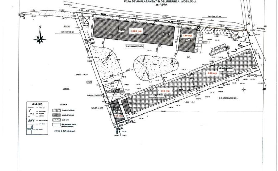
Spatii industriale de inchiriat in zona Bucov Inchiriere spatii industriale, amplasate in partea de est a orasului Ploiesti, pe strada Octavian Goga, in zona Bucov, cu acces din drumul national DN1B. Spatiile sunt localizate la 850 mp distanta fata de drumul national DN1B. Accesul catre autostrada A3 (curesti -Ploiesti), aflata la 18,5 km distanta, se realizeaza intermediul drumului national DN1A. Proprietatea are o suprafata totala de 2.604 mp si este alcatuita din 5 constructii individuale cu suprafete si specificatii distincte. Prima constructie este reprezentata de o hala cu spatii de productie sau depozitare si spatii de birouri, cu o suprafata totala de 630 mp. Constructia este realizata din cadre de beton cu umplutura de caramida, izolatie din polistiren de 10 cm si are o inaltime utila cuprinsa intre 4 si 7 m. Spatiile beneficiaza de sitem de incalzire prin pardoseala in zona de birouri si calorifere in restul spatiilo, grupuri sanitare, bucatarie personal / protocol si terasa amenajat. Cea de a doua constructie este o hala industriala cu suprafata totala de 630 mp si beneficiaza de centrala temica, instalatie de aer comprimat si o inaltime utila de 3,5 m. A treia constructie are o suprafata toala de 114 mp, este realizata pe structura metalica si are posibilitate de incalzire. A patra constructie este reprezentata de un cort pe structura metalica cu pereti si acoperis din poliplan ignifug, are pardoseala din beton si o suprafata totala de 1.000 mp. Cea de a cincea constructie este o hala industriala realizata pe structura metalica cu o suprafata toala de 230 mp. Toate spatiile beneficiaza de toate utilitatile necesare pentru desfasurarea oricarui tip de activitate.
Citește mai mult Citește mai puțin

Detalii spațiu comercial

ID anunț: X5F804132 Copiat! 1136811 Copiat!
Actualizat în: 27 August 2025
Nume proprietate: INCHIRIERE SPATII INDUSTRIALE PLOIESTI, ZONA BUCOV
Regim înălțime: P

Alte detalii:

Spatii industriale de inchiriat in zona Bucov
Inchiriere spatii industriale, amplasate in partea de est a orasului Ploiesti, pe strada Octavian Goga, in zona Bucov, cu acces din drumul national DN1B.

Spatiile sunt localizate la 850 mp distanta fata de drumul national DN1B. Accesul catre autostrada A3 (curesti -Ploiesti), aflata la 18,5 km distanta, se realizeaza intermediul drumului national DN1A.

Proprietatea are o suprafata totala de 2.604 mp si este alcatuita din 5 constructii individuale cu suprafete si specificatii distincte.

Prima constructie este reprezentata de o hala cu spatii de productie sau depozitare si spatii de birouri, cu o suprafata totala de 630 mp. Constructia este realizata din cadre de beton cu umplutura de caramida, izolatie din polistiren de 10 cm si are o inaltime utila cuprinsa intre 4 si 7 m. Spatiile beneficiaza de sitem de incalzire prin pardoseala in zona de birouri si calorifere in restul spatiilo, grupuri sanitare, bucatarie personal / protocol si terasa amenajat.

Cea de a doua constructie este o hala industriala cu suprafata totala de 630 mp si beneficiaza de centrala temica, instalatie de aer comprimat si o inaltime utila de 3,5 m.

A treia constructie are o suprafata toala de 114 mp, este realizata pe structura metalica si are posibilitate de incalzire.

A patra constructie este reprezentata de un cort pe structura metalica cu pereti si acoperis din poliplan ignifug, are pardoseala din beton si o suprafata totala de 1.000 mp.

Cea de a cincea constructie este o hala industriala realizata pe structura metalica cu o suprafata toala de 230 mp.

Toate spatiile beneficiaza de toate utilitatile necesare pentru desfasurarea oricarui tip de activitate.

Subspații disponibile

Minim disponibil spre inchiriere

FĂRĂ COMISION! AGENTUL REPREZINTĂ PROPRIETARUL! Mai multe detalii despre aceasta oferta pe platforma PROPRIETATI-INDUSTRIALE.RO, alaturi de alte properietati industriale prezentate intr-un mod transparent, cu localizare exacta.

Chirie / u.m. / lună:
Preț necomunicat
Suprafață disponibilă:
220
Disponibilitate spațiu:
imediat

Maxim disponibil spre inchiriere

FĂRĂ COMISION! AGENTUL REPREZINTĂ PROPRIETARUL! Mai multe detalii despre aceasta oferta pe platforma PROPRIETATI-INDUSTRIALE.RO, alaturi de alte properietati industriale prezentate intr-un mod transparent, cu localizare exacta.

Chirie / u.m. / lună:
Preț necomunicat
Suprafață disponibilă:
2400
Disponibilitate spațiu:
imediat

Puncte de interes

Școală
school
Scoala gimnaziala Constantin Stere
Școli aprox. 1097 m
Recreere
sports-ground
Teren sportiv
Terenuri sport aprox. 1038 m

Proprietăți recomandate

Detalii de contact

Activ Property Services

Cosmin Dinu Consultant proprietati industriale

Activ Property Services
PRO

Abonează-te la newsletter să fii primul care primește cele mai noi recomandări de proprietăți și sfaturi de la experți.

CONTACT

Creează alertă

Salvează căutarea ca să primești pe email ultimele anunțuri publicate

Spații comerciale de închiriat în zona Est, Ploiești