HALA INDUSTRIALA GIURGIULUI - JILAVA

3.500 € / lună
5 € / mp / lună

Sud, București

Sup. prop / mp. prop.:
700 mp
Tip prop.:
Producție/Servicii
  • • Locație exactă

Descriere spațiu comercial

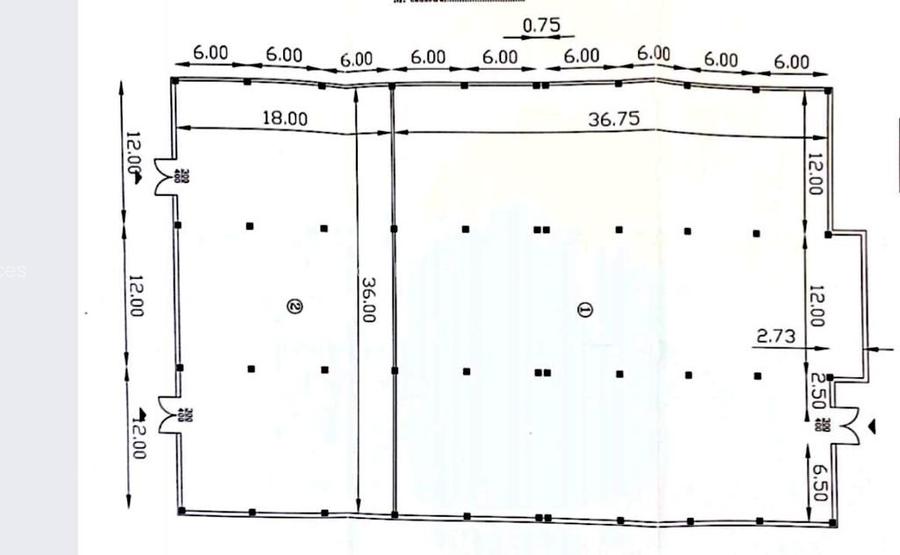
Hala industriala de inchiriat cu spatii de depozitare sau productie localizata in sudul Municipiului Bucuresti, pe Soseaua Giurgiului, cu acces direct catre soseaua de centura. Proprietatea este localizata la 750 m distanta fata de soseaua de centura, 15 km fata de A1 (Bucuresti – Pitesti) si la 18 km distanta fata de autostrada A2 (Bucuresti - Constanta). Hala oferita spre inchiriere are o suprafata totala de 2.037 m2, doua cai de acces direct din DN5 (E85), 3 usi drive-in, iar spatiile de birouri pot fi amenajate la cerere. Spatiu este imaprtit in doua module individuale, cu acces separat. Cladirea poate fi livrata la cheie, conform cerintelor chiriasului.
Citește mai mult Citește mai puțin
Electricitate

Detalii spațiu comercial

ID anunț: X5F80412J Copiat! 1136651 Copiat!
Actualizat în: 02 Septembrie 2025
Nume proprietate: HALA INDUSTRIALA GIURGIULUI - JILAVA
Regim înălțime: P

Alte detalii:

Hala industriala de inchiriat cu spatii de depozitare sau productie localizata in sudul Municipiului Bucuresti, pe Soseaua Giurgiului, cu acces direct catre soseaua de centura.

Proprietatea este localizata la 750 m distanta fata de soseaua de centura, 15 km fata de A1 (Bucuresti – Pitesti) si la 18 km distanta fata de autostrada A2 (Bucuresti - Constanta).

Hala oferita spre inchiriere are o suprafata totala de 2.037 m2, doua cai de acces direct din DN5 (E85), 3 usi drive-in, iar spatiile de birouri pot fi amenajate la cerere.

Spatiu este imaprtit in doua module individuale, cu acces separat.

Cladirea poate fi livrata la cheie, conform cerintelor chiriasului.

Subspații disponibile

Hala de inchiriat, zona Jilava

FĂRĂ COMISION! AGENTUL REPREZINTĂ PROPRIETARUL! Mai multe detalii despre aceasta oferta pe platforma PROPRIETATI-INDUSTRIALE.RO, alaturi de alte properietati industriale prezentate intr-un mod transparent, cu localizare exacta.

Chirie / u.m. / lună:
5 EUR/mp (total: 3500 EUR/lună)
Suprafață disponibilă:
700
Disponibilitate spațiu:
imediat

Puncte de interes

Mijloace transport
tram-station
Fosta stație terminus a tramvaiului 29
Stații tramvai aprox. 566 m
train-station
Gara CFR Progresul
Stații tren aprox. 1624 m
bus-station
Statia Gara Progresul, linia 216, 116
Stații autobuz aprox. 1832 m
train-station
Statia CFR Jilava
Stații tren aprox. 1974 m
Școală
school
Scoala Gimnaziala nr.1 Jilava
Școli aprox. 1945 m

Proprietăți recomandate

Detalii de contact

Activ Property Services

Cosmin Dinu Consultant proprietati industriale

Activ Property Services
PRO

Abonează-te la newsletter să fii primul care primește cele mai noi recomandări de proprietăți și sfaturi de la experți.

CONTACT

Creează alertă

Salvează căutarea ca să primești pe email ultimele anunțuri publicate

Spații comerciale de închiriat în zona Sud, Sector 4