1

Oportunitate: Hală de producție și depozitare cu birouri în Arad

3.500.000 €

Micălaca, Arad

Sup. prop / mp. prop.:
4.075 mp
Tip prop.:
Logistică
  • • Comision 0%
  • • Exclusivitate
  • • Locație exactă

Descriere spațiu comercial

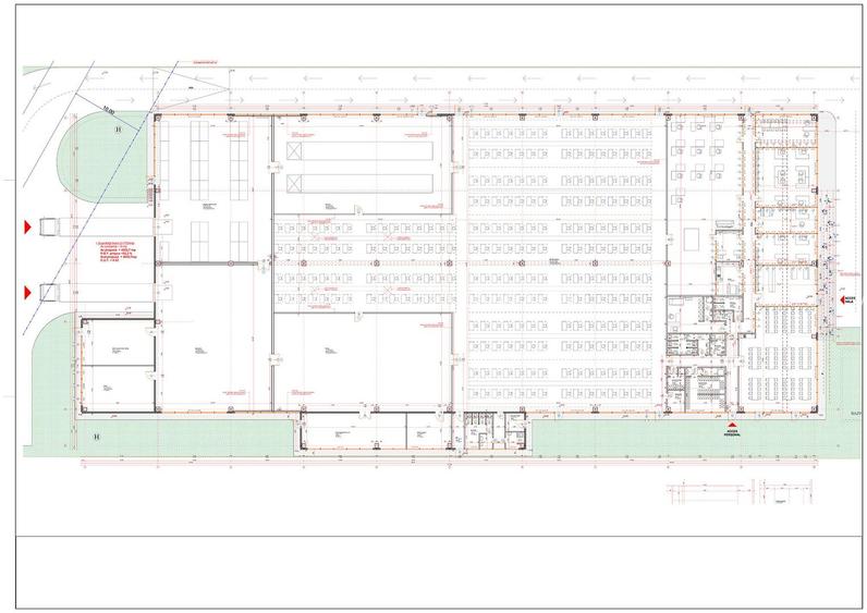
Avem plăcerea să vă oferim în exclusivitate o hală de producție și depozitare cu birouri în Municipiul Arad, în zona comercial-industrială Micălaca Sud. Caracteristici: Teren: 7.176 mp Construcție: 4.075 mp Dock-uri încărcare TIR: 2 buc An construcție: 2013 Dotări: Bazin PSI și Autorizație ISU Panouri Fotofoltaice putere 350 MWh Suflante aer cald și chillere. Utilități prezente: energie electrică, gaze naturale, apă și canalizare. Vecini: CEFIN Trucks, Modelleisenbahn, Dedeman, Altex, CitOne, HighPlast Detalii constructive: Stâlpi de susținere din beton armat, închideri perimetrale din plăci pefabricate din BA, tâmplărie din aluminiu. Localizare și dotările fac imobilul ideal pentru o gamă largă de activități comerciale, de producție și de depozitare. Profitați de o soluție rapidă și la cheie pentru afacerea dumneavoastră. Pentru vizionare și detalii, vă rog să mă apelați la numărul: Florin Moș
Citește mai mult Citește mai puțin
10 Parcări Electricitate Apă Gaz

Detalii spațiu comercial

ID anunț: XCUT1405R Copiat! 226793002 Copiat!
Actualizat în: 25 Februarie 2026
Suprafață utilă: 4075 mp
Etaj: Parter
Stadiu construcție: Există
An construcție: 2013 (Există)
Suprafață teren: 7176
Regim înălțime: P

Utilități

Destinație
Rezidențial
Utilități
Canalizare
Comision
0%

Disponibilitate proprietate:

Imediat

Puncte de interes

Mijloace transport
tram-station
Renasterii
Stații tramvai aprox. 731 m
tram-station
Renasterii
Stații tramvai aprox. 737 m
tram-station
Gradinita
Stații tramvai aprox. 750 m
tram-station
Renasterii
Stații tramvai aprox. 842 m
Școală
kindergarten
Gradinita Casuta Piticilor
Gradinițe aprox. 802 m
school
Scoala Gimnaziala nr. 12 Regina Maria
Școli aprox. 1512 m
university
Universitatea de Vest Aurel Vlaicu
Universități aprox. 1939 m
Recreere
restaurant
Petrom
Restaurant aprox. 327 m
supermarket
Selgros
Supermarket aprox. 510 m
park
Parcul 23 August
Parcuri aprox. 1162 m
sports-ground
Teren sportiv
Terenuri sport aprox. 1376 m

Proprietăți recomandate

Detalii de contact

Abonează-te la newsletter să fii primul care primește cele mai noi recomandări de proprietăți și sfaturi de la experți.

CONTACT

Creează alertă

Salvează căutarea ca să primești pe email ultimele anunțuri publicate

Spații comerciale cu 4+ camere de vânzare în zona Micălaca, Arad