Hala industriala | Dragomiresti | Pret la stadiu de structura pentru o unitate

185.000 € + TVA

Chitila, Județul Ilfov

Sup. prop / mp. prop.:
550 mp
Tip prop.:
Depozitare
  • • Comision 0%
  • • Exclusivitate
  • • Locație exactă

Descriere spațiu comercial

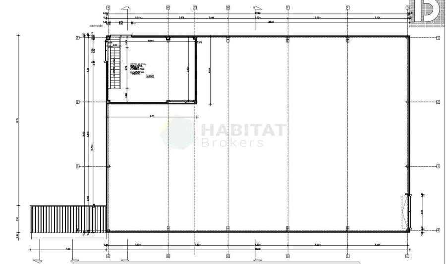
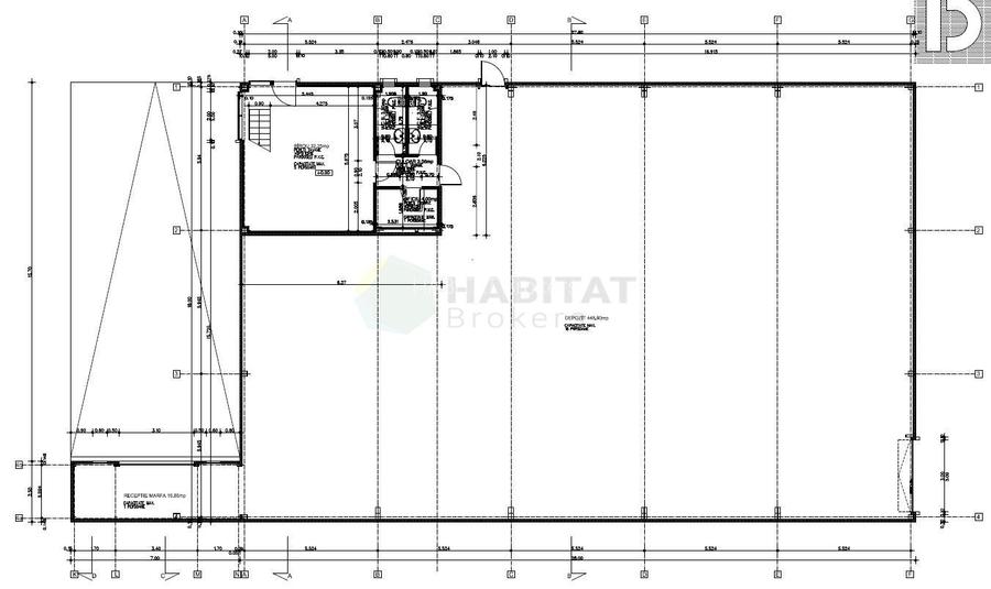
Proiect industrial – Dragomirești Proiectul constă în dezvoltarea unui ansamblu de 8 hale industriale, situat în Dragomirești, oferit spre vânzare în stadiul de structură metalică ridicată. În prețul de vânzare sunt incluse: -terenul aferent proiectului; -autorizația de construire; -fundațiile executate; -structurile metalice ale halelor, deja ridicate. Nu sunt incluse în preț: -închiderile perimetrale; -planșeele; -instalațiile (electrice, sanitare etc.); -drumurile interioare și amenajările exterioare. Prețul de vânzare estimat per unitate este cuprins între 390.000 EUR și 420.000 EUR + TVA. Contactează-ne acum pentru detalii și programarea unei vizionări! ___________________________________________________________________________ ℹ️Buget insuficient? La HABITAT Brokers ai serviciu de finanțare inclus: Identificăm tipul de credit ideal. Simulăm rata. Comparăm ofertele actuale din piață. Depunem dosarul și stăm în legătură cu banca până la aprobare. Totul cu ZERO costuri suplimentare. Contactează-ne azi pentru o analiză gratuită!
Citește mai mult Citește mai puțin
Electricitate Apă

Detalii spațiu comercial

ID anunț: X4CJ14032 Copiat! 275072493 Copiat!
Actualizat în: 23 Februarie 2026
Suprafață utilă: 550 mp
Etaj: Parter
Stadiu construcție: Există
An construcție: 2026 (Există)
Regim înălțime: P

Utilități

Utilități
Canalizare
Comision
0%

Disponibilitate proprietate:

Imediat

Puncte de interes

Mijloace transport
train-station
Gara Chitila
Stații tren aprox. 1752 m
bus-station
Chitila
Stații autobuz aprox. 1761 m
bus-station
Gara Chitila
Stații autobuz aprox. 1763 m
Recreere
restaurant
Un tramvai numit dorinta
Restaurant aprox. 1126 m
supermarket
Mega Image
Supermarket aprox. 1849 m

Proprietăți similare

Spațiu comercial, 108.02 mp în Balotești
175.000 €
Județul Ilfov, Balotești
108,02 mp utili
Bloc de apartamente
2E
Spațiu comercial, 105 mp în Central
199.999 €
Județul Ilfov, Voluntari
105 mp utili
Spațiu stradal
Spațiu comercial, de 125 mp, în Snagov
195.000 €
Județul Ilfov, Snagov
125 mp utili
Bloc de apartamente
1986

Detalii de contact

HABITAT Brokers

HB Office Assistant

HABITAT Brokers
PRO

Abonează-te la newsletter să fii primul care primește cele mai noi recomandări de proprietăți și sfaturi de la experți.

CONTACT

Creează alertă

Salvează căutarea ca să primești pe email ultimele anunțuri publicate

Spații comerciale cu 3 camere de vânzare în Chitila, Județul Ilfov