Fabrica de lapte (LACTAG) situata in Costesti, Jud. Arges

1.200.000 € + TVA

Costești, Județul Argeș

Sup. prop / mp. prop.:
2.816 mp
Tip prop.:
Producție/Servicii
Niv.:
1
  • • Locație exactă

Descriere spațiu comercial

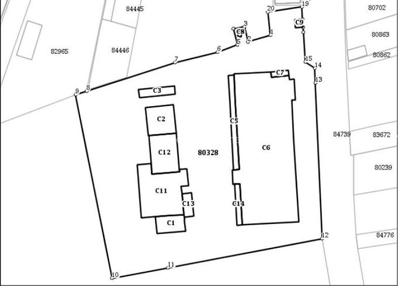
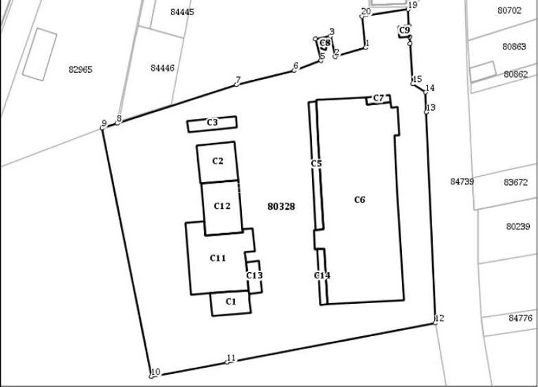
Spatiu industrial ce avea in trecut ca si profil de activitate procesarea si ambalarea lactatelor, situat in Costesti, Strada Progresului, nr. 24, Jud. Arges. Imobilul este compus din teren in suprafata de 9.987 m.p. pe care sunt edificate 12 constructii (detalii in rubrica fotografii), edificate in perioada 2000 - 2008 cu o suprafata la sol insumata de 2,816 m.p. Pentru detalii suplimentare, va rog sa ne contactati telefonic de Luni pana Vineri in intervalul orar 9 - 17. In afara acestui interval, va rog sa ne transmiteti un mesaj prin intermediul acestui anunt, fie prin intermediul unui mesaj text si va vom contacta ulterior.
Citește mai mult Citește mai puțin
Electricitate Apă Gaz Acces TIR

Detalii spațiu comercial

ID anunț: X9P80403L Copiat! 252618686 Copiat!
Actualizat în: 03 Iunie 2025
Nume proprietate: Fabrica de lactate "LACTAG"
Stadiu construcție: Există
An construcție: 2000 (Există)
Suprafață platformă (mp): 9987
Regim înălțime: P+1E
Destinație anterioară: Fabricarea si imbutelierea produselor lactate
Grad de ocupare: 35%
Recomandare utilizare: Pentru investiție

Utilități

Acces
Cale rutieră

Proprietăți recomandate

Detalii de contact

Veraltis Asset Management S.R.L

VERALTIS REAL ESTATE Case Manager

Veraltis Asset Management S.R.L
PRO

Abonează-te la newsletter să fii primul care primește cele mai noi recomandări de proprietăți și sfaturi de la experți.

CONTACT

Creează alertă

Salvează căutarea ca să primești pe email ultimele anunțuri publicate

Spații comerciale de vânzare în Costești, Județul Argeș